Skip to main content

MyWinkworth

Sold

Picture No. 04
Picture No. 03
Picture No. 05
Picture No. 18
Picture No. 07
Picture No. 01
Picture No. 02
Picture No. 14
Picture No. 12
Picture No. 17
Picture No. 08
Picture No. 15
Picture No. 11
Picture No. 10
Picture No. 09
Picture No. 13
Picture No. 06
Picture No. 16
6/14

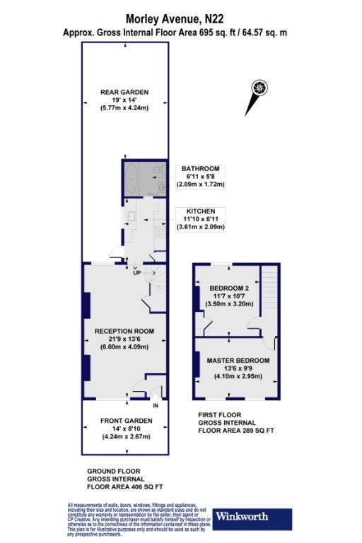
Morley Avenue, London, N22

2 bedroom house in London

Guide Price £565,000 Freehold

  • Bedrooms 2
  • Bathrooms 1
  • Reception rooms 2
  • Floorplan

PICTURES AND VIDEOS

KEY FEATURES

  • Attractive Viictorian House
  • Two Double Bedrooms
  • Double Reception Room
  • Modern Kitchen
  • South-Facing Garden
  • Modern Bathroom
  • Period Features
  • Convenient for Transport Links and Parks
  • Moments From Shopping Area
  • Chain-Free

KEY INFORMATION

  • Tenure: Freehold

Description

A stunning interior designed two-bedroom house sparkling with period character and Charm, situated within the quiet and popular Noel Park Conservation Area in N22.

Chain-Free

This stylish period cottage boasts ample living space with charming character features.

The property has lots of light flowing through, due to the large large sash windows and the south-facing rear garden.

Accommodation spans almost 700 sq ft over two floors with a comfortable yet sleek ambience.
The layout ensures that this wonderful family home offers a great social livng space.

Noel Park was designated as a conservation area in 1982 in recognition of its special architectural and historic significance and to preserve and enhance its character and appearance. A peaceful and convenient location, there's a choice of good nurseries and Noel Park Primary School is rated Outstanding by Ofsted.

Wood Green Underground Station (Piccadilly Line Zone 3) is within just 5 minutes' walking distance. There’s lots of green space nearby; Russell Park and Belmont Park, Downhills Park and Lordship Rec are all within a few minutes’ walk. The Hub at Lordship Rec offers a range of community activities like yoga and children’s clubs, and Alexandra Palace is good for walks, concerts, the newly reopened theatre and the farmers’ market on Sundays.
Introduction text for the mortgage calculator

Mortgage Calculator

Fill in the details below to estimate your monthly repayments:

Approximate monthly repayment:

For more information, please contact Winkworth's mortgage partner, Trinity Financial, on +44 (0)20 7267 9399 and speak to the Trinity team.

Stamp Duty Calculator

Fill in the details below to estimate your stamp duty

The above calculator above is for general interest only and should not be relied upon

6/14
Picture No. 04
Picture No. 03
Picture No. 05
Picture No. 18
Picture No. 07
Picture No. 01
Picture No. 02
Picture No. 14
Picture No. 12
Picture No. 17
Picture No. 08
Picture No. 15
Picture No. 11
Picture No. 10
Picture No. 09
Picture No. 13
Picture No. 06
Picture No. 16

Meet the Team

At Winkworth Harringay Estate Agents, we have a comprehensive team of knowledgeable and personable property experts who are excited about the local area. So whether you're buying, selling, renting or letting or simply need some advice, pop into our office on Green Lanes for the experience and the local knowledge you need.

See all team members

Got a question about this property?

This site is protected by reCAPTCHA and the Google Privacy Policy and Terms of Service apply.

More Properties like this

New Instruction

Warham Road, London, N4

Guide Price £1,275,000 Freehold

Under Offer

Atterbury Road, Finsbury Park, N4

Guide Price £1,275,000 Freehold

Under Offer

Sydney Road, London, N8

Guide Price £1,150,000 Freehold

Jansons Road, London, N15

£1,100,000 Freehold

Under Offer

Hewitt Road, London, N8

Guide Price £1,100,000 Freehold

Under Offer

Lausanne Road, London, N8

Guide Price £1,050,000 Freehold

Online Valuations Aren’t Worth The Paper They’re Printed On.

When online valuations don’t give you the whole picture - try Winkworth’s expert service. Get a free property appraisal. Accurate valuations from our local property experts. No obligation to list with Winkworth. Choose a time convenient for you with our online booking system.

Fill in your details and someone will be in touch soon:

You have provisionally booked a valuation for . Please confirm your details below

We don't have date info available for this property, but if you fill in your details below, someone will be in touch to arrange a date soon

Please fill in the required fields below marked with *

This site is protected by reCAPTCHA and the Google Privacy Policy and Terms of Service apply.