Skip to main content

MyWinkworth

Sold

Picture No. 11
Picture No. 03
Picture No. 08
Picture No. 01
Picture No. 06
Picture No. 07
Picture No. 05
Picture No. 04
Picture No. 02
Picture No. 09
Picture No. 10
6/14

Mildmay Grove North, London, N1

1 bedroom flat/apartment in London

Offers in excess of £500,000 Leasehold

  • Bedrooms 1
  • Bathrooms 1
  • Reception rooms 1
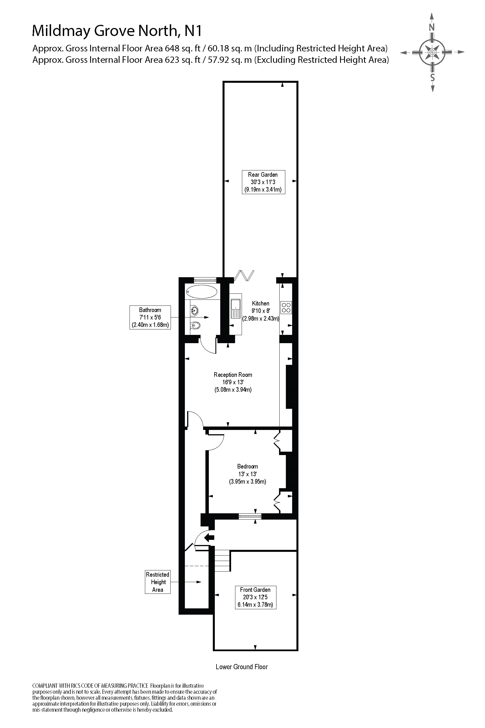
  • Floorplan

PICTURES AND VIDEOS

KEY INFORMATION

  • Tenure: Leasehold

Description

Set within this grand period building is this stunning one bedroom garden flat located on Mildmay Grove North. This wonderful home offers over 600 sq. ft of lateral space and is tastefully decorated throughout. The property benefits from its own private entrance which leads onto a large entrance hallway. To the front of the property is a bright and spacious master bedroom with plenty of built in wardrobe and cupboard space. To the rear is a spacious, semi open plan kitchen living space which leads onto a decked garden, the perfect entertaining space. The bathroom can also be found to the back of the property.

Mildmay Grove North is perfectly located for local shops, cafes and restaurants situated nearby on Newington Green which is well known for its village atmosphere. Upper Street is a short distance away and provides a selection of boutique shops, and bars as well as theatres and a vibrant nightlife. The green space of Clissold Park is close by and transport across London is made easy with over ground links at Canonbury and Essex Road providing easy access to the City and East London whilst Highbury and Islington (Victoria line) is the closest tube link. Numerous bus routes are found nearby making access across London easy and international transport is facilitated from St Pancras.
Introduction text for the mortgage calculator

Mortgage Calculator

Fill in the details below to estimate your monthly repayments:

Approximate monthly repayment:

For more information, please contact Winkworth's mortgage partner, Trinity Financial, on +44 (0)20 7267 9399 and speak to the Trinity team.

Stamp Duty Calculator

Fill in the details below to estimate your stamp duty

The above calculator above is for general interest only and should not be relied upon

6/14
Picture No. 11
Picture No. 03
Picture No. 08
Picture No. 01
Picture No. 06
Picture No. 07
Picture No. 05
Picture No. 04
Picture No. 02
Picture No. 09
Picture No. 10

Meet the Team

Our knowledgeable, friendly team here at Winkworth Islington Estate Agents are on hand to help whether you're buying, selling or renting. While we favour the local approach, by working closely with our London and national network alongside dedicated Corporate Services, marketing and PR departments, we give our clients an unparalleled advantage, matching homes with buyers and tenants throughout London and the UK.

See all team members

Got a question about this property?

This site is protected by reCAPTCHA and the Google Privacy Policy and Terms of Service apply.

More Properties like this

Richmond Avenue, London, N1

£1,500,000 Leasehold

Duncan Terrace, London, N1

£1,250,000 Share of Freehold

Under Offer

Penton Street, London, N1

Offers in excess of £1,100,000 Leasehold

New Instruction

Enfield Road, London, N1

Offers in excess of £1,000,000 Leasehold

Under Offer

Prior Bolton Street, Highbury Corner, London, N1

Offers in excess of £850,000 Leasehold

Under Offer

Ockendon Road, London, N1

£825,000 Leasehold

Online Valuations Aren’t Worth The Paper They’re Printed On.

When online valuations don’t give you the whole picture - try Winkworth’s expert service. Get a free property appraisal. Accurate valuations from our local property experts. No obligation to list with Winkworth. Choose a time convenient for you with our online booking system.

Fill in your details and someone will be in touch soon:

You have provisionally booked a valuation for . Please confirm your details below

We don't have date info available for this property, but if you fill in your details below, someone will be in touch to arrange a date soon

Please fill in the required fields below marked with *

This site is protected by reCAPTCHA and the Google Privacy Policy and Terms of Service apply.