Skip to main content

MyWinkworth

Sold

Front Elevation
Sitting Room
Garden
Kitchen
Dining Room
Bedroom
Shower Room
Bedroom
Garden
Rear Elevation
Dining Room
Landing
6/14

Herne Road, Petersfield, Hampshire, GU31

2 bedroom house in Petersfield

Guide Price £550,000 Freehold

  • Bedrooms 2
  • Bathrooms 2
  • Reception rooms 2
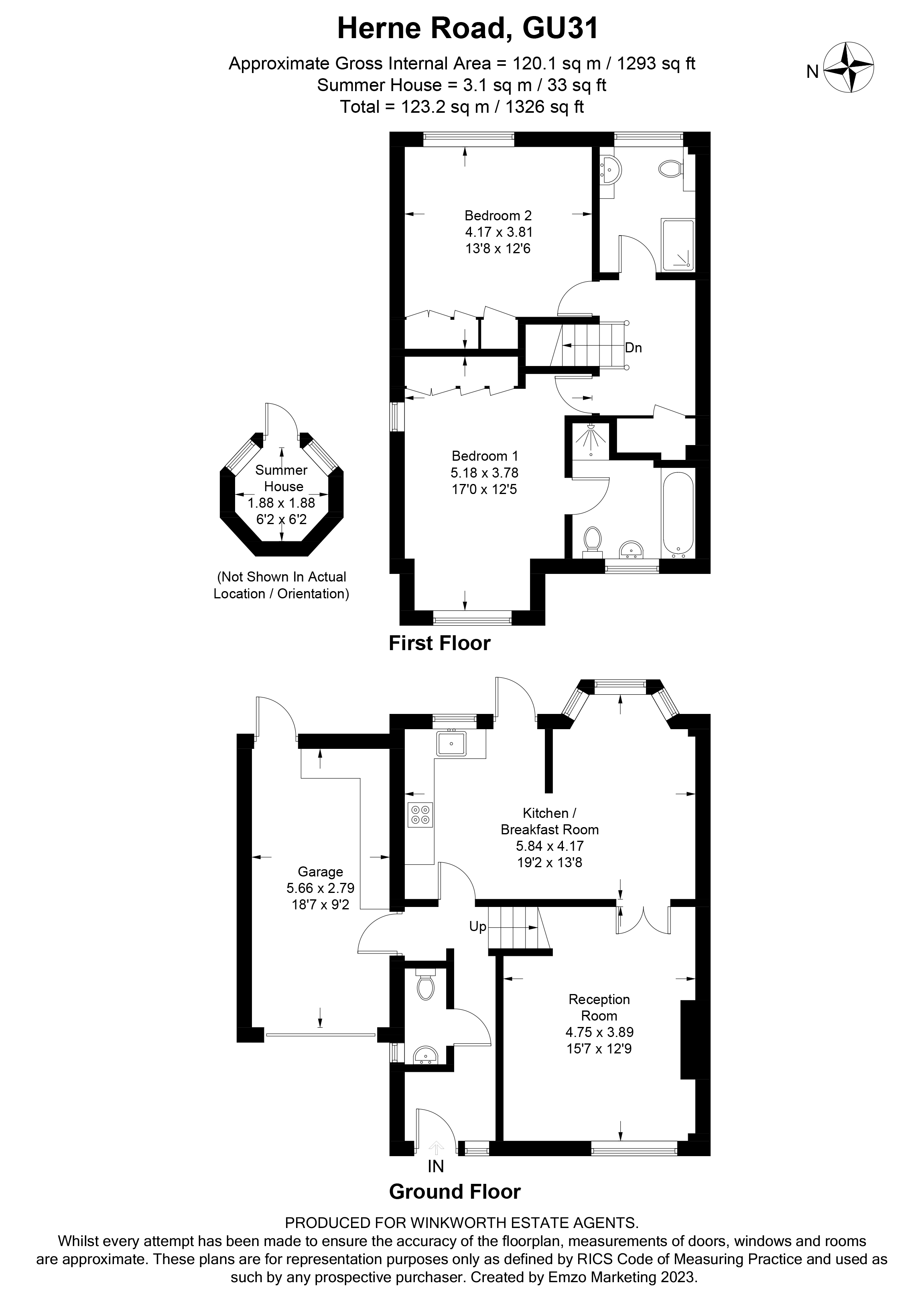
  • Floorplan

PICTURES AND VIDEOS

KEY FEATURES

  • Main bedroom with en suite bathroom, bedroom two, family shower room, hall, sitting room, kitchen, dining area, downstairs cloakroom with WC, garage, parking and garden. EPC Rating: "C" (71).

KEY INFORMATION

  • Tenure: Freehold
  • Local Authority: East Hampshire District Council

Description

A modern home on the popular Herne Farm Development with a garage, parking and garden and yet just 350 metres from both Petersfield High Street and The Heath.

The property is a modern attached home with brick elevations under a tiled roof and accommodation over two floors. The floorplan denotes the layout which offers well-proportioned, open accommodation on the ground floor. From the hall, stairs rise to the first floor landing, off which is the main bedroom, with its own en suite bathroom, a second bedroom and family shower room. Both bedrooms have built in wardrobes. To the front of the house is an area of lawn, to the left of which is a drive leading to a single attached garage. The main garden is to the rear which is predominantly laid to lawn with a variety of mature borders and shrubs enclosed by fencing. There is a small summerhouse, in need of some updating.

Location

The property is situated at the town end of the popular Herne Farm estate, approximately 0.2 mile to the east of Petersfield High Street. The residents of the estate benefit from a private leisure centre which includes a swimming pool, two squash courts and a bookable hall. Petersfield is situated in the heart of The South Downs National Park and offers a variety of amenities in a bustling town centre. Shops include Waitrose, M&S Food, Tesco and there are numerous boutiques, cafes and further shops. The train station provides a direct service to London Waterloo to the north (in approximately an hour) and Portsmouth to the south. The town has many active clubs and societies with golf available at Petersfield and Liphook, horse and motor racing at Goodwood, polo at Cowdray Park and sailing along the South Coast. There are many popular schools in the area which include Churcher’s College, Bedales, Ditcham Park and The Petersfield School (TPS).

Herne Farm Limited service charges: £120 per annum (2020).

Services: Mains water, electricity, gas and drainage.

Ref: AB/230094/2
Introduction text for the mortgage calculator

Mortgage Calculator

Fill in the details below to estimate your monthly repayments:

Approximate monthly repayment:

For more information, please contact Winkworth's mortgage partner, Trinity Financial, on +44 (0)20 7267 9399 and speak to the Trinity team.

Stamp Duty Calculator

Fill in the details below to estimate your stamp duty

The above calculator above is for general interest only and should not be relied upon

6/14
Front Elevation
Sitting Room
Garden
Kitchen
Dining Room
Bedroom
Shower Room
Bedroom
Garden
Rear Elevation
Dining Room
Landing

Meet the Team

Our team at Winkworth Petersfield Estate Agents are here to support and advise our customers when they need it most. We understand that buying, selling, letting or renting can be daunting and often emotionally meaningful. We are there, when it matters, to make the journey as stress-free as possible.

See all team members

Got a question about this property?

This site is protected by reCAPTCHA and the Google Privacy Policy and Terms of Service apply.

More Properties like this

Under Offer

Stoner Hill, Steep, Petersfield, Hampshire, GU32

Guide Price £1,750,000 Freehold

Under Offer

Barnfield Road, Petersfield, Hampshire, GU31

Guide Price £1,600,000 Freehold

Borough Road, Petersfield, Hampshire, GU32

Guide Price £1,350,000 Freehold

Under Offer

Parsonage Close, Petersfield, Hampshire, GU32

Guide Price £1,250,000 Freehold

Under Offer

The Avenue, Petersfield, Hampshire, GU31

Offers over £1,200,000 Freehold

Under Offer

North Lane, South Harting, Petersfield, Hampshire, GU31

Guide Price £1,100,000 Freehold

Online Valuations Aren’t Worth The Paper They’re Printed On.

When online valuations don’t give you the whole picture - try Winkworth’s expert service. Get a free property appraisal. Accurate valuations from our local property experts. No obligation to list with Winkworth. Choose a time convenient for you with our online booking system.

Fill in your details and someone will be in touch soon:

You have provisionally booked a valuation for . Please confirm your details below

We don't have date info available for this property, but if you fill in your details below, someone will be in touch to arrange a date soon

Please fill in the required fields below marked with *

This site is protected by reCAPTCHA and the Google Privacy Policy and Terms of Service apply.