Skip to main content

MyWinkworth

Sold

Garden Part Two
Reception Room 1 P1
Kitchen Part One
Reception Room 2
Kitchen Part Two
Reception Room 1 P2
Bedroom One
Bedroom Two
Bedroom Three
Bathroom
Conservatory
Garden Part One
Garden Part Three
6/14

Dunstans Road, East Dulwich, London, SE22

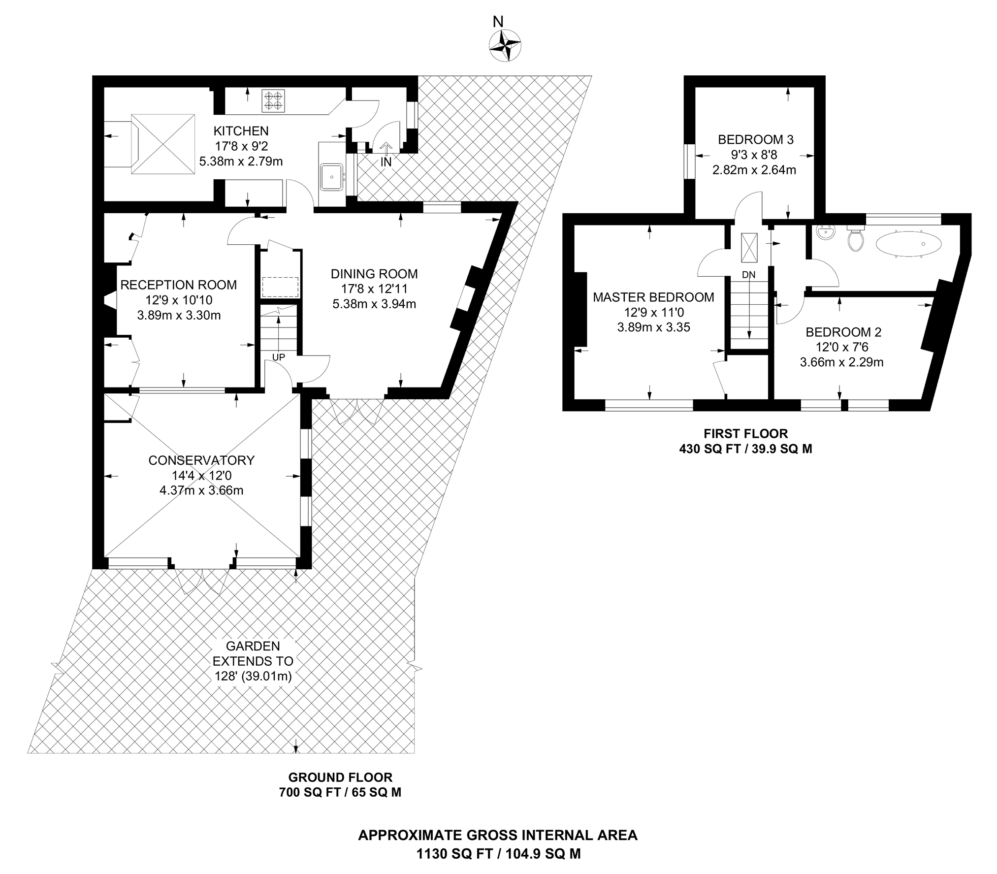
3 bedroom house

£1,150,000 Freehold

  • Bedrooms 3
  • Bathrooms 1
  • Reception rooms 2
  • Floorplan

PICTURES AND VIDEOS

KEY FEATURES

  • Detached House
  • Amazing Private South and West Facing Garden/Grounds
  • Chain Free
  • Three Bedrooms
  • Potential to Extend (Plans Available Upon Request – Subject to Planning Permission)
  • Two Reception Rooms
  • Separate Kitchen
  • Family Bathroom
  • Conservatory

KEY INFORMATION

  • Tenure: Freehold

Description

A very rarely available detached family home, set within extensive grounds in SE22. This fantastic home is offered to the market chain free.

Nestled down a private path and situated on an expansive plot, the property boasts an amazing south and west facing, sunny, mature garden that stretches over an impressive 700 feet in length, providing an idyllic retreat from the bustling city. The property comprises a large ground floor area incorporating a reception room with working fireplace, a large dining room, a separate kitchen and a conservatory overlooking the wonderful gardens - ideal for entertaining guests. The first floor comprises three double bedrooms and a family bathroom. The property has ample storage, including a loft space and two garden sheds. The main shed has power, lighting and a workbench. The property has extensive potential to develop, with extension plans available upon request - subject to planning permission. The private gardens present endless possibilities for relaxation, recreation and potential extensions and/or ‘garden rooms’. This unique home invites its owners to unleash their creativity and make the most of its vast potential. Located in the sought-after area of East Dulwich, this family home is situated close to Goodrich Primary school and within easy reach of both Dulwich Park and Peckham Rye Park. Lordship Lane with its abundance of shops, bars, restaurants and a cinema are all within walking distance. Excellent transport links from either Honor Oak Park for the East London line or Peckham Rye for the overground, allow for convenient connections to central London and beyond.

Council Tax Band D
Introduction text for the mortgage calculator

Mortgage Calculator

Fill in the details below to estimate your monthly repayments:

Approximate monthly repayment:

For more information, please contact Winkworth's mortgage partner, Trinity Financial, on +44 (0)20 7267 9399 and speak to the Trinity team.

Stamp Duty Calculator

Fill in the details below to estimate your stamp duty

The above calculator above is for general interest only and should not be relied upon

6/14
Garden Part Two
Reception Room 1 P1
Kitchen Part One
Reception Room 2
Kitchen Part Two
Reception Room 1 P2
Bedroom One
Bedroom Two
Bedroom Three
Bathroom
Conservatory
Garden Part One
Garden Part Three

Meet the Team

Our team at Winkworth Dulwich Estate Agents are here to support and advise our customers when they need it most. We understand that buying, selling, letting or renting can be daunting and often emotionally meaningful. We are there, when it matters, to make the journey as stress-free as possible.

See all team members

Got a question about this property?

This site is protected by reCAPTCHA and the Google Privacy Policy and Terms of Service apply.

More Properties like this

Video Tour

Under Offer

Crystal Palace Road, East Dulwich, London, SE22

Offers in excess of £2,000,000 Freehold

Under Offer

Crystal Palace Road, East Dulwich, London, SE22

£2,000,000 Freehold

Video Tour

Under Offer

Overhill Road, East Dulwich, London, SE22

£2,000,000 Freehold

Under Offer

Friern Road, East Dulwich, London, SE22

Offers in excess of £1,800,000 Freehold

Under Offer

Ondine Road, Peckham Rye, London, SE15

Offers in excess of £1,800,000 Freehold

Under Offer

Bellenden Road, Peckham Rye, London, SE15

Offers in excess of £1,800,000 Freehold

Online Valuations Aren’t Worth The Paper They’re Printed On.

When online valuations don’t give you the whole picture - try Winkworth’s expert service. Get a free property appraisal. Accurate valuations from our local property experts. No obligation to list with Winkworth. Choose a time convenient for you with our online booking system.

Fill in your details and someone will be in touch soon:

You have provisionally booked a valuation for . Please confirm your details below

We don't have date info available for this property, but if you fill in your details below, someone will be in touch to arrange a date soon

Please fill in the required fields below marked with *

This site is protected by reCAPTCHA and the Google Privacy Policy and Terms of Service apply.