Skip to main content

MyWinkworth

New Instruction

Photo 14
Picture No. 26
Picture No. 30
Picture No. 28
Picture No. 27
Picture No. 23
Picture No. 20
Picture No. 29
Picture No. 24
Picture No. 31
Picture No. 32
Picture No. 25
Picture No. 33
Photo 13
Photo 01
6/14

Slade Baker Way, Scholar's Chase, Stoke Gifford, Bristol, BS16

6 bedroom house in Scholar's Chase

£923 per week (£4,000 per month) Fees may apply

  • Bedrooms 6
  • Bathrooms 2
  • Reception rooms 2
  • Furnished
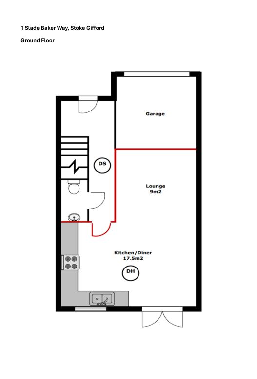
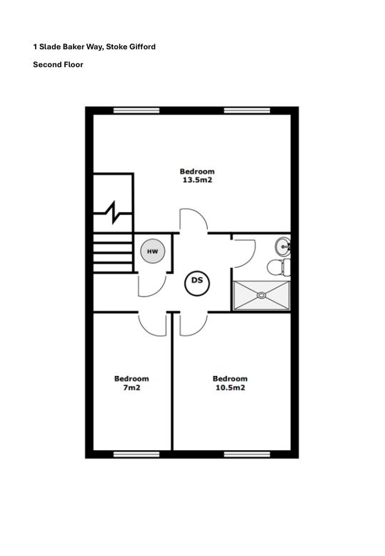
  • Floorplan
6/14

PICTURES AND VIDEOS

KEY FEATURES

  • Property will be converted this summer 2024
  • Six double bedrooms
  • Student property
  • Opposite Frenchay Campus
  • Fully Furnished
  • Private Garden
  • Garage not Included

KEY INFORMATION

  • Deposit: 5 Weeks rent
  • Council Tax Band: E

Description

STUDENT PROPERTY! BILLS INCLUSIVE. This stunning property is a definite must see, and provides students with high-end, student living.

An impressive house is spread across three storeys and boasts modern furnishings with suitable décor to match! Located in the new Scholar's Chase development, this is a very popular choice for UWE students looking to be stones throw close to Frenchay campus.

The property will boast six double bedrooms, a living room area and modern kitchen/dining room on the ground floor.

There is a luxury fitted bathroom with stylish interiors, a further en-suite for the master bedroom and a WC on the ground floor.

*****Please be aware that the garage is excluded has been converted internally and as such there is no garage included in the rental.

The property is available at £4,000 bills included bar broadband or 4100 pcm inclusive of gas, electric water and broadband (subject to fair usage policy of £70.00 per tenant per month).

AVAILABILE: August 2026
UTILITIES: Mains electric, gas and water.
COUNCIL TAX: Band E South Gloucester
(Students are responsible to contact the council to prove their status for the council tax exemption).
EPC: B
POSTCODE: BS16 1QT

BROADBAND: Standard, superfast and ultrafast broadband is available at the property although applicants should check it is suitable for the requirements.

https://checker.ofcom.org.uk/en-gb/broadband-coverage

MOBILE SIGNAL: Outdoor & Indoor coverage across major network providers and likely outdoor coverage. Applicants are encouraged to check coverage with their own chosen provider.

https://www.ofcom.org.uk/mobile-coverage-checker

Holding Deposit
A holding deposit of one week's rent will be due to take this property off the market

The rent is payable monthly and in advance. Rent must be paid as one lump sum from one bank account. When you take a property and after you've passed the referencing, we'll take the initial rental payment from you to ensure you're really serious about taking the property. You then pay rent again at the beginning of the 2nd month after you have moved in, and monthly thereafter.

Damage and Dilapidation deposit
The deposit is set at the equivalent of 5 weeks rent. Your deposit is protected in accordance with relevant legislation.

Marketed by

Winkworth Bishopston

Properties for rent in Bishopston

Arrange a Viewing

Fill in the form below to arrange your property viewing.

This site is protected by reCAPTCHA and the Google Privacy Policy and Terms of Service apply.
6/14
Photo 14
Picture No. 26
Picture No. 30
Picture No. 28
Picture No. 27
Picture No. 23
Picture No. 20
Picture No. 29
Picture No. 24
Picture No. 31
Picture No. 32
Picture No. 25
Picture No. 33
Photo 13
Photo 01

Meet the Team

Our team at Winkworth Bishopston Estate Agents are here to support and advise our customers when they need it most. We understand that buying, selling, letting or renting can be daunting and often emotionally meaningful. We are there, when it matters, to make the journey as stress-free as possible.

See all team members

Got a question about this property?

This site is protected by reCAPTCHA and the Google Privacy Policy and Terms of Service apply.

More Properties like this

Let Agreed

Rowlandson Gardens, Lockleaze, Bristol, BS7

£1,038 per week (£4,500 per month)

Slade Baker Way, Scholar's Chase, Bristol, BS16

£1,038 per week (£4,500 per month)

Hawksmoor Lane, Stoke Park, Stapleton, Bristol, BS16

£1,025 per week (£4,440 per month)

Third Avenue, Bristol, BS7

£981 per week (£4,250 per month)

Fifth Avenue, Bristol, BS7

£923 per week (£4,000 per month)

Parnell Road, Stoke Park, Stapleton, Bristol, BS16

£923 per week (£4,000 per month)

Online Valuations Aren’t Worth The Paper They’re Printed On.

When online valuations don’t give you the whole picture - try Winkworth’s expert service. Get a free property appraisal. Accurate valuations from our local property experts. No obligation to list with Winkworth. Choose a time convenient for you with our online booking system.

Fill in your details and someone will be in touch soon:

You have provisionally booked a valuation for . Please confirm your details below

We don't have date info available for this property, but if you fill in your details below, someone will be in touch to arrange a date soon

Please fill in the required fields below marked with *

This site is protected by reCAPTCHA and the Google Privacy Policy and Terms of Service apply.