New Instruction
Beulah Hill, London, SE19
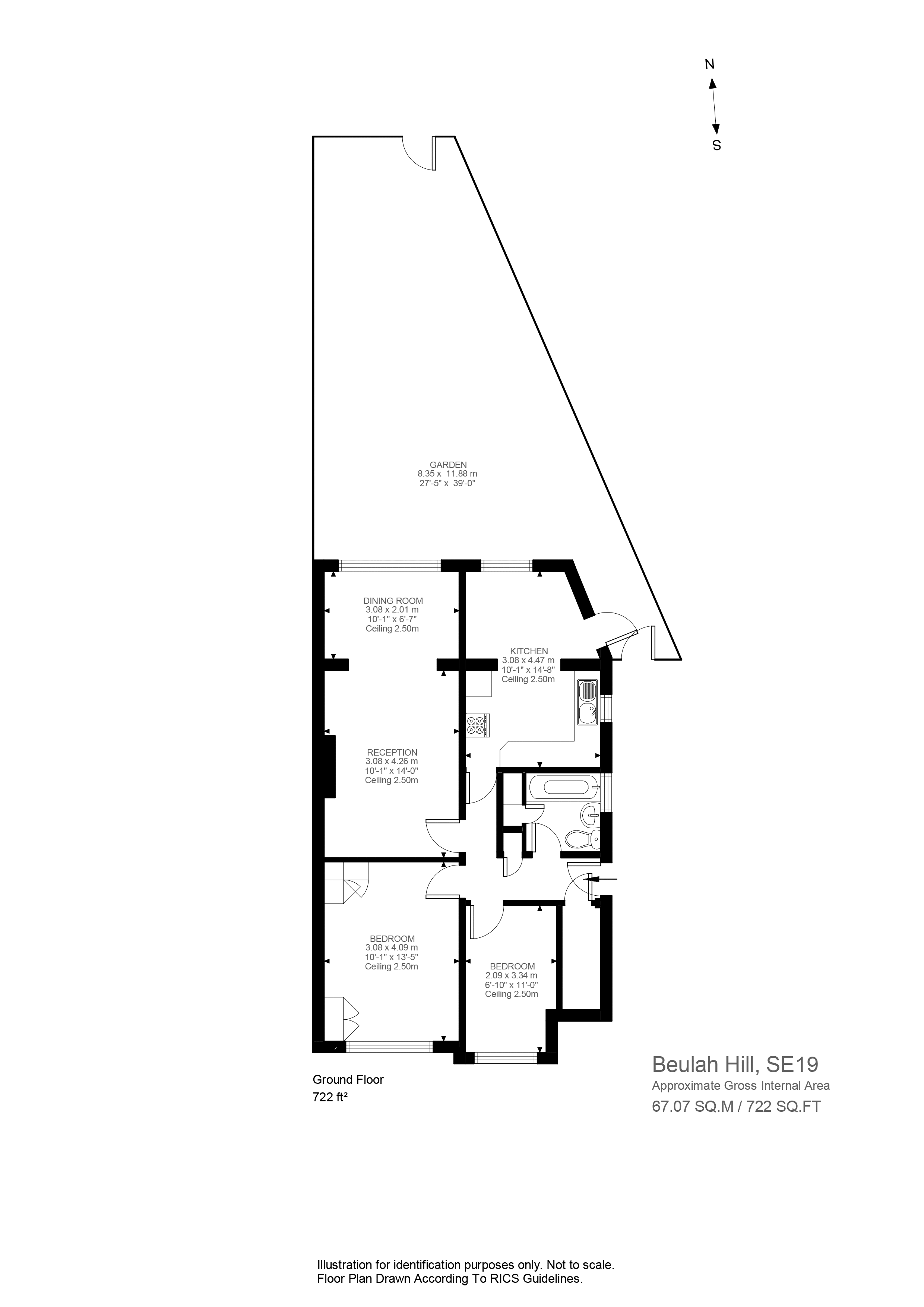
2 bedroom maisonette in London
£369 per week
- 2
- 1
- 1
PICTURES AND VIDEOS


















KEY FEATURES
- Two bedrooms
- Ground floor flat
- Eat in kitchen
- Spacious reception
- Garden
- Holding deposit: £369.23 (1 weeks rent)
- Deposit: £1,846.15 (5 weeks rent)
- Croydon council tax band C: £2,204.87pa
Description
The property comprises entrance hallway with good sized storage cupboard, bathroom suite, good sized double bedroom with great fitted wardrobe space, second smaller bedroom, spacious reception room, separate eat in kitchen with access out onto the well maintained garden.
There are many excellent bus routes on your doorstep which connect you to the rail links of Gipsy Hill, West Norwood and Norwood Junction. Local amenities can be found at Crystal Palace or Crown Point.
Rent: £1,600pm
Holding deposit: £369.23 (1 weeks rent)
Deposit: £1,846.15 (5 weeks rent)
Croydon council tax band C: £2,204.87pa
Marketed by
Winkworth Crystal Palace
Properties for rent in Crystal PalaceArrange a Viewing
Fill in the form below to arrange your property viewing.
Meet the Team
Our team at Winkworth Crystal Palace Estate Agents are here to support and advise our customers when they need it most. We understand that buying, selling, letting or renting can be daunting and often emotionally meaningful. We are there, when it matters, to make the journey as stress-free as possible.
See all team members