Skip to main content

MyWinkworth

Sold

Picture No. 89
Picture No. 58
Picture No. 57
Picture No. 88
Picture No. 79
Picture No. 66
Picture No. 71
Picture No. 72
Picture No. 73
Picture No. 75
Picture No. 74
Picture No. 68
Picture No. 69
Picture No. 67
Picture No. 70
Picture No. 77
Picture No. 76
Picture No. 87
Picture No. 53
Picture No. 64
Picture No. 81
Picture No. 65
Picture No. 78
Picture No. 86
Picture No. 56
Picture No. 85
Picture No. 50
Picture No. 51
Picture No. 52
Picture No. 49
Picture No. 82
Picture No. 84
Picture No. 59
Picture No. 60
Picture No. 61
Picture No. 80
Picture No. 62
Picture No. 63
Picture No. 46
6/14

Furzehill, Wimborne, Dorset, BH21

4 bedroom house in Wimborne

£820,000 Freehold

  • Bedrooms 4
  • Bathrooms 2
  • Reception rooms 2
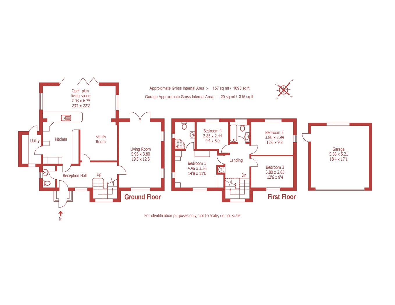
  • Floorplan

PICTURES AND VIDEOS

KEY FEATURES

  • Beautifully presented family house
  • Central village location just over a mile from Wimborne
  • Superb triple aspect kitchen/dining/family room
  • Spacious living room
  • Views over the adjacent farmland

KEY INFORMATION

  • Tenure: Freehold
  • Council Tax Band: F

Description

A beautifully presented, modern 4 double bedroom detached house in the heart of the popular village of Furzehill, just over a mile from the centre of Wimborne.

Built in 1987, and owned by our clients since 2002, the property was extended in 2009 to create a large kitchen/dining/family room with bifold doors to the garden. There is also a spacious triple aspect living room.

The house is of traditional construction, with brick elevations, a roof of small plain tiles and 2 gabled tile hung dormers. It is connected to all mains services, and has gas central heating, double glazing, quality oak internal doors, double garaging, off road parking and an attractively landscaped garden adjoining farmland.

A gabled entrance porch and feature front door lead to a large reception hall with oak boarded floor, under stairs storage space and a cloakroom. The spacious triple aspect living room has a multifuel fire, and glazed double doors to the rear garden.

The impressive triple aspect kitchen/dining/family area has bifold doors to the garden, an oak boarded floor, space for sofas and a large table and chairs, and a contemporary wood burning stove on a marble hearth. The kitchen includes silestone work surfaces, a comprehensive range of high gloss units, a Leisure Cookmaster range cooker with glass splashplate and extractor hood above, a built-in LG American style fridge-freezer, and an integrated dishwasher.

Adjacent to the kitchen there is a utility room with hardwood work surface, cupboards, space for white goods, wall mounted gas boiler, and door to outside.

An oak and glass staircase leads to the first floor landing which has loft access and an airing cupboard. Bedroom 1 is a spacious double room with a comprehensive range of fitted furniture and an en suite shower room. Bedroom 2 has a full height wardrobe and a superb view over farmland to the rear. Bedroom 3 has a full height wardrobe, and bedroom 4, which is a smaller double room currently used as a study, has a rural view to the rear. There is also a family bathroom.

Outside there are shingle and tarmac driveways providing off road parking, and a detached double garage with up-and-over door, personal door, light, power and storage space. The front garden is enclosed by a low brick wall and a grass verge, and is planted with a wide selection of shrubs including laurels and camellias. There is a wisteria on the side of the house.

The rear garden is a particular feature of the property, backing onto open farmland and comprising a full width entertaining terrace/barbecue area wrapping around the house, a greenhouse enclosed by fencing, a magnolia, a fig tree, a moongate with honeysuckle, a small, well maintained lawn and a wealth of spring and summer flowers including roses.

Location

Furzehill is a popular village set just over a mile from Wimborne town centre, with The Stocks Inn pub/restaurant and a busy post office/shop. Dumpton Preparatory School is situated on the edge of the village and there is easy access to first schools at Gaunts Common and Witchampton, Allenbourn Middle School, and Queen Elizabeth’s School at Pamphill. The major coastal towns of Poole and Bournemouth, both of which have mainline rail links to London Waterloo, are within 30 minutes’ drive.
Introduction text for the mortgage calculator

Mortgage Calculator

Fill in the details below to estimate your monthly repayments:

Approximate monthly repayment:

For more information, please contact Winkworth's mortgage partner, Trinity Financial, on +44 (0)20 7267 9399 and speak to the Trinity team.

Stamp Duty Calculator

Fill in the details below to estimate your stamp duty

The above calculator above is for general interest only and should not be relied upon

6/14
Picture No. 89
Picture No. 58
Picture No. 57
Picture No. 88
Picture No. 79
Picture No. 66
Picture No. 71
Picture No. 72
Picture No. 73
Picture No. 75
Picture No. 74
Picture No. 68
Picture No. 69
Picture No. 67
Picture No. 70
Picture No. 77
Picture No. 76
Picture No. 87
Picture No. 53
Picture No. 64
Picture No. 81
Picture No. 65
Picture No. 78
Picture No. 86
Picture No. 56
Picture No. 85
Picture No. 50
Picture No. 51
Picture No. 52
Picture No. 49
Picture No. 82
Picture No. 84
Picture No. 59
Picture No. 60
Picture No. 61
Picture No. 80
Picture No. 62
Picture No. 63
Picture No. 46

Contact Wimborne

See all team members

Got a question about this property?

This site is protected by reCAPTCHA and the Google Privacy Policy and Terms of Service apply.

More Properties like this

Willett Road, Ashington, Wimborne, Dorset, BH21

£1,500,000 Freehold

Gaunts Common, Wimborne, Dorset, BH21

£1,295,000 Freehold

Under Offer

Rowlands Hill, Wimborne, Dorset, BH21

£1,100,000 Freehold

Albert Road, Corfe Mullen, Wimborne, Dorset, BH21

Offers in excess of £1,000,000 Freehold

Rowlands Hill, Wimborne, Dorset, BH21

Guide Price £1,000,000 Freehold

Furzehill, Wimborne, Dorset, BH21

Guide Price £1,000,000 Freehold

Online Valuations Aren’t Worth The Paper They’re Printed On.

When online valuations don’t give you the whole picture - try Winkworth’s expert service. Get a free property appraisal. Accurate valuations from our local property experts. No obligation to list with Winkworth. Choose a time convenient for you with our online booking system.

Fill in your details and someone will be in touch soon:

You have provisionally booked a valuation for . Please confirm your details below

We don't have date info available for this property, but if you fill in your details below, someone will be in touch to arrange a date soon

Please fill in the required fields below marked with *

This site is protected by reCAPTCHA and the Google Privacy Policy and Terms of Service apply.