Skip to main content

MyWinkworth

Sold

CB00 DSC_1466.JPG
A VIEW DSC_1548.JPG
A SITTING ROOM 1 DSC
A SITTING ROOM 2 DSC
A DINING ROOM 1 DSC_
A DINING ROOM 2 DSC_
A KITCHEN 1 DSC_1665
A KITCHEN 2 DSC_1653
A KITCHEN 3 DSC_1661
A STUDY DSC_1542.JPG
A HALL 1 DSC_1683.JP
A HALL 2 DSC_1673.JP
A BEDROOM 1A DSC_155
A BEDROOMJ 1C DSC_15
A BEDROOM 2A DSC_162
A BEDROOM 2C DSC_163
A BEDROOM 3A DSC_158
A BEDROOM 3B DSC_159
A BEDROOM 4A DSC_157
A BEDROOM 4B DSC_158
A BATHROOM 1 DSC_160
A GARDEN 1 DSC_1487.
A GARDEN 2 DSC_1479.
A REAR ELEVATION 1 D
6/14

Furzehill, Wimborne, Dorset, BH21

4 bedroom house

Guide Price £850,000 Freehold

  • Bedrooms 4
  • Bathrooms 3
  • Reception rooms 3
  • Floorplan

PICTURES AND VIDEOS

KEY FEATURES

  • Marketed By Christopher Batten
  • 4 large double bedrooms
  • Bathroom and 2 en suite sower rooms
  • 3 reception rooms
  • Kitchen/breakfast room and utility room
  • Landscaped garden with lovely rural views

KEY INFORMATION

  • Tenure: Freehold
  • Council Tax Band: G

Description

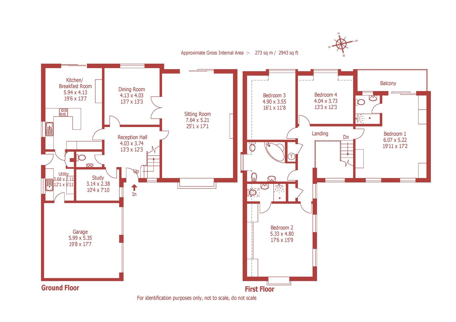
A large 4 bedroom detached house with landscaped gardens and superb views over the adjacent farmland, for sale with NO FORWARD CHAIN, in the popular village of Furzehill, just over a mile to the north of Wimborne Minster.

Extending to nearly 3,000 square feet including 3 reception rooms, 4 large double bedrooms, a large bathroom and 2 en suite shower rooms, the property enjoys a lovely outlook over the greenbelt to the rear.

Constructed in 1988 by a well known building company and occupied by the present owners since new, the property would now benefit from a programme of modernisation but offers great potential for improvement. It is of traditional construction with facing red brick elevations, a tiled canopy, and a hipped roof of small plain tiles (with a tall brick chimney.) The house is connected to mains gas, electricity and water, and there is a private drainage system, but connection to mains drainage is available.

Furzehill has the Stocks Inn pub/restaurant and a busy post office/shop, and Dumpton Preparatory School is situated at the edge of the village. There are First Schools in the nearby villages of Gaunts Common and Witchampton, and there is easy access to Wimborne and its many amenities. The coastal towns of Poole and Bournemouth, both of which have mainline rail links to London Waterloo, are within 30 minutes' drive.

A wide covered entrance way and brick step lead to a large reception hall with under stairs cupboard and ground floor cloakroom (with WC and wash basin.) The superb, dual aspect 25ft sitting room has an Adam style fireplace, a box bay window to the front, and sliding doors to the rear garden giving an impressive open view over the adjacent farmland. Glazed double doors give access to a dining room with views of the garden and farmland beyond, and there is a study overlooking the driveway.

There is a large kitchen/breakfast room with sliding doors to the garden, original medium oak units, stainless steel sink, Neff double oven, ceramic hob, extractor, space for dishwasher and fridge-freezer, space for table and chairs, and a lovely view over the garden and farmland beyond. A door leads to a spacious utility room with worktops, stainless steel sink, base and wall cupboards, space for white goods, walk-in storage cupboard, and doors to the garage and outside.

Stairs lead to a semi-galleried first floor landing with loft access, airing and storage cupboards.

Bedroom 1 is a large dual aspect room with fitted furniture, and sliding doors to a balcony (with wrought iron balustrade) providing a superb view over the adjacent fields. There is an en suite shower room with walk-in double shower, wash basin, WC and fully tiled walls.

Bedroom 2 is a spacious dual aspect room with fitted furniture and an en suite shower room (with walk-in double shower, wash basin, WC, fully tiled walls and rooflight.) Bedroom 3 has a superb view over the rear garden and adjacent farmland, and bedroom 4 also has a lovely rural view. There is a large family bathroom with corner bath, wash basin, WC, bidet and fully tiled walls.

There is a large tarmac driveway and turning area providing space for numerous vehicles and leading to an integral double garage with 2 up-and-over doors. The front garden is enclosed by beech hedges, with a small lawn and well maintained shrubs including an impressive camellia.

The attractively landscaped rear garden has a low rear hedgerow to take advantage of the lovely views over the adjacent fields, and features a large, well maintained lawn, mixed hedges, a timber arbour with honeysuckle and a full width paved entertaining terrace. It is well stocked with trees and shrubs including wisteria, magnolia, conifer, hydrangeas and roses.

Location

From Wimborne, proceed north on the B3078 towards Cranborne. Turn right into the village of Furzehill, and the property can be found on the right hand side before reaching the crossroads with Smugglers Lane and Grange.

DISCLAIMER: Christopher Batten wishes to inform prospective buyers that these particulars are a guide and act as information only. All our details are given in good faith and believed to be correct at the time of issue but they don't form part of an offer or contract. No Christopher Batten employee has authority to make or give any representation or warranty in relation to this property. All fixtures and fittings, whether fitted or not are deemed removable by the vendor unless stated otherwise and room sizes are measured between internal wall surfaces, including furnishings.
Introduction text for the mortgage calculator

Mortgage Calculator

Fill in the details below to estimate your monthly repayments:

Approximate monthly repayment:

For more information, please contact Winkworth's mortgage partner, Trinity Financial, on +44 (0)20 7267 9399 and speak to the Trinity team.

Stamp Duty Calculator

Fill in the details below to estimate your stamp duty

The above calculator above is for general interest only and should not be relied upon

6/14
CB00 DSC_1466.JPG
A VIEW DSC_1548.JPG
A SITTING ROOM 1 DSC
A SITTING ROOM 2 DSC
A DINING ROOM 1 DSC_
A DINING ROOM 2 DSC_
A KITCHEN 1 DSC_1665
A KITCHEN 2 DSC_1653
A KITCHEN 3 DSC_1661
A STUDY DSC_1542.JPG
A HALL 1 DSC_1683.JP
A HALL 2 DSC_1673.JP
A BEDROOM 1A DSC_155
A BEDROOMJ 1C DSC_15
A BEDROOM 2A DSC_162
A BEDROOM 2C DSC_163
A BEDROOM 3A DSC_158
A BEDROOM 3B DSC_159
A BEDROOM 4A DSC_157
A BEDROOM 4B DSC_158
A BATHROOM 1 DSC_160
A GARDEN 1 DSC_1487.
A GARDEN 2 DSC_1479.
A REAR ELEVATION 1 D

Contact Wimborne

See all team members

Got a question about this property?

This site is protected by reCAPTCHA and the Google Privacy Policy and Terms of Service apply.

More Properties like this

Willett Road, Ashington, Wimborne, Dorset, BH21

£1,500,000 Freehold

Gaunts Common, Wimborne, Dorset, BH21

£1,295,000 Freehold

Under Offer

Rowlands Hill, Wimborne, Dorset, BH21

£1,100,000 Freehold

Albert Road, Corfe Mullen, Wimborne, Dorset, BH21

Offers in excess of £1,000,000 Freehold

Rowlands Hill, Wimborne, Dorset, BH21

Guide Price £1,000,000 Freehold

Furzehill, Wimborne, Dorset, BH21

Guide Price £1,000,000 Freehold

Online Valuations Aren’t Worth The Paper They’re Printed On.

When online valuations don’t give you the whole picture - try Winkworth’s expert service. Get a free property appraisal. Accurate valuations from our local property experts. No obligation to list with Winkworth. Choose a time convenient for you with our online booking system.

Fill in your details and someone will be in touch soon:

You have provisionally booked a valuation for . Please confirm your details below

We don't have date info available for this property, but if you fill in your details below, someone will be in touch to arrange a date soon

Please fill in the required fields below marked with *

This site is protected by reCAPTCHA and the Google Privacy Policy and Terms of Service apply.