New Instruction
Low Road, Keswick, Norwich, Norfolk, NR4
3 bedroom house in Keswick
Offers in excess of £600,000 Freehold
- 3
- 2
- 2
PICTURES AND VIDEOS



































KEY FEATURES
- Highly unique semi-detached home on the picturesque and sought-after Keswick Road
- Additional 2-acre plot currently used as a smallholding and equestrian facility
- Complete with three stables, barn, outbuildings, and securely fenced paddocks
- Fully renovated by the current owners in recent years to create a stylish modern home
- Sizeable driveway providing ample off-road parking and direct access to garden and land
- Stunning 20ft open-plan kitchen/diner with central island, integral appliances, and double doors to patio
- Cosy lounge featuring a wood-burning stove perfect for relaxing evenings
- Garden room/utility space offering excellent versatility
- Three well-proportioned bedrooms and an updated family bathroom on the first floor
- A rare opportunity to acquire land and lifestyle living so close to Norwich city centre
KEY INFORMATION
- Tenure: Freehold
- Council Tax Band: B
Description
Set on a plot measuring approximately two acres, the grounds are currently used as a smallholding and equestrian facility, complete with three stables, a barn, additional outbuildings, and securely fenced paddocks. Having this level of land and flexibility in such a prime, accessible location is a true rarity, making this home perfect for those seeking land with immediate agricultural or equestrian use.
The property itself has been lovingly renovated in recent years by the current owners, who have created a stylish, comfortable, and practical home to match its idyllic surroundings. As you travel down Low Road, the leafy approach sets the tone. A tranquil, rural atmosphere just minutes from the city.
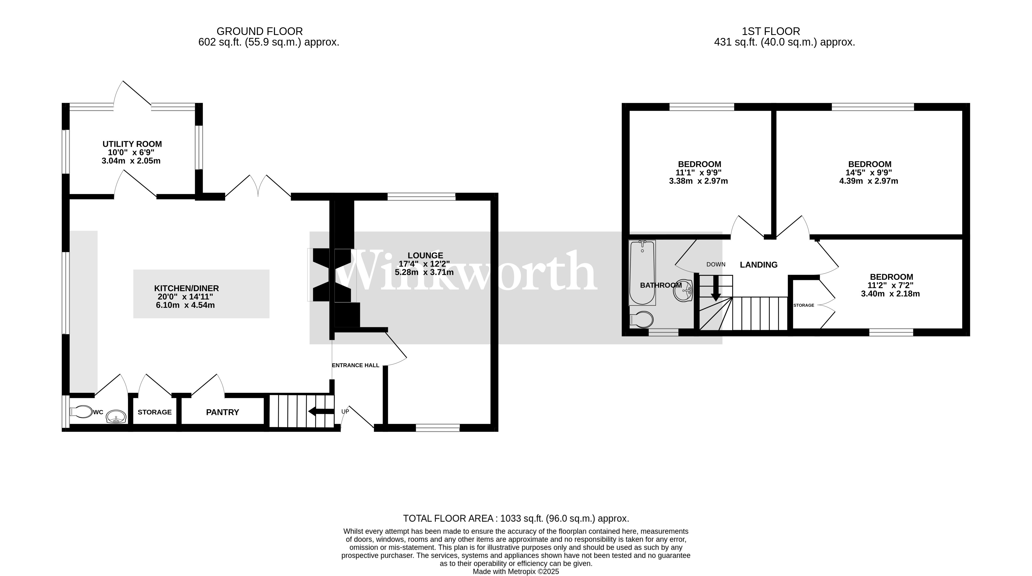
On arrival, a sizeable driveway provides ample off-road parking for multiple vehicles and offers direct access to the rear garden and land beyond. Inside, the welcoming entrance hall leads to both the spacious open-plan kitchen/diner and the separate lounge.
The kitchen/diner, measuring an impressive 20ft wide, forms the social heart of this home perfect for entertaining. Double doors open onto the patio and gardens, seamlessly blending indoor and outdoor living. The modern kitchen features a striking central island, a range of integrated appliances, and a walk-in pantry offering extra storage space.
A garden room, currently used as a versatile utility area, adds further flexibility to the layout, while the separate lounge offers a more intimate setting, complete with a wood-burning stove creating a warm, cosy atmosphere.
Upstairs, three well-proportioned bedrooms are found off the central landing, each thoughtfully designed, alongside a beautifully updated family bathroom.
Outside, the grounds are nothing short of exceptional. From the expansive paddocks to the established equestrian facilities, this outdoor space opens up a world of possibilities — ideal for those with horses, livestock, or simply a desire for open land.
In all, this is a highly unique home that perfectly balances modern living with rural tranquillity, all within easy reach of Norwich. A rare opportunity, and one that truly needs to be experienced in person, a real must-see!
*Agents note - please see below measurements for all outbuildings
Building one - 3.7m x 7.4m Currently used as a double stable block
Building two - 2.4m x 4.8m Currently used as a single stable/ field shelter
Building three - 4.3m x 7m Currently used as a hay barn
Building four - 5m x 5m Currently used as a secure storage
Building five - 2.5m x 3, Currently used as a secure tack room
Building six - 1.8m x 3.1m Currently used as a feed store
Tenure - Freehold
Council Tax Band - B
Local Authority - South Norfolk Council
We have been advised that the property is connected to mains water, electricity and gas.
Winkworth wishes to inform prospective buyers and tenants that these particulars are a guide and act as information only. All our details are given in good faith and believed to be correct at the time of printing but they don’t form part of an offer or contract. No Winkworth employee has authority to make or give any representation or warranty in relation to this property. All fixtures and fittings, whether fitted or not are deemed removable by the vendor unless stated otherwise and room sizes are measured between internal wall surfaces, including furnishings. The services, systems and appliances have not been tested, and no guarantee as to their operability or efficiency can be given.
Marketed by
Winkworth Eaton
Properties for sale in EatonArrange a Viewing
Fill in the form below to arrange your property viewing.
Mortgage Calculator
Fill in the details below to estimate your monthly repayments:
Approximate monthly repayment:
For more information, please contact Winkworth's mortgage partner, Trinity Financial, on +44 (0)20 7267 9399 and speak to the Trinity team.
Stamp Duty Calculator
Fill in the details below to estimate your stamp duty
The above calculator above is for general interest only and should not be relied upon
Meet the Team
Our knowledgeable, friendly team are on hand to help whether you're buying, selling or renting. While we favour the local approach, by working closely with our London and national network alongside dedicated Corporate Services, marketing and PR departments, we give our clients an unparalleled advantage, matching homes with buyers and tenants throughout London and the UK.
See all team members