Skip to main content

MyWinkworth

Sold

Picture No. 01
Picture No. 02
Picture No. 03
6/14

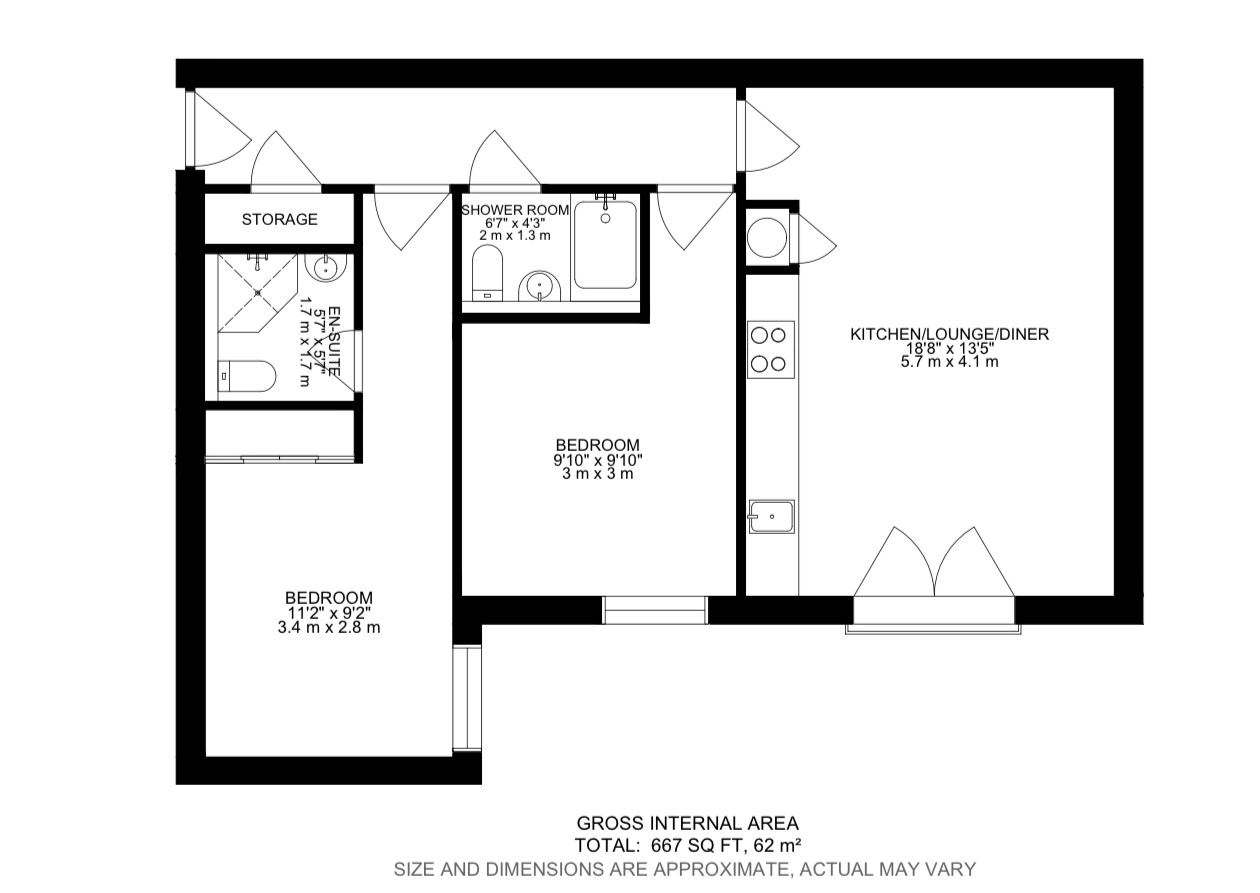
Wimborne Road East, Ferndown, BH22

2 bedroom flat/apartment in Ferndown

Guide Price £275,000 Share of Freehold

  • Bedrooms 2
  • Bathrooms 2
  • Reception rooms 1
  • Floorplan
6/14

PICTURES AND VIDEOS

KEY FEATURES

  • Brand New First Floor Apartment
  • Completion Due May 2023
  • Two Bedrooms
  • Two Bathrooms
  • 10 Year NHBC Warranty
  • Communal Outside Space
  • Allocated Parking
  • Pets Allowed
  • Excellent Buy To Let
  • Share Of Freehold

KEY INFORMATION

  • Tenure: Share of Freehold

Description

**LAST FEW DAYS TO CHOOSE INTERNAL KITCHEN, FLOORING, CARPET SELECTIONS**

This brand new two bedroom, two bathroom first floor apartment features a juliette balcony, allocated parking and a share of the freehold. One of 9 luxury apartments, enjoying an enviable position close to Ferndown town centre with it's vast selection of shops, leisure facilities, cafes and restaurants all within walking distance. These apartments would make a great investment, first time purchase or downsize and are also perfect for those looking for a second home close to the coast.



Winkworth is pleased to offer this luxury, small development, constructed by highly regarded, family run local developers Rivendale developments, just a short distance to The New Forest and twenty minutes from award winning sandy beaches.

The kitchens will benefit from a Bosch oven & induction hob together with luxury flooring and stainless steel sinks with mixer taps and the bathrooms will boast Hansgrohe shower heads, Fairford baths and chrome heated towel rails.

Reservations are now being taken for these stylish apartments that will also benefit from a 10 year NHBC warranty and permission to have pets. They will be immaculately finished and ready to welcome you home from May 2023. Contact Winkworth Ferndown on 01202 434 365 for more information on the remaining available apartments.

Location

Ferndown has good road access and is close to the main A31 between Ringwood and Wimborne making it easy to explore the wider area. There are bus routes along the Wimborne Road giving you easy access to Bournemouth, Poole and Wimborne all of which have an excellent range of shops, bars, restaurants and leisure facilities including Ferndown championship Golf Club, which is less than five minutes away. The nearest railway station is Branksome (7 miles) and is on the South West main line to London Waterloo and for trips further afield Bournemouth International Airport is just 4 miles away.
Introduction text for the mortgage calculator

Mortgage Calculator

Fill in the details below to estimate your monthly repayments:

Approximate monthly repayment:

For more information, please contact Winkworth's mortgage partner, Trinity Financial, on +44 (0)20 7267 9399 and speak to the Trinity team.

Stamp Duty Calculator

Fill in the details below to estimate your stamp duty

The above calculator above is for general interest only and should not be relied upon

6/14
Picture No. 01
Picture No. 02
Picture No. 03

Meet the Team

As one of the most experienced teams in Ferndown our recently refurbished office is found in the heart of Ferndown. Please come and talk to us about your property requirements, and get to know the team from the Winkworth Estate Agents in Ferndown.

See all team members

Got a question about this property?

This site is protected by reCAPTCHA and the Google Privacy Policy and Terms of Service apply.

More Properties like this

Golf Links Road, Ferndown, Dorset, BH22

Guide Price £590,000 Share of Freehold

Golf Links Road, Ferndown, BH22

Guide Price £475,000 Share of Freehold

Golf Links Road, Ferndown, Dorset, BH22

Guide Price £475,000 Leasehold

Under Offer

Golf Links Road, Ferndown, Dorset, BH22

Guide Price £365,000 Share of Freehold

Golf Links Road, Ferndown, Dorset, BH22

Guide Price £350,000 Share of Freehold

Under Offer

Wimborne Road East, Ferndown, Dorset, BH22

Guide Price £325,000 Share of Freehold

Online Valuations Aren’t Worth The Paper They’re Printed On.

When online valuations don’t give you the whole picture - try Winkworth’s expert service. Get a free property appraisal. Accurate valuations from our local property experts. No obligation to list with Winkworth. Choose a time convenient for you with our online booking system.

Fill in your details and someone will be in touch soon:

You have provisionally booked a valuation for . Please confirm your details below

We don't have date info available for this property, but if you fill in your details below, someone will be in touch to arrange a date soon

Please fill in the required fields below marked with *

This site is protected by reCAPTCHA and the Google Privacy Policy and Terms of Service apply.