Skip to main content

MyWinkworth

Sold

Picture No. 11
Picture No. 05
Picture No. 04
Picture No. 08
Picture No. 07
Picture No. 02
Picture No. 03
Picture No. 09
Picture No. 06
Picture No. 10
6/14

Wilberforce Road, London, N4

2 bedroom flat/apartment in London

£575,000 Share of Freehold

  • Bedrooms 2
  • Bathrooms 1
  • Reception rooms 1
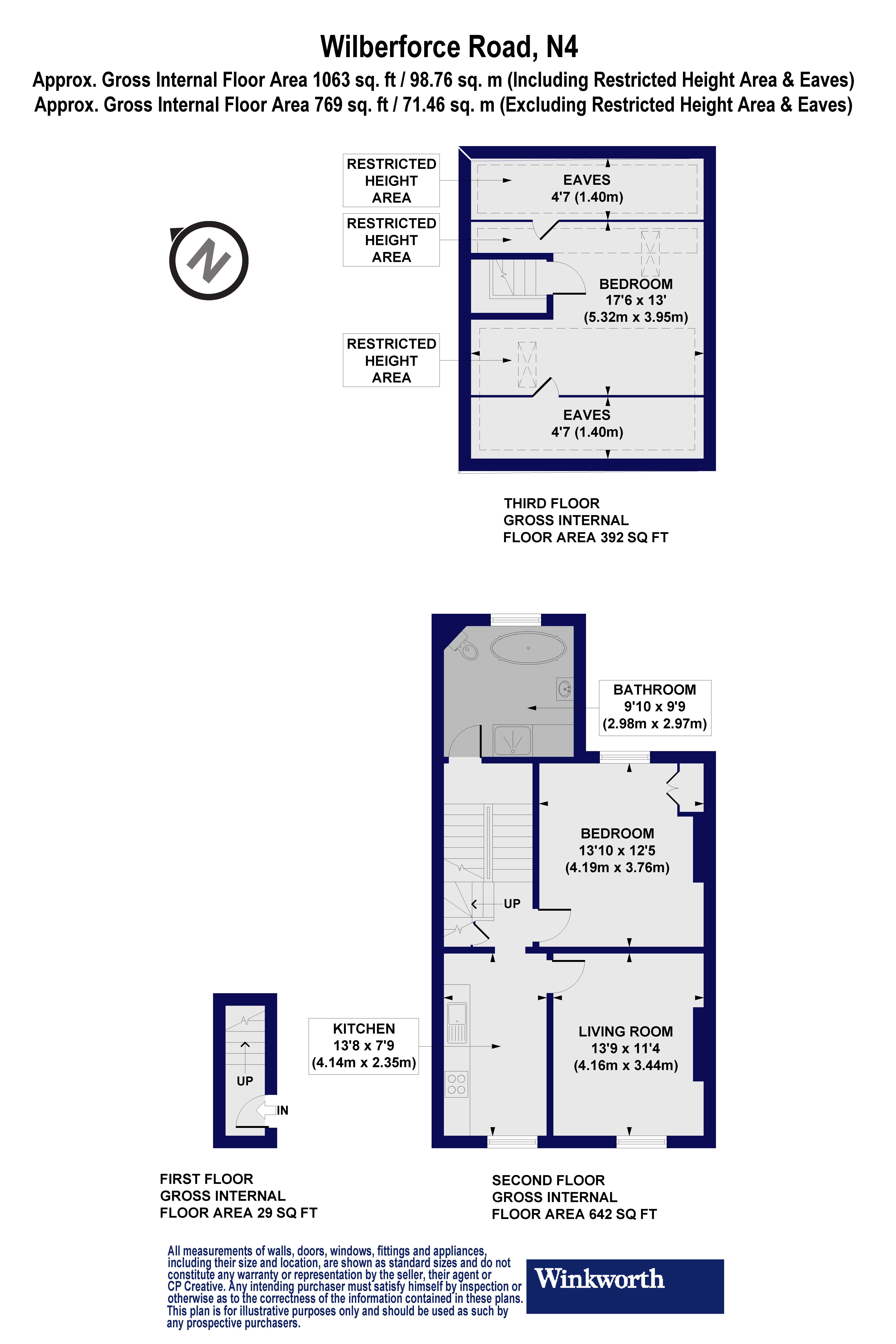
  • Floorplan

PICTURES AND VIDEOS

KEY INFORMATION

  • Tenure: Share of Freehold
  • Lease Length: 948 yrs left
  • Ground rent: £50.00 per annum
  • Council Tax Band: C
  • Local Authority: London Borough Of Hackney

Description

A sizeable, two double bedroom, split level period conversion on one of N4’s most popular roads. Standing at a very impressive 1,063 sqft, the property offers a wealth of character and natural light from large, west to east facing windows throughout. The bright reception room benefits from original flooring and a feature fireplace, while the spacious kitchen can be found adjacent with plentiful worktop and cupboard space. Both bedrooms are genuine doubles and are positioned on separate levels, while the property is completed with a modern, family bathroom.
The ever-popular Wilberforce Road allows for easy access to Finsbury Park station as well as the green spaces of both Finsbury Park and Clissold Park. A variety of shops, cafes and eateries are located on Blackstock Road and nearby Highbury Park. Stoke Newington Church Street is also a short walk away through Clissold Park. The nearest public transport link is Finsbury Park Station (Victoria, Piccadilly, and National Rail Lines) and Arsenal Underground Station (Piccadilly Line), whilst there are numerous bus routes taking you into Angel, the City, and the West End.
Introduction text for the mortgage calculator

Mortgage Calculator

Fill in the details below to estimate your monthly repayments:

Approximate monthly repayment:

For more information, please contact Winkworth's mortgage partner, Trinity Financial, on +44 (0)20 7267 9399 and speak to the Trinity team.

Stamp Duty Calculator

Fill in the details below to estimate your stamp duty

The above calculator above is for general interest only and should not be relied upon

6/14
Picture No. 11
Picture No. 05
Picture No. 04
Picture No. 08
Picture No. 07
Picture No. 02
Picture No. 03
Picture No. 09
Picture No. 06
Picture No. 10

Meet the Team

From our office on Highbury Park, we pride ourselves on our unrivalled local knowledge. Many of the team here at Winkworth Highbury Estate Agents live locally and whether it's sales, lettings or property management, we're always striving to provide an unparalleled service and tailor it to your exacting needs.

See all team members

Got a question about this property?

This site is protected by reCAPTCHA and the Google Privacy Policy and Terms of Service apply.

More Properties like this

Highbury Stadium Square, London, N5

Offers in excess of £1,400,000 Leasehold

Under Offer

Petherton Road, London, N5

£1,000,000 Leasehold

Under Offer

Finsbury Park Road, London, N4

£950,000 Leasehold

Under Offer

Highbury Hill, London, N5

£950,000 Share of Freehold

Highbury Park, London, N5

£900,000 Share of Freehold

Under Offer

Aberdeen Road, London, N5

Offers in excess of £895,000 Share of Freehold

Online Valuations Aren’t Worth The Paper They’re Printed On.

When online valuations don’t give you the whole picture - try Winkworth’s expert service. Get a free property appraisal. Accurate valuations from our local property experts. No obligation to list with Winkworth. Choose a time convenient for you with our online booking system.

Fill in your details and someone will be in touch soon:

You have provisionally booked a valuation for . Please confirm your details below

We don't have date info available for this property, but if you fill in your details below, someone will be in touch to arrange a date soon

Please fill in the required fields below marked with *

This site is protected by reCAPTCHA and the Google Privacy Policy and Terms of Service apply.