Skip to main content

MyWinkworth

Sold

Picture No. 01
Picture No. 03
Picture No. 02
Picture No. 07
Picture No. 06
Picture No. 09
Picture No. 04
Picture No. 08
Picture No. 10
Picture No. 11
Picture No. 12
6/14

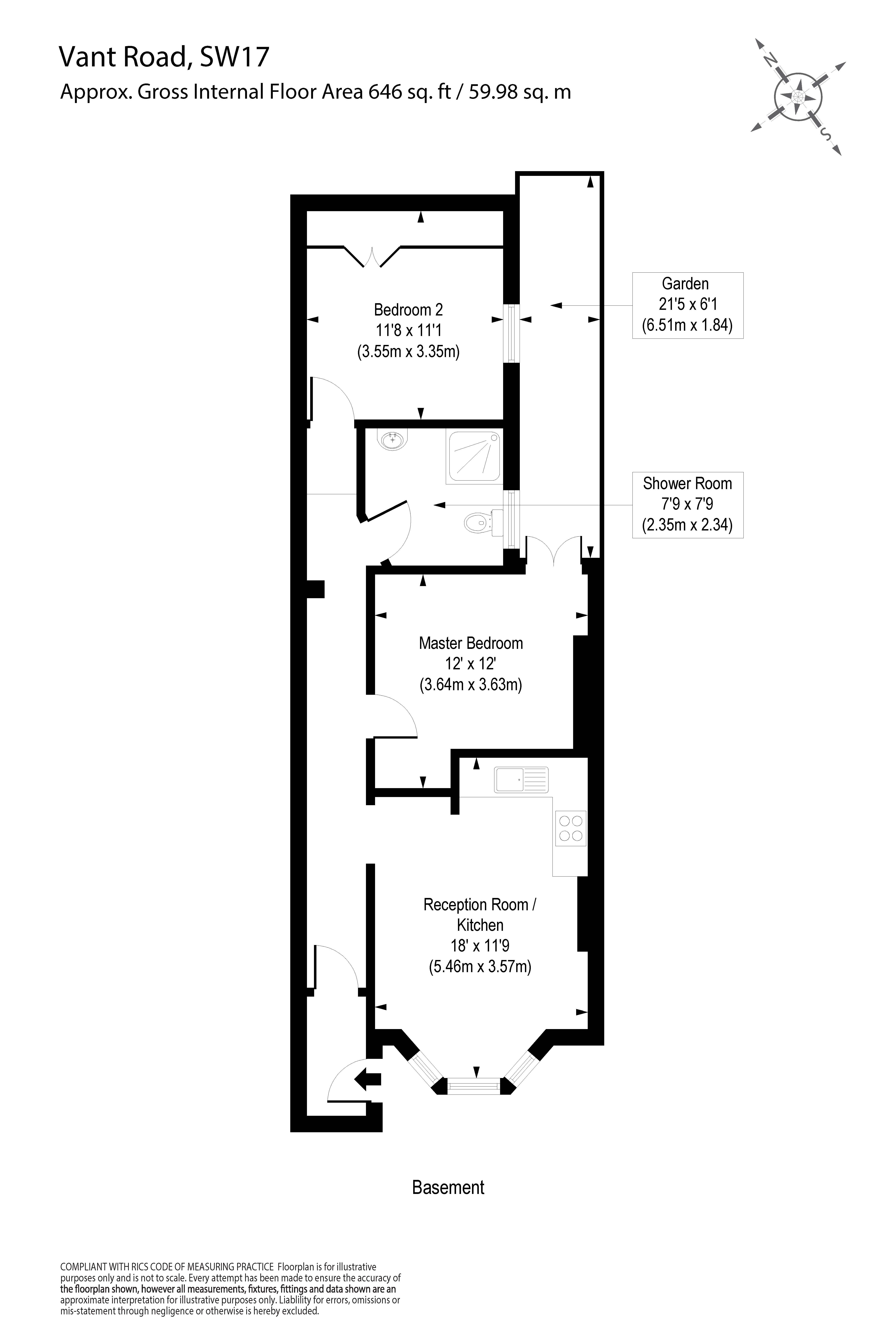
Vant Road, London, SW17

2 bedroom flat/apartment in London

Offers in excess of £425,000 Leasehold

  • Bedrooms 2
  • Bathrooms 1
  • Reception rooms 1
  • Floorplan

PICTURES AND VIDEOS

KEY INFORMATION

  • Tenure: Leasehold

Description

A charming ground floor two bedroom conversion, conveniently located for Tooting Broadway. The flat benefits from a beautiful front open plan kitchen/reception room with bay window and a breakfast bar, two generous double bedroom, one with built in wardrobes and one with French doors accessing the private garden. To the rear of the flat is a contemporary bathroom.

Vant Road is ideally positioned for access in and out of Central London, as well as providing easy access to both Tooting underground (Northern Line) and Tooting overground stations. The shopping, dining and entertainment facilities of Tooting high street are within a short distance including the famous Tooting Markets. The properties location further benefits from being within a short walk of Tooting Bec Common.
Introduction text for the mortgage calculator

Mortgage Calculator

Fill in the details below to estimate your monthly repayments:

Approximate monthly repayment:

For more information, please contact Winkworth's mortgage partner, Trinity Financial, on +44 (0)20 7267 9399 and speak to the Trinity team.

Stamp Duty Calculator

Fill in the details below to estimate your stamp duty

The above calculator above is for general interest only and should not be relied upon

6/14
Picture No. 01
Picture No. 03
Picture No. 02
Picture No. 07
Picture No. 06
Picture No. 09
Picture No. 04
Picture No. 08
Picture No. 10
Picture No. 11
Picture No. 12

Meet the Team

Our team at Winkworth Tooting Estate Agents are here to support and advise our customers when they need it most. We understand that buying, selling, letting or renting can be daunting and often emotionally meaningful. We are there, when it matters, to make the journey as stress-free as possible.

See all team members

Got a question about this property?

This site is protected by reCAPTCHA and the Google Privacy Policy and Terms of Service apply.

More Properties like this

Garratt Lane, Tooting, London, SW17

£795,000 Leasehold

Under Offer

Wheatlands Road, London, SW17

£725,000 Share of Freehold

Garratt Lane, Tooting, London, SW17

Offers in excess of £699,950 Leasehold

Garratt Terrace, London, SW17

Offers in excess of £655,000 Leasehold

Boundaries Road, London, SW12

£650,000 Leasehold

Garratt Lane, Tooting, London, SW17

Offers in excess of £650,000 Leasehold

Online Valuations Aren’t Worth The Paper They’re Printed On.

When online valuations don’t give you the whole picture - try Winkworth’s expert service. Get a free property appraisal. Accurate valuations from our local property experts. No obligation to list with Winkworth. Choose a time convenient for you with our online booking system.

Fill in your details and someone will be in touch soon:

You have provisionally booked a valuation for . Please confirm your details below

We don't have date info available for this property, but if you fill in your details below, someone will be in touch to arrange a date soon

Please fill in the required fields below marked with *

This site is protected by reCAPTCHA and the Google Privacy Policy and Terms of Service apply.