Skip to main content

MyWinkworth

Sold

Picture No. 03
Picture No. 05
Picture No. 11
Picture No. 07
Picture No. 01
Picture No. 12
Picture No. 02
Picture No. 10
Picture No. 08
Picture No. 09
Picture No. 04
Picture No. 06
6/14

Undine Street, London, SW17

4 bedroom house in London

Guide Price £1,025,000 Freehold

  • Bedrooms 4
  • Bathrooms 2
  • Reception rooms 2
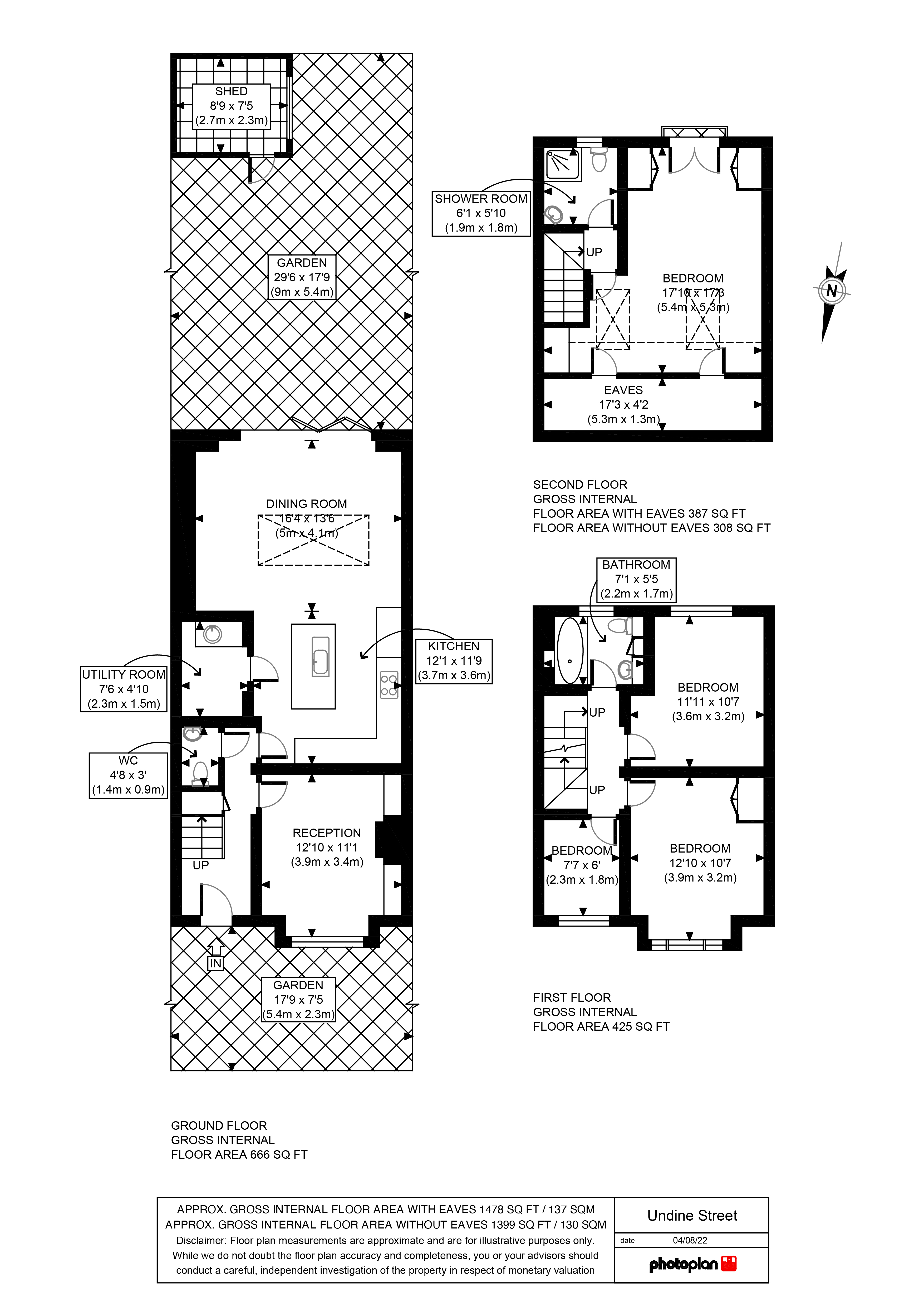
  • Floorplan

PICTURES AND VIDEOS

KEY INFORMATION

  • Tenure: Freehold

Description

A charming extended family house situated on a sought after residential road. The current owners have sympathetically renovated this beautiful period house to a high standard whilst retaining many original features. The property consists of a wide entrance hall which leads into the sitting room at the front of the house with a feature cast iron fireplace. The rear of the house has been extended to create a wonderful open plan kitchen/dining room at the rear with full width bi-folding doors and the bespoke kitchen at the focal point of the house boasting plentiful storage and integral appliances. There is a separate utility room off the kitchen along with a downstairs WC off the hallway. The first floor offers a beautiful family bathroom, a gorgeous large double bedroom at the front, a further double to the rear (both boasting built in wardrobes) and a single bedroom currently used as a home office. The loft has been fully extended and offers a generous double bedroom with built in wardrobes, an ensuite shower room and access to ample storage in the remainder of the eaves. Externally, the rear south facing garden has been decked to create a stylish yet welcoming space to entertain and enjoy. A large shed has been added to the back of the garden this has power and light.

Undine Street is ideally positioned for access in and out of Central London, as well as providing easy access to both Tooting underground (Northern Line) and Tooting overground stations. The shopping, dining and entertainment facilities of Tooting high street are within a short distance including the famous Tooting Markets. The properties’ location further benefits from being within a short walk of Tooting Bec Common and ideally located within the catchment area of several popular and highly regarded schools and nurseries. The house is futureproofed and would make a fantastic family home for decades to come.

Tenure: Freehold
Council tax: Wandsworth band D
Introduction text for the mortgage calculator

Mortgage Calculator

Fill in the details below to estimate your monthly repayments:

Approximate monthly repayment:

For more information, please contact Winkworth's mortgage partner, Trinity Financial, on +44 (0)20 7267 9399 and speak to the Trinity team.

Stamp Duty Calculator

Fill in the details below to estimate your stamp duty

The above calculator above is for general interest only and should not be relied upon

6/14
Picture No. 03
Picture No. 05
Picture No. 11
Picture No. 07
Picture No. 01
Picture No. 12
Picture No. 02
Picture No. 10
Picture No. 08
Picture No. 09
Picture No. 04
Picture No. 06

Meet the Team

Our team at Winkworth Tooting Estate Agents are here to support and advise our customers when they need it most. We understand that buying, selling, letting or renting can be daunting and often emotionally meaningful. We are there, when it matters, to make the journey as stress-free as possible.

See all team members

Got a question about this property?

This site is protected by reCAPTCHA and the Google Privacy Policy and Terms of Service apply.

More Properties like this

Atkinson Close, London, SW20

£4,000,000 Freehold

Under Offer

Gracedale Road, London, SW16

£1,250,000 Freehold

Under Offer

Graveney Road, London, SW17

£1,050,000

Under Offer

Noyna Road, London, SW17

£1,000,000 Freehold

Under Offer

Fairlight Road, London, SW17

£940,000 Freehold

Under Offer

Hillbrook Road, London, SW17

£925,000 Freehold

Online Valuations Aren’t Worth The Paper They’re Printed On.

When online valuations don’t give you the whole picture - try Winkworth’s expert service. Get a free property appraisal. Accurate valuations from our local property experts. No obligation to list with Winkworth. Choose a time convenient for you with our online booking system.

Fill in your details and someone will be in touch soon:

You have provisionally booked a valuation for . Please confirm your details below

We don't have date info available for this property, but if you fill in your details below, someone will be in touch to arrange a date soon

Please fill in the required fields below marked with *

This site is protected by reCAPTCHA and the Google Privacy Policy and Terms of Service apply.