Skip to main content

MyWinkworth

Sold

Picture No. 08
Picture No. 01
Picture No. 02
Picture No. 04
Picture No. 05
Picture No. 09
Picture No. 06
Picture No. 03
6/14

Tredegar Road, Emmer Green, Reading, RG4

Land in Emmer Green

Offers in excess of £375,000 Freehold

  • Floorplan

PICTURES AND VIDEOS

KEY FEATURES

  • Building Plot with Planning Approval
  • Planning Application Number 181176
  • Planning for a 4 Bedroom Detached House
  • Popular Location
  • Section 106 Contribution Approx. £30,000
  • Community Infrastructure Levy Approx. £38,000
  • GDV of Approximately £1m

KEY INFORMATION

  • Tenure: Freehold

Description

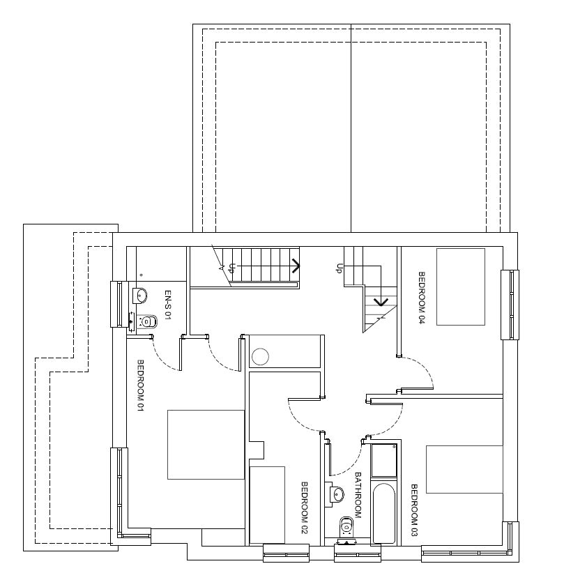
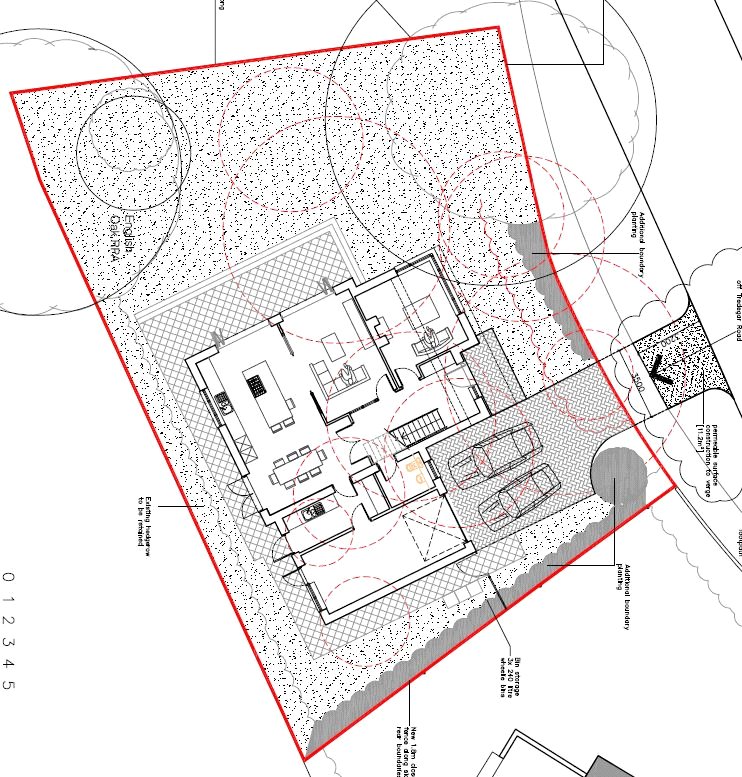
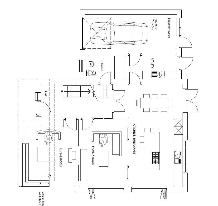
Backing on to the Highdown School playing fields and set in an elevated position overlooking the fields of bugs bottom is this development plot with planning approval for a detached family home. Planning has been approved to build a spacious house of approximately 2800 sq. ft. (260 sq. mt.) in this popular location. Once built the house will comprise of four first floor bedroom, the master with an en-suite and a family bathroom. On the ground floor there will be a kitchen/diner, family room, living room, utility room and wc. There will be off road driveway parking, a garage and gardens. In our opinion, when finished and completed to a good specification the Gross Development Value (GDV) of the house will be in the region of £1m. There are CIL (Community Infrastructure Levy) and Section 106 contributions payable to Reading Borough Council in the region of £70,000 some of which will not be payable for a self-builder (Buyers are requested to make their own enquiries with Reading Borough Council). This well located site is a perfect self-build or would suit a builder/developer looking for their next project.

Location

Tredegar Road is located of Surley Row on the northern edge of Caversham on the South Oxfordshire border. Reading town centre is easily accessible as is the centre of Caversham with its great selection of bars, restaurants, shops including a large Waitrose and the banks of the River Thames. Reading mainline train station with its fast connections to London (25 minutes to London Paddington) is close by and the number and can be easily reached via the number 24 bus. The area is serviced by two excellent primary schools in The Hill and Emmer Green Primary (recently rated outstanding by Ofsted) and Highdown school and sixth forms is the local secondary comprehensive. There are some excellent public schools within close reach including, Queen Anne's Caversham, Shiplake College and The Oratory. Abbey Rugby club with its 5 tiers of men's rugby and women's and several junior teams is also located in Emmer Green.
Introduction text for the mortgage calculator

Mortgage Calculator

Fill in the details below to estimate your monthly repayments:

Approximate monthly repayment:

For more information, please contact Winkworth's mortgage partner, Trinity Financial, on +44 (0)20 7267 9399 and speak to the Trinity team.

Stamp Duty Calculator

Fill in the details below to estimate your stamp duty

The above calculator above is for general interest only and should not be relied upon

6/14
Picture No. 08
Picture No. 01
Picture No. 02
Picture No. 04
Picture No. 05
Picture No. 09
Picture No. 06
Picture No. 03

Meet the Team

Located just 36 miles from Central London and 24 miles from Oxford, Reading's geographical placement is perfect for living and working or commuting. Michael and James are established professionals who have years of combined experience and local knowledge and can offer you a friendly approach and unparalleled service.

See all team members

Got a question about this property?

This site is protected by reCAPTCHA and the Google Privacy Policy and Terms of Service apply.

More Properties like this

Old Bath Road, Sonning, Reading, Berkshire, RG4

Offers in excess of £1,250,000 Freehold

Virtual Tour

Hemdean Road, Caversham, Reading, Berkshire, RG4

Guide Price £350,000 Freehold

Online Valuations Aren’t Worth The Paper They’re Printed On.

When online valuations don’t give you the whole picture - try Winkworth’s expert service. Get a free property appraisal. Accurate valuations from our local property experts. No obligation to list with Winkworth. Choose a time convenient for you with our online booking system.

Fill in your details and someone will be in touch soon:

You have provisionally booked a valuation for . Please confirm your details below

We don't have date info available for this property, but if you fill in your details below, someone will be in touch to arrange a date soon

Please fill in the required fields below marked with *

This site is protected by reCAPTCHA and the Google Privacy Policy and Terms of Service apply.