Skip to main content

MyWinkworth

Sold

Picture No. 02
Picture No. 10
Picture No. 08
Picture No. 13
Picture No. 01
Picture No. 12
Picture No. 05
Picture No. 06
Picture No. 03
Picture No. 07
Picture No. 09
Picture No. 11
Picture No. 16
Picture No. 17
6/14

The Roundway, London, N17

2 bedroom house in London

£480,000 Freehold

  • Bedrooms 2
  • Bathrooms 1
  • Reception rooms 1
  • Floorplan

PICTURES AND VIDEOS

KEY FEATURES

  • Two Bedrooms
  • First Floor Bathroom
  • Private South Facing Garden
  • Close To Transport Links, Parks and Shops / Restaurants

KEY INFORMATION

  • Tenure: Freehold

Description

This two bedroom house is situated within close proximity to transport links at Turnpike Lane and Wood Green.

Sole Agent

This well maintained home offers ample natural light and a superb living space making it a perfect purchase first time buyers or those looking to upsize from a flat to a freehold house.

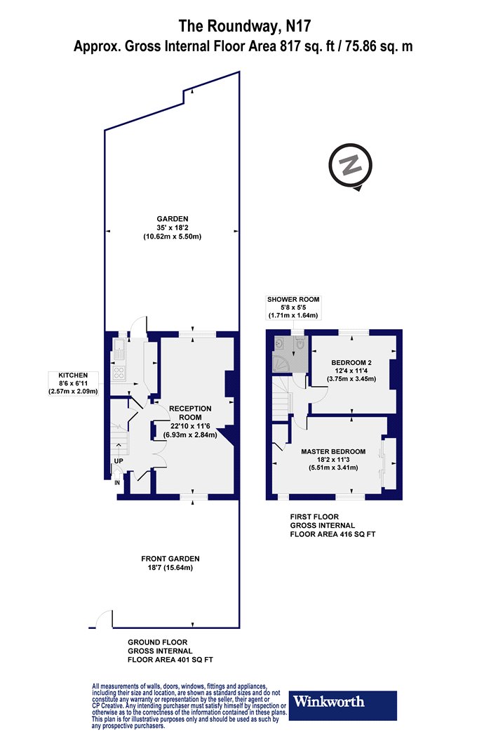
The accommodation is arranged over two floors and occupies 817 Sq. Ft of living space.
On the ground floor there is a good size open plan reception room. The through lounge has wooden floors and feature fireplace, there is also a seperate fitted kitchen.

The garden is mainly lawn and well-proportioned and is accessed by via the kitchen.

The first floor consists of two bedrooms and a generously sized family bathroom.

Nearest tube stations are Turnpike Lane and Wood Green on the Piccadilly Line and Tottenham Hale on the Victoria Line (Zone 3). White Hart Lane overground is also a short walk away.

Please contact the sales team at Winkworth Harringay office to arrange an appointment to view 020 8800 5151 - [email protected]

Winkworth.co.uk

Your local independently owned property agency with a network of 62 London offices.

Est 1835
Introduction text for the mortgage calculator

Mortgage Calculator

Fill in the details below to estimate your monthly repayments:

Approximate monthly repayment:

For more information, please contact Winkworth's mortgage partner, Trinity Financial, on +44 (0)20 7267 9399 and speak to the Trinity team.

Stamp Duty Calculator

Fill in the details below to estimate your stamp duty

The above calculator above is for general interest only and should not be relied upon

6/14
Picture No. 02
Picture No. 10
Picture No. 08
Picture No. 13
Picture No. 01
Picture No. 12
Picture No. 05
Picture No. 06
Picture No. 03
Picture No. 07
Picture No. 09
Picture No. 11
Picture No. 16
Picture No. 17

Meet the Team

At Winkworth Harringay Estate Agents, we have a comprehensive team of knowledgeable and personable property experts who are excited about the local area. So whether you're buying, selling, renting or letting or simply need some advice, pop into our office on Green Lanes for the experience and the local knowledge you need.

See all team members

Got a question about this property?

This site is protected by reCAPTCHA and the Google Privacy Policy and Terms of Service apply.

More Properties like this

New Instruction

Warham Road, London, N4

Guide Price £1,275,000 Freehold

Under Offer

Atterbury Road, Finsbury Park, N4

Guide Price £1,275,000 Freehold

Under Offer

Sydney Road, London, N8

Guide Price £1,150,000 Freehold

Jansons Road, London, N15

£1,100,000 Freehold

Under Offer

Hewitt Road, London, N8

Guide Price £1,100,000 Freehold

Under Offer

Lausanne Road, London, N8

Guide Price £1,050,000 Freehold

Online Valuations Aren’t Worth The Paper They’re Printed On.

When online valuations don’t give you the whole picture - try Winkworth’s expert service. Get a free property appraisal. Accurate valuations from our local property experts. No obligation to list with Winkworth. Choose a time convenient for you with our online booking system.

Fill in your details and someone will be in touch soon:

You have provisionally booked a valuation for . Please confirm your details below

We don't have date info available for this property, but if you fill in your details below, someone will be in touch to arrange a date soon

Please fill in the required fields below marked with *

This site is protected by reCAPTCHA and the Google Privacy Policy and Terms of Service apply.