Skip to main content

MyWinkworth

Sold

Picture No. 15
Picture No. 11
Picture No. 16
Picture No. 10
Picture No. 09
Picture No. 05
Picture No. 12
Picture No. 07
Picture No. 03
Picture No. 08
Picture No. 06
Picture No. 02
Picture No. 01
Picture No. 17
Picture No. 04
6/14

The Avenue, Beckenham, BR3

1 bedroom flat/apartment in Beckenham

£385,000 Leasehold

  • Bedrooms 1
  • Bathrooms 2
  • Reception rooms 1
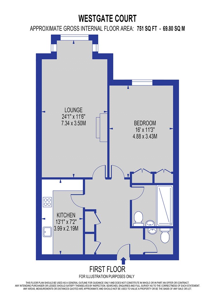
  • Floorplan

PICTURES AND VIDEOS

KEY FEATURES

  • First Floor
  • Very large apartment
  • Gated underground parking
  • Lift access
  • Immaculate condition
  • Leasehold

KEY INFORMATION

  • Tenure: Leasehold
  • Lease Length: 96 yrs left

Description

Winkworth are delighted to offer to the market this large one-bedroom apartment located in one of Beckenham’s most prestigious developments.

Located on the first floor, this luxury apartment comprises of large and bright entrance hall with storage cupboard, newly fitted and modern bathroom with additional W.C., large and modern kitchen with integrated appliances, very large lounge with space for both a living area and dining area, large bedroom with built-in wardrobes.

The block itself is maintained to a high standard, and features gated underground parking, beautiful communal gardens, lift access, and video-entry system.

The property is located on a beautiful tree-lined road, which is a short walk away from Beckenham Junction, Ravensbourne, and New Beckenham stations which offer access into London Victoria, London Bridge, Cannon Street, and Blackfriars. Beckenham High Street with its independent cafes, bars, and restaurants is within easy reach, as well as the stunning Beckenham Place Park.

This is a wonderful opportunity to acquire one of Beckenham’s finest one-bedroom apartments, so viewing is recommend at your earliest convenience.
Introduction text for the mortgage calculator

Mortgage Calculator

Fill in the details below to estimate your monthly repayments:

Approximate monthly repayment:

For more information, please contact Winkworth's mortgage partner, Trinity Financial, on +44 (0)20 7267 9399 and speak to the Trinity team.

Stamp Duty Calculator

Fill in the details below to estimate your stamp duty

The above calculator above is for general interest only and should not be relied upon

6/14
Picture No. 15
Picture No. 11
Picture No. 16
Picture No. 10
Picture No. 09
Picture No. 05
Picture No. 12
Picture No. 07
Picture No. 03
Picture No. 08
Picture No. 06
Picture No. 02
Picture No. 01
Picture No. 17
Picture No. 04

Meet the Team

Not only is Winkworth Beckenham Estate Agents situated in the heart of Beckenham High Street, our team are at the heart of the Beckenham community too. All of us have lived and worked in the area for years. That means we have extensive knowledge of Beckenham and the surrounding area including Bromley, Park Langley, Shortlands and West Wickham. So whether you're buying, selling, letting, renting or simply after advice, we're keen to help.

See all team members

Got a question about this property?

This site is protected by reCAPTCHA and the Google Privacy Policy and Terms of Service apply.

More Properties like this

Fifty Burnhill Road, Beckenham, BR3

£525,000 Leasehold

Under Offer

Parkside, Court Downs Road, Beckenham, BR3

Guide Price £500,000 Share of Freehold

Fifty Burnhill Road, Beckenham, BR3

£465,000 Leasehold

Under Offer

Beckenham Road, Beckenham, BR3

Guide Price £450,000 Leasehold

Under Offer

Hayne Road, Beckenham, BR3

Offers in excess of £450,000 Leasehold

Kemerton Road, Beckenham, BR3

Offers in excess of £450,000 Share of Freehold

Online Valuations Aren’t Worth The Paper They’re Printed On.

When online valuations don’t give you the whole picture - try Winkworth’s expert service. Get a free property appraisal. Accurate valuations from our local property experts. No obligation to list with Winkworth. Choose a time convenient for you with our online booking system.

Fill in your details and someone will be in touch soon:

You have provisionally booked a valuation for . Please confirm your details below

We don't have date info available for this property, but if you fill in your details below, someone will be in touch to arrange a date soon

Please fill in the required fields below marked with *

This site is protected by reCAPTCHA and the Google Privacy Policy and Terms of Service apply.