Skip to main content

MyWinkworth

Sold

Reception
Reception
Reception
Kitchen
Bedroom
Bedroom
Bedroom
Bathroom
Exterior
6/14

Stowe Road, London, W12

2 bedroom flat/apartment in London

£550,000 Share of Freehold

  • Bedrooms 2
  • Bathrooms 2
  • Reception rooms 1
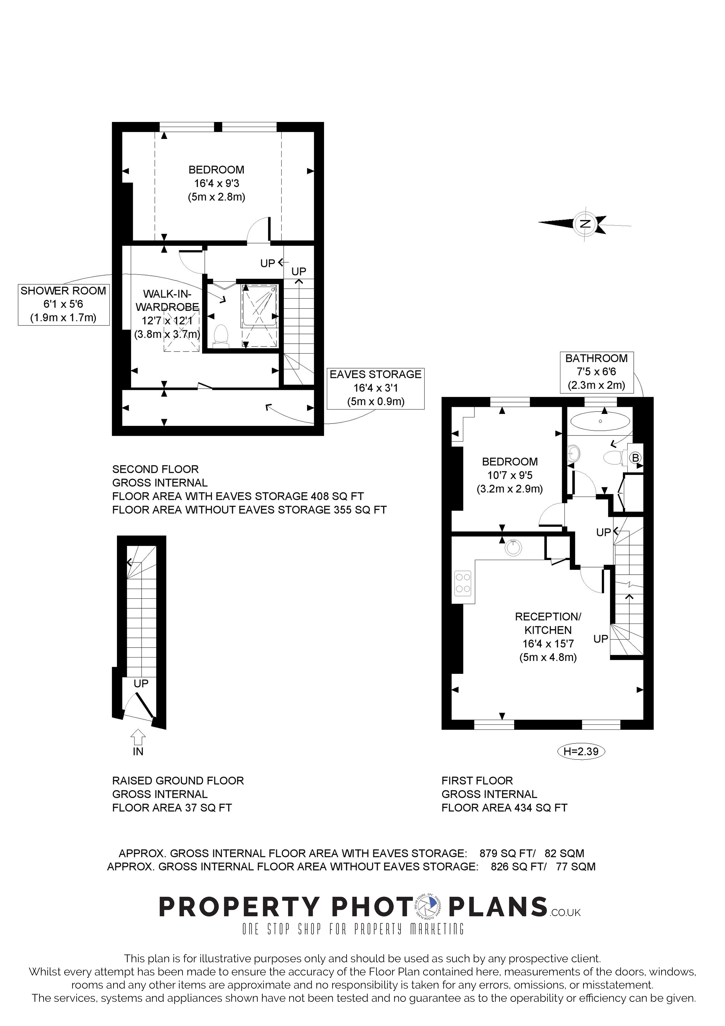
  • Floorplan

PICTURES AND VIDEOS

KEY FEATURES

  • Three Bedrooms
  • Open Plan Kitchen/Reception
  • Two Bathrooms
  • No Onward Chain
  • 782 SQ FT / 73 SQM
  • EPC Band Rating: C
  • Council Tax band: C

KEY INFORMATION

  • Tenure: Share of Freehold
  • Council Tax Band: C
  • Local Authority: Hammersmith and Fulham

Description

A fantastic light drenched, split level three bedroom apartment on this very popular street

Arranged over the first floor and extended into the loft this three bedroom apartment is awash with natural light. Cleverly designed to waste no space the flat feels bright and open. The property has its own front door and the accommodation comprises of three bedrooms, two bathrooms and a wonderful open plan kitchen/reception room.

Rooms and Accommodations

  • Two Double Bedrooms
  • Study/Single Bedroom
  • Open Plan Kitchen/Reception
  • No Onward Chain
  • Two Bathrooms

Location

Stowe Road is an attractive and popular residential road. All the amenities we are coming to take for granted from Shepherds Bush are within easy reach including the Westfield Shopping Complex, a large selection of restaurants and bars and extensive public transport facilities. Close to everything but far from the ordinary.
Introduction text for the mortgage calculator

Mortgage Calculator

Fill in the details below to estimate your monthly repayments:

Approximate monthly repayment:

For more information, please contact Winkworth's mortgage partner, Trinity Financial, on +44 (0)20 7267 9399 and speak to the Trinity team.

Stamp Duty Calculator

Fill in the details below to estimate your stamp duty

The above calculator above is for general interest only and should not be relied upon

6/14
Reception
Reception
Reception
Kitchen
Bedroom
Bedroom
Bedroom
Bathroom
Exterior

Meet the Team

At Winkworth Shepherds Bush Estate Agents, we pride ourselves on offering high standards and a personal service. As the longest serving agent in W12, we've been matching people with homes for over 30 years from our prominent position on Uxbridge Road. We love our area and between us, our close-knit team of 15 has over 120 years combined experience, so you'll be in safe hands.

See all team members

Got a question about this property?

This site is protected by reCAPTCHA and the Google Privacy Policy and Terms of Service apply.

More Properties like this

Devonport Road, London, W12

£925,000 Share of Freehold

Ellerslie Road, London, W12

£825,000 Share of Freehold

Under Offer

Davisville Road, London, W12

£825,000 Leasehold

New Instruction

Wood Crescent, London, W12

£800,000 Leasehold

Under Offer

Ellerslie Road, London, W12

£795,000 Share of Freehold

Under Offer

Loftus Road, London, W12

£750,000 Share of Freehold

Online Valuations Aren’t Worth The Paper They’re Printed On.

When online valuations don’t give you the whole picture - try Winkworth’s expert service. Get a free property appraisal. Accurate valuations from our local property experts. No obligation to list with Winkworth. Choose a time convenient for you with our online booking system.

Fill in your details and someone will be in touch soon:

You have provisionally booked a valuation for . Please confirm your details below

We don't have date info available for this property, but if you fill in your details below, someone will be in touch to arrange a date soon

Please fill in the required fields below marked with *

This site is protected by reCAPTCHA and the Google Privacy Policy and Terms of Service apply.