Skip to main content

MyWinkworth

Sold

Picture No. 07
Picture No. 13
Picture No. 02
Picture No. 15
Picture No. 10
Picture No. 09
Picture No. 11
Picture No. 06
Picture No. 05
Picture No. 03
Picture No. 08
Picture No. 12
6/14

Stapleton Road, London, SW17

3 bedroom maisonette in London

£885,000 Leasehold

  • Bedrooms 3
  • Bathrooms 2
  • Reception rooms 1
  • Floorplan

PICTURES AND VIDEOS

KEY INFORMATION

  • Tenure: Leasehold

Description

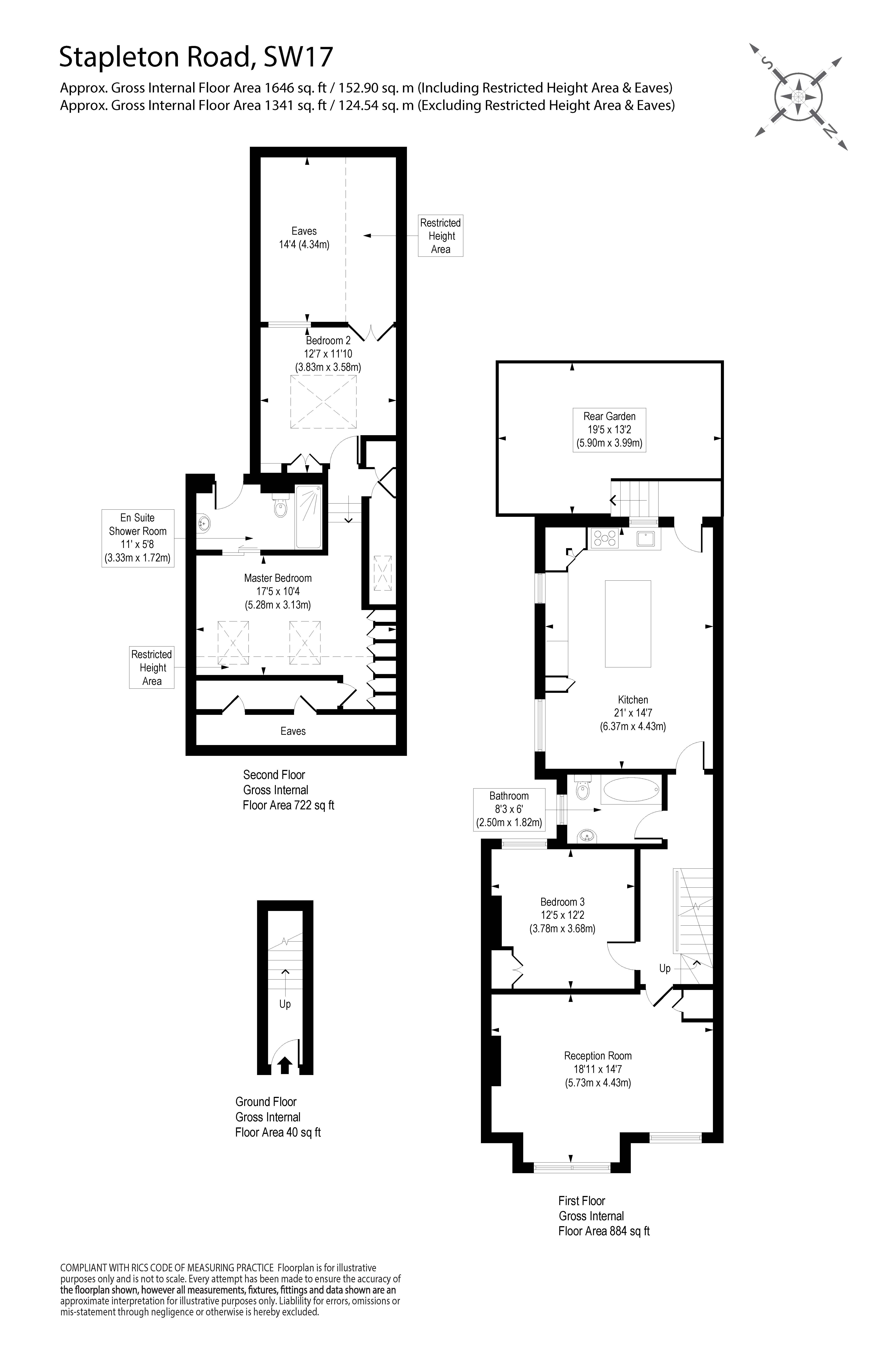
This immaculately presented three-bedroom flat measures approximately 1646 Sq. ft and occupies the first and second floor. The property boasts a wonderful feeling of light and space throughout and features its own private garden.

Upon entrance from the ground floor, a staircase leads up to a spacious hall and to the rear is an impressive open plan kitchen dining room. Filled with an abundance of natural light thanks to dual aspect sash windows, the kitchen itself has been tastefully finished, fitted with plenty of wall and base units and modern integrated appliances as well a stunning island. Offering plenty of space for a dining table making it perfect for entertaining as well as everyday family living. Through the kitchen, stairs lead down to a private landscaped garden, presenting a lovely tranquil patio space, perfect for alfresco dining. Across the front of the property is a wonderful reception room, featuring large double glazed sash windows and elegantly finished with plantation shutters, a period fireplace and lovely wooden flooring.

Completing the first floor is a large double bedroom with feature fireplace as well as a modern family bathroom.

The principal bedroom is located on the top floor, boasting built-in storage and a pretty Juliet balcony from the en-suite bathroom. An additional double bedroom can be found on this level. Further storage is available in the eaves.

This superb flat is located on Stapleton Road, a pretty and quiet residential road. The property is conveniently positioned with numerous transport links close by. Tooting Bec Underground station is a short walk away and offers Northern Line services into the City and West End. Overground services can be found from Balham Station to London Victoria or London Bridge via Clapham Junction. The green open spaces of Tooting Bec Common are close by as are the amenities of Balham High Road. There is also a selection of excellent private and state schools in the area.


Tenure: Leasehold 102 years remaining

Council Tax: Wandsworth council tax band D
Introduction text for the mortgage calculator

Mortgage Calculator

Fill in the details below to estimate your monthly repayments:

Approximate monthly repayment:

For more information, please contact Winkworth's mortgage partner, Trinity Financial, on +44 (0)20 7267 9399 and speak to the Trinity team.

Stamp Duty Calculator

Fill in the details below to estimate your stamp duty

The above calculator above is for general interest only and should not be relied upon

6/14
Picture No. 07
Picture No. 13
Picture No. 02
Picture No. 15
Picture No. 10
Picture No. 09
Picture No. 11
Picture No. 06
Picture No. 05
Picture No. 03
Picture No. 08
Picture No. 12

Meet the Team

Our team at Winkworth Tooting Estate Agents are here to support and advise our customers when they need it most. We understand that buying, selling, letting or renting can be daunting and often emotionally meaningful. We are there, when it matters, to make the journey as stress-free as possible.

See all team members

Got a question about this property?

This site is protected by reCAPTCHA and the Google Privacy Policy and Terms of Service apply.

More Properties like this

Franciscan Road, London, SW17

£750,000 Share of Freehold

Trevelyan Road, London, SW17

£700,000 Share of Freehold

Wheatlands Road, London, SW17

£695,000 Share of Freehold

Under Offer

Coverton Road, London, SW17

£675,000 Leasehold

Boundaries Road, London, SW12

£650,000 Leasehold

New Instruction

Brudenell Road, London, SW17

£650,000 Share of Freehold

Online Valuations Aren’t Worth The Paper They’re Printed On.

When online valuations don’t give you the whole picture - try Winkworth’s expert service. Get a free property appraisal. Accurate valuations from our local property experts. No obligation to list with Winkworth. Choose a time convenient for you with our online booking system.

Fill in your details and someone will be in touch soon:

You have provisionally booked a valuation for . Please confirm your details below

We don't have date info available for this property, but if you fill in your details below, someone will be in touch to arrange a date soon

Please fill in the required fields below marked with *

This site is protected by reCAPTCHA and the Google Privacy Policy and Terms of Service apply.