Skip to main content

MyWinkworth

Sold

Picture No. 21
Picture No. 04
Picture No. 24
Picture No. 03
Picture No. 23
Picture No. 05
Picture No. 26
Picture No. 02
Picture No. 25
Picture No. 07
Picture No. 08
Picture No. 10
Picture No. 11
Picture No. 17
Picture No. 18
Picture No. 27
Picture No. 12
Picture No. 13
Picture No. 14
Picture No. 15
Picture No. 16
Picture No. 19
Picture No. 22
Picture No. 20
Picture No. 06
6/14

Seymour Road, Harringay Ladder, London, N8

4 bedroom house in Harringay Ladder

Guide Price £750,000 Freehold

  • Bedrooms 4
  • Bathrooms 1
  • Reception rooms 3
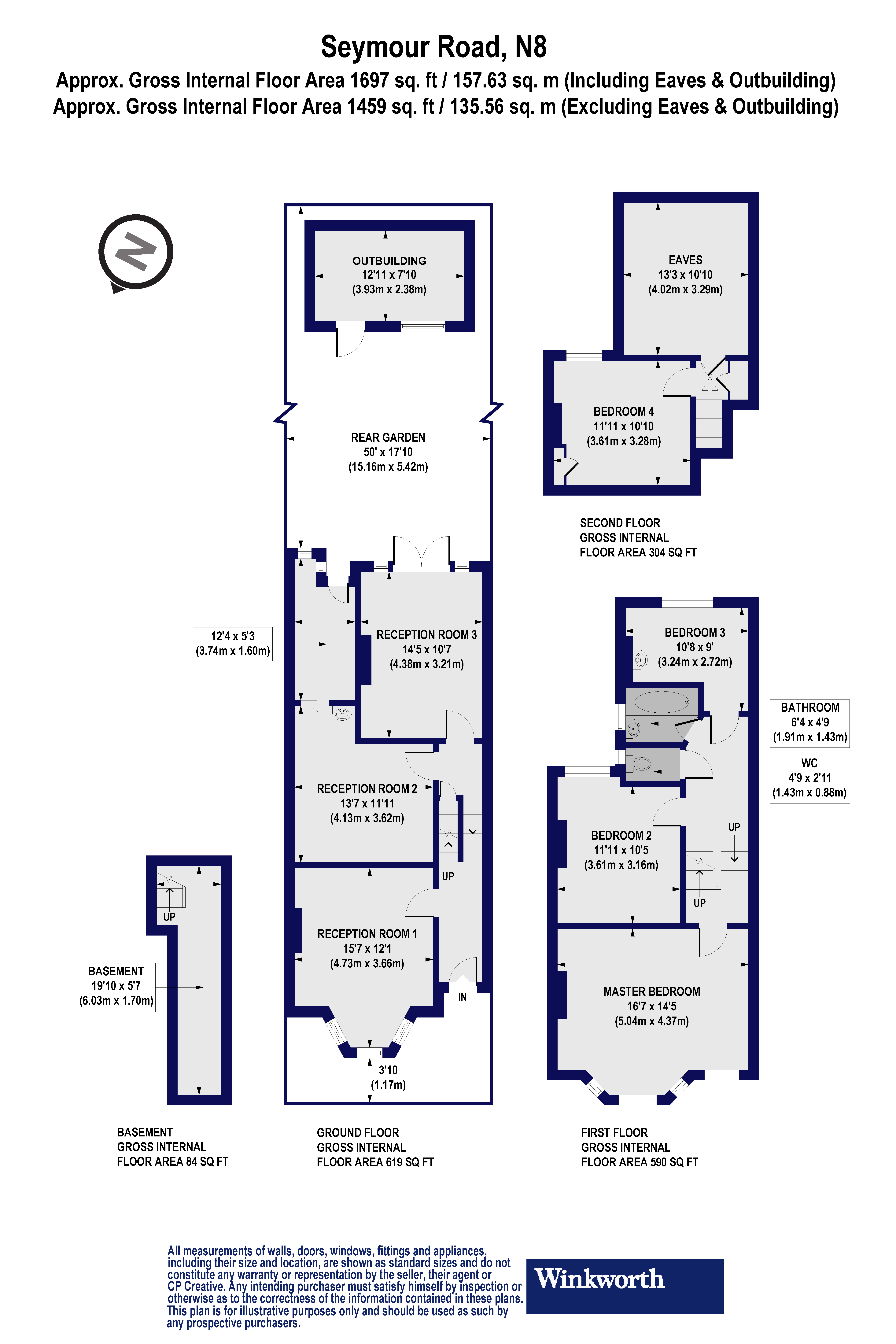
  • Dimensions 1697 sq ft
    157 sq m
  • Floorplan

PICTURES AND VIDEOS

KEY FEATURES

  • Four Bedroom House
  • Freehold
  • Unmodernised
  • Original Period Features
  • South Facing Garden
  • Harringay Ladder

KEY INFORMATION

  • Tenure: Freehold

Description

Resting peacefully on one of the Harringay Ladder’s gently sloping streets, here’s a four bedroom Victorian treasure in need of love and care. Crying out for restoration, it’s time for someone to breathe new life into this family sized Victorian terrace house.

The elegant proportions of this beautiful period home are intact and much of its original features and character have been preserved.

Enter the house and step into a beautiful hallway with original encaustic tiles underfoot and ornate plaster mouldings above. The reception rooms are accessed via six panel Victorian doors concealed behind plywood coverings. The two rooms are separate as originally designed but could easily be opened up. At the rear is a third reception room which would likely be a good place for the kitchen, flooded with direct sunlight all day due to its south facing aspect.

An original staircase with carved wood balusters, spindles and balustrade leads you to the upper floors, with four bedrooms arranged over various levels and staggered loft space above and to the rear. Particularly impressive is the master bedroom which is spacious, cool and restful, bathed in soft natural light via tall north facing windows.

Recently relaxed planning laws allow one to perform a number of extraordinary extensions to complement these traditional period properties.

Seymour Road is one of the quietest and most sought after of a collection of parallel streets that form the 'Harringay Ladder', popular due to its beautiful Victorian built terraces and the Piccadilly Line tube stations at either end. Thereupon, a friendly community has blossomed, and a burgeoning selection of independent shops, cafes and restaurants have recently appeared along Green Lanes. Established favourites include Music and Beans coffee shop, Cafe Blend for great coffee and brunch by day and pop-up restaurant in the evening, Bun N Bar for burgers, cocktails and live music, and Jam In A Jar for brunch and fresh juices which also hosts music events in the evenings. There’s also the iconic Grade II Listed Salisbury Pub with its great selection of international beers and the Harringay Local Store for speciality foods and organic groceries.

Transport links are excellent; the property is equidistant from Turnpike Lane and Manor House on the Piccadilly Line. You also have Harringay or Hornsey Train Stations which provide direct access to Finsbury Park, Kings Cross, Old Street and Moorgate.

You’re within the catchment area for South Harringay School but also close enough to North Harringay School. There are endless kids’ activities and community groups for those with young families.
Introduction text for the mortgage calculator

Mortgage Calculator

Fill in the details below to estimate your monthly repayments:

Approximate monthly repayment:

For more information, please contact Winkworth's mortgage partner, Trinity Financial, on +44 (0)20 7267 9399 and speak to the Trinity team.

Stamp Duty Calculator

Fill in the details below to estimate your stamp duty

The above calculator above is for general interest only and should not be relied upon

6/14
Picture No. 21
Picture No. 04
Picture No. 24
Picture No. 03
Picture No. 23
Picture No. 05
Picture No. 26
Picture No. 02
Picture No. 25
Picture No. 07
Picture No. 08
Picture No. 10
Picture No. 11
Picture No. 17
Picture No. 18
Picture No. 27
Picture No. 12
Picture No. 13
Picture No. 14
Picture No. 15
Picture No. 16
Picture No. 19
Picture No. 22
Picture No. 20
Picture No. 06

Meet the Team

At Winkworth Harringay Estate Agents, we have a comprehensive team of knowledgeable and personable property experts who are excited about the local area. So whether you're buying, selling, renting or letting or simply need some advice, pop into our office on Green Lanes for the experience and the local knowledge you need.

See all team members

Got a question about this property?

This site is protected by reCAPTCHA and the Google Privacy Policy and Terms of Service apply.

More Properties like this

New Instruction

Warham Road, London, N4

Guide Price £1,275,000 Freehold

Under Offer

Atterbury Road, Finsbury Park, N4

Guide Price £1,275,000 Freehold

Under Offer

Sydney Road, London, N8

Guide Price £1,150,000 Freehold

Jansons Road, London, N15

£1,100,000 Freehold

Under Offer

Hewitt Road, London, N8

Guide Price £1,100,000 Freehold

Under Offer

Lausanne Road, London, N8

Guide Price £1,050,000 Freehold

Online Valuations Aren’t Worth The Paper They’re Printed On.

When online valuations don’t give you the whole picture - try Winkworth’s expert service. Get a free property appraisal. Accurate valuations from our local property experts. No obligation to list with Winkworth. Choose a time convenient for you with our online booking system.

Fill in your details and someone will be in touch soon:

You have provisionally booked a valuation for . Please confirm your details below

We don't have date info available for this property, but if you fill in your details below, someone will be in touch to arrange a date soon

Please fill in the required fields below marked with *

This site is protected by reCAPTCHA and the Google Privacy Policy and Terms of Service apply.