Skip to main content

MyWinkworth

Sold

Picture No. 02
Picture No. 09
Picture No. 08
Picture No. 06
Picture No. 07
Picture No. 04
Picture No. 05
Picture No. 12
Picture No. 11
Picture No. 13
Picture No. 10
Picture No. 03
6/14

Seaford Road, London, N15

2 bedroom house

Guide Price £600,000 Freehold

  • Bedrooms 2
  • Bathrooms 1
  • Reception rooms 1
  • Floorplan

PICTURES AND VIDEOS

KEY FEATURES

  • Two Double Bedrooms
  • Large Through Lounge
  • Modern Kitchen
  • Modern Bathroom
  • 69ft Private Garden
  • Quiet Location
  • Chain Free
  • Close To Transport Links And Parks

KEY INFORMATION

  • Tenure: Freehold

Description

This attractive two bedroom Victorian house affords a prime N15 location close to Seven Sisters Station.

Sole Agent. Chain Free.

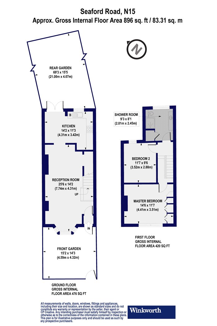
This well presented period home offers living accommodation over two floors spanning 896 sq ft. and offers bundles of potential.

Providing ample living space the property comprises a large double intercommunicating reception room which is ideal for entertaining, modern kitchen and a 69ft private garden.
The first floor benefits from two double bedrooms and a smart bathroom, there is also access to a loft space which could be converted (subject to planning consents).

Just a 10 minute walk from the Victoria line and Overground St at Seven Sisters (Zone 3) with quick and convenient access to the City or West End, its also the preferred route option for Crossrail 2.

In addition to excellent public transport links, The Cycle Superhighway (CS1) from nearby Tottenham High Road to Liverpool Street provides a fast, safe and direct journey to the city.

South Tottenham, with its attractive housing stock and green spaces has become an increasingly popular North London neighbourhood and a hive of creativity. The area is currently undergoing a transformative and exciting regeneration programme including the development of Seven Sisters station which is set to become an important and impressive international transportation hub.

You will be just a short walk from the vibrant bars, cafes and restaurants of Green Lanes Harringay as well as West Green Road N15 with its increasing array of independent establishments.
Leafy Downhills Park and Chestnuts Park are both close by and have excellent cafe's and childrens play areas. With superb nurseries and schools and a welcoming community of residents this place ticks a lot of the right boxes.

Please contact the Sales department at Winkworth Harringay office to arrange an appointment to view

Winkworth.co.uk

Your local independently owned property agency with a network of 58 London offices.

Est. 1835

Follow us on Instagram - @winkworthharringay
Introduction text for the mortgage calculator

Mortgage Calculator

Fill in the details below to estimate your monthly repayments:

Approximate monthly repayment:

For more information, please contact Winkworth's mortgage partner, Trinity Financial, on +44 (0)20 7267 9399 and speak to the Trinity team.

Stamp Duty Calculator

Fill in the details below to estimate your stamp duty

The above calculator above is for general interest only and should not be relied upon

6/14
Picture No. 02
Picture No. 09
Picture No. 08
Picture No. 06
Picture No. 07
Picture No. 04
Picture No. 05
Picture No. 12
Picture No. 11
Picture No. 13
Picture No. 10
Picture No. 03

Meet the Team

At Winkworth Harringay Estate Agents, we have a comprehensive team of knowledgeable and personable property experts who are excited about the local area. So whether you're buying, selling, renting or letting or simply need some advice, pop into our office on Green Lanes for the experience and the local knowledge you need.

See all team members

Got a question about this property?

This site is protected by reCAPTCHA and the Google Privacy Policy and Terms of Service apply.

More Properties like this

New Instruction

Warham Road, London, N4

Guide Price £1,275,000 Freehold

Under Offer

Atterbury Road, Finsbury Park, N4

Guide Price £1,275,000 Freehold

Under Offer

Sydney Road, London, N8

Guide Price £1,150,000 Freehold

Jansons Road, London, N15

£1,100,000 Freehold

Under Offer

Hewitt Road, London, N8

Guide Price £1,100,000 Freehold

Under Offer

Lausanne Road, London, N8

Guide Price £1,050,000 Freehold

Online Valuations Aren’t Worth The Paper They’re Printed On.

When online valuations don’t give you the whole picture - try Winkworth’s expert service. Get a free property appraisal. Accurate valuations from our local property experts. No obligation to list with Winkworth. Choose a time convenient for you with our online booking system.

Fill in your details and someone will be in touch soon:

You have provisionally booked a valuation for . Please confirm your details below

We don't have date info available for this property, but if you fill in your details below, someone will be in touch to arrange a date soon

Please fill in the required fields below marked with *

This site is protected by reCAPTCHA and the Google Privacy Policy and Terms of Service apply.