Skip to main content

MyWinkworth

Sold

Picture No. 21
Picture No. 23
Picture No. 08
Picture No. 07
Picture No. 09
Picture No. 10
Picture No. 11
Picture No. 12
Picture No. 22
Picture No. 24
Picture No. 17
Picture No. 15
Picture No. 16
Picture No. 14
Picture No. 13
Picture No. 18
Picture No. 19
Picture No. 20
Picture No. 04
6/14

Roslyn Road, London, N15

3 bedroom house in London

£700,000 Freehold

  • Bedrooms 3
  • Bathrooms 1
  • Reception rooms 2
  • Floorplan

PICTURES AND VIDEOS

KEY FEATURES

  • Three Bedrooms
  • Double Reception
  • Modern Kitchen
  • Oversized Modern Bathroom
  • Potential To Extend (STPP)
  • Enviable Location

KEY INFORMATION

  • Tenure: Freehold

Description

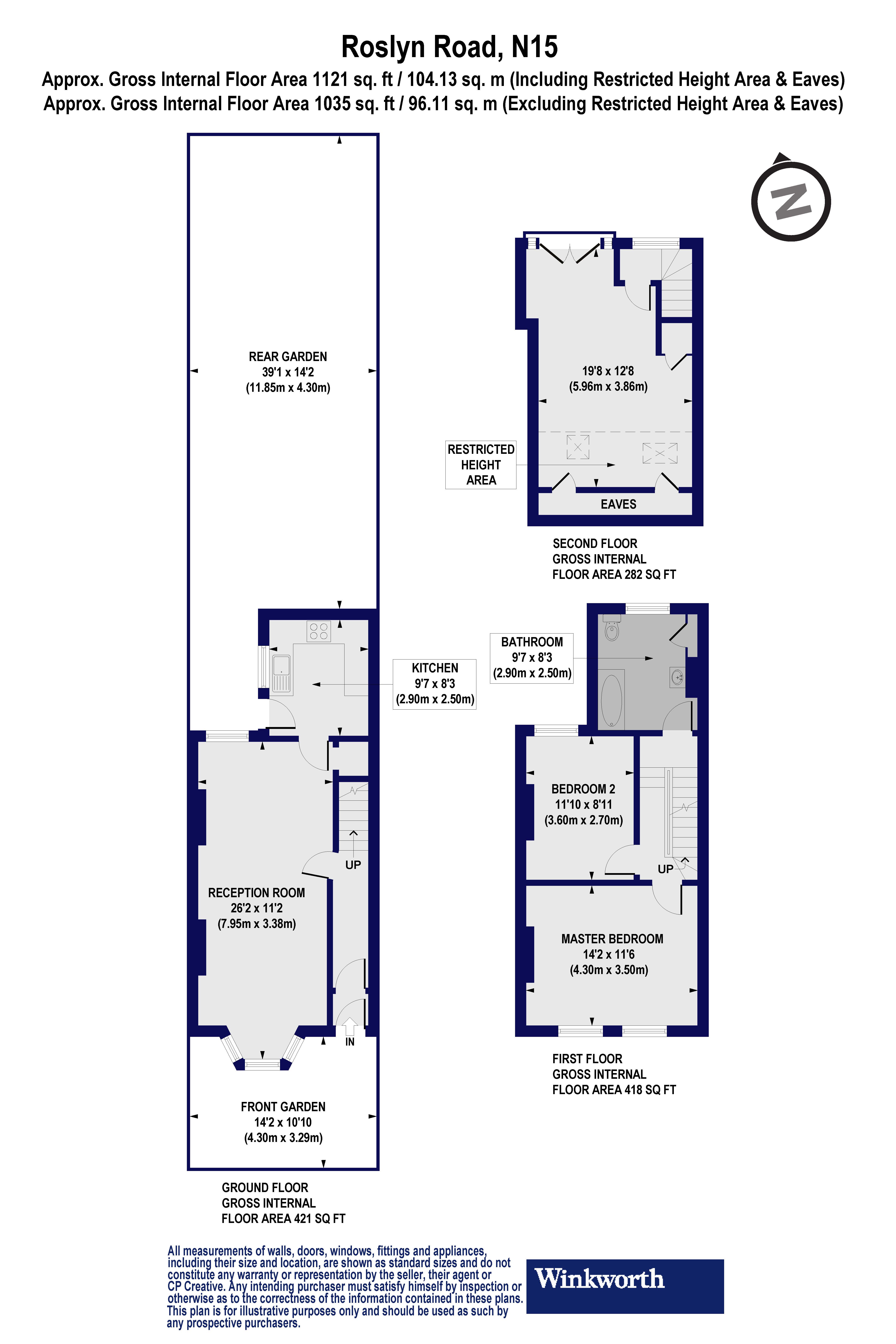
Nestled on one of the area's most coveted Victorian streets, this meticulously designed home spans approximately 1121 sq ft across three spacious floors.

Thoughtfully styled by its current owners, the residence seamlessly integrates classic period charm with modern touches, resulting in a stylish and functional haven for both family living and social entertaining.

Upon entering, a warm and inviting hallway leads to the expansive double reception room. Enhanced by a bay window, a fireplace, hardwood floors, and bespoke shelving, this space has been skillfully opened up by the owners, offering an ideal setting for relaxation and gatherings. The modern kitchen at the rear provides direct access to the private rear garden.

Ascending to the first floor reveals two of the three double bedrooms, with the largest spanning the entire width of the front. An oversized modern bathroom complements this level. The converted loft space, added around eight years ago, boasts another spacious bedroom with a Juliet balcony overlooking the rear.

Conveniently located, the property is just a 10-minute walk from the Victoria line and Overground station at Seven Sisters (Zone 3), providing swift access to the City or West End and serving as a preferred route for Crossrail 2. The nearby Cycle Superhighway (CS1) offers a fast, safe, and direct journey to the city from Tottenham High Road to Liverpool Street.

South Tottenham, undergoing a transformative regeneration, is a popular North London neighborhood known for its attractive housing, green spaces, and creative atmosphere. The development of Seven Sisters station promises to elevate the area further. Enjoy proximity to lively bars, cafes, and restaurants along Green Lanes Harringay and West Green Road N15. Leafy Downhills Park and Chestnuts Park, with excellent cafes and play areas, are nearby. With top-notch nurseries and schools, along with a welcoming community, this property ticks all the right boxes.


Please contact the Sales department at Winkworth Harringay office to arrange an appointment to view

Winkworth.co.uk

Your local independently owned property agency with a network of 62 London offices.

Est. 1835

Follow us on Instagram - @winkworthharringay
Introduction text for the mortgage calculator

Mortgage Calculator

Fill in the details below to estimate your monthly repayments:

Approximate monthly repayment:

For more information, please contact Winkworth's mortgage partner, Trinity Financial, on +44 (0)20 7267 9399 and speak to the Trinity team.

Stamp Duty Calculator

Fill in the details below to estimate your stamp duty

The above calculator above is for general interest only and should not be relied upon

6/14
Picture No. 21
Picture No. 23
Picture No. 08
Picture No. 07
Picture No. 09
Picture No. 10
Picture No. 11
Picture No. 12
Picture No. 22
Picture No. 24
Picture No. 17
Picture No. 15
Picture No. 16
Picture No. 14
Picture No. 13
Picture No. 18
Picture No. 19
Picture No. 20
Picture No. 04

Meet the Team

At Winkworth Harringay Estate Agents, we have a comprehensive team of knowledgeable and personable property experts who are excited about the local area. So whether you're buying, selling, renting or letting or simply need some advice, pop into our office on Green Lanes for the experience and the local knowledge you need.

See all team members

Got a question about this property?

This site is protected by reCAPTCHA and the Google Privacy Policy and Terms of Service apply.

More Properties like this

New Instruction

Warham Road, London, N4

Guide Price £1,275,000 Freehold

Under Offer

Atterbury Road, Finsbury Park, N4

Guide Price £1,275,000 Freehold

Under Offer

Sydney Road, London, N8

Guide Price £1,150,000 Freehold

Jansons Road, London, N15

£1,100,000 Freehold

Under Offer

Hewitt Road, London, N8

Guide Price £1,100,000 Freehold

Under Offer

Lausanne Road, London, N8

Guide Price £1,050,000 Freehold

Online Valuations Aren’t Worth The Paper They’re Printed On.

When online valuations don’t give you the whole picture - try Winkworth’s expert service. Get a free property appraisal. Accurate valuations from our local property experts. No obligation to list with Winkworth. Choose a time convenient for you with our online booking system.

Fill in your details and someone will be in touch soon:

You have provisionally booked a valuation for . Please confirm your details below

We don't have date info available for this property, but if you fill in your details below, someone will be in touch to arrange a date soon

Please fill in the required fields below marked with *

This site is protected by reCAPTCHA and the Google Privacy Policy and Terms of Service apply.