Skip to main content

MyWinkworth

Sold

Picture No. 01
Picture No. 02
Picture No. 03
Picture No. 04
Picture No. 05
Picture No. 06
Picture No. 07
Picture No. 20
Picture No. 19
Picture No. 16
6/14

Ringwood Road, Ferndown, BH22

1 bedroom flat/apartment in Ferndown

Guide Price £99,000 Leasehold

  • Bedrooms 1
  • Bathrooms 1
  • Reception rooms 1
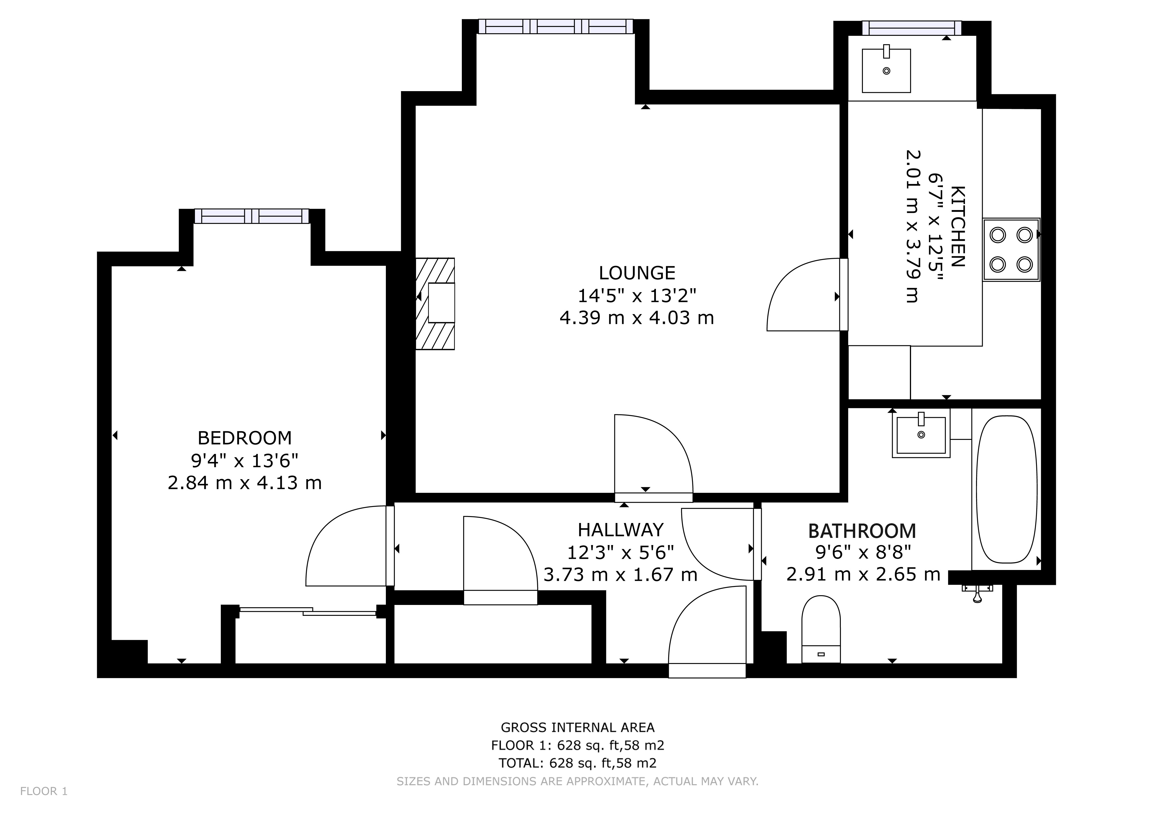
  • Floorplan

PICTURES AND VIDEOS

KEY FEATURES

  • Over 70’s Luxury Second Floor Apartment
  • Communal Gardens
  • Residents Lounge With Regular Activities
  • No Onward Chain
  • Less Than 500 Metres From Town Centre
  • On Site House Manager
  • 24hr Carelines In Each Room
  • Residents Parking
  • Mobility Scooter Store
  • Restaurant With Table Service

KEY INFORMATION

  • Tenure: Leasehold
  • Lease Length: 109 yrs left
  • Council Tax Band: C

Description

Cherrett Court is a luxury retirement development (for over 70’s) built by award-winning retirement house builders McCarthy & Stone. This modern second floor one bedroom apartment is
immaculate throughout and the development is well located, within an easy level walk of Ferndown High Street. The development enjoys extensive facilities including a communal lounge, restaurant serving affordable quality three-course daily lunches, guest suite for visiting family and friends and lovely
landscaped gardens.

An immaculate and modern one bedroom, second floor apartment positioned in Cherrett Court, a luxury retirement development (for over 70’s) built by award-winning retirement house builders McCarthy & Stone.

The layout comprises; modern kitchen with fitted appliances, light and spacious lounge/diner with feature fireplace, double bedroom with built in wardrobes and a large bathroom with a bath and separate stand in wet room style shower, w.c and hand basin.

The property has no onward chain and is located within an easy level walk of Ferndown High Street, the development has an active social scene and is the perfect mix of independence with assisted care if required. There are a range of communal facilities including a house manager, secure entry-phone system, lift and stairs to all floors, residents lounge and separate function room, restaurant serving affordable quality three-course daily lunches, laundry room and private guest suite which can be booked for visiting guests. Visitor and resident parking (subject to availability.

Further benefits include a long lease of 113 years remaining and one hours domestic care per week included in the service charge - £8323.32 per annum service charge and £435.00 per annum ground rent.

Location

Cherrett Court is within a short level walk of Ferndown town centre, which has a range of shops, cafes and amenities including an M&S Food hall and a championship golf course. There are bus routes within a short walk giving you easy access to Bournemouth, Poole & Wimborne all of which have an excellent range of shops and leisure facilities. Award winning sandy beaches are just twenty minutes away in Bournemouth and the nearby A31 provides quick access to the New Forest, Southampton and London.
Introduction text for the mortgage calculator

Mortgage Calculator

Fill in the details below to estimate your monthly repayments:

Approximate monthly repayment:

For more information, please contact Winkworth's mortgage partner, Trinity Financial, on +44 (0)20 7267 9399 and speak to the Trinity team.

Stamp Duty Calculator

Fill in the details below to estimate your stamp duty

The above calculator above is for general interest only and should not be relied upon

6/14
Picture No. 01
Picture No. 02
Picture No. 03
Picture No. 04
Picture No. 05
Picture No. 06
Picture No. 07
Picture No. 20
Picture No. 19
Picture No. 16

Meet the Team

As one of the most experienced teams in Ferndown our recently refurbished office is found in the heart of Ferndown. Please come and talk to us about your property requirements, and get to know the team from the Winkworth Estate Agents in Ferndown.

See all team members

Got a question about this property?

This site is protected by reCAPTCHA and the Google Privacy Policy and Terms of Service apply.

More Properties like this

Golf Links Road, Ferndown, BH22

Guide Price £475,000 Share of Freehold

Carroll Avenue, Ferndown, Dorset, BH22

Guide Price £475,000 Leasehold

Golf Links Road, Ferndown, Dorset, BH22

Guide Price £475,000 Leasehold

Under Offer

Golf Links Road, Ferndown, Dorset, BH22

Guide Price £365,000 Share of Freehold

Golf Links Road, Ferndown, Dorset, BH22

Guide Price £350,000 Share of Freehold

Under Offer

Wimborne Road East, Ferndown, Dorset, BH22

Guide Price £325,000 Share of Freehold

Online Valuations Aren’t Worth The Paper They’re Printed On.

When online valuations don’t give you the whole picture - try Winkworth’s expert service. Get a free property appraisal. Accurate valuations from our local property experts. No obligation to list with Winkworth. Choose a time convenient for you with our online booking system.

Fill in your details and someone will be in touch soon:

You have provisionally booked a valuation for . Please confirm your details below

We don't have date info available for this property, but if you fill in your details below, someone will be in touch to arrange a date soon

Please fill in the required fields below marked with *

This site is protected by reCAPTCHA and the Google Privacy Policy and Terms of Service apply.