Skip to main content

MyWinkworth

Sold

Picture No. 01
Picture No. 05
Picture No. 09
Picture No. 03
Picture No. 13
Picture No. 10
Picture No. 14
Picture No. 11
Picture No. 07
Picture No. 08
Picture No. 12
Picture No. 04
Picture No. 06
Picture No. 15
Picture No. 16
Picture No. 02
6/14

Queensdown Road, London, E5

1 bedroom maisonette in London

£425,000 Share of Freehold

  • Bedrooms 1
  • Bathrooms 1
  • Reception rooms 1
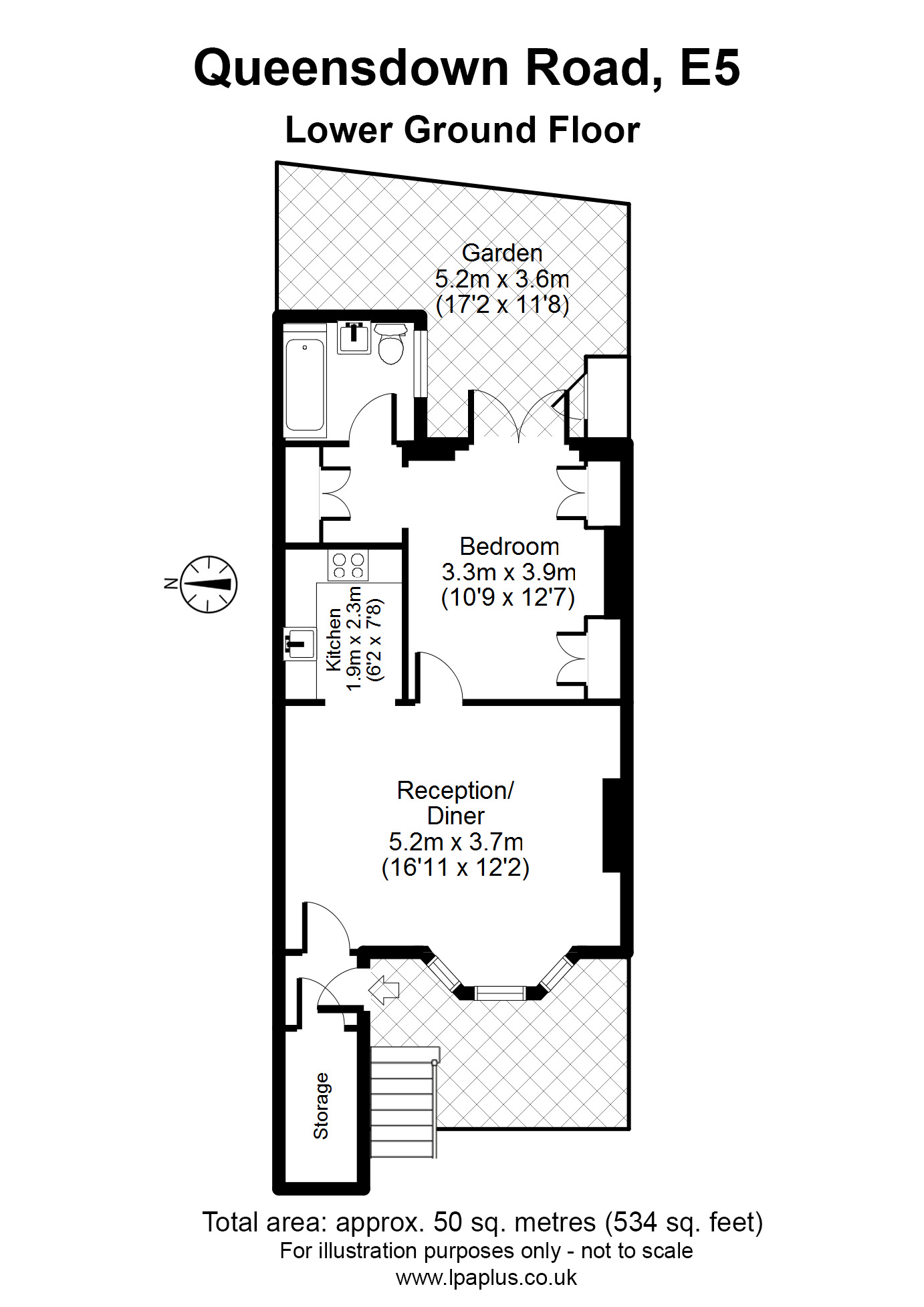
  • Dimensions 534 sq ft
    49 sq m
  • Floorplan

PICTURES AND VIDEOS

KEY INFORMATION

  • Tenure: Share of Freehold
  • Lease Length: 951 yrs left
  • Council Tax Band: B
  • Local Authority: London Borough Of Hackney

Description

Introducing a charming one-bedroom period conversion nestled on the lower ground floor of a beautiful building on Queensdown Road in E5. Spanning approximately 534 square feet, this delightful residence offers a tranquil retreat within a vibrant neighbourhood. Upon entering, you are greeted by a bright living space with modern comforts and characterful features of a period property. The living room also benefits from high ceilings and feature fire place, the adjacent kitchen is modern and thoughtfully equipped with contemporary fixtures and fittings. The bedroom also benefits from high ceilings, built in wardrobes and direct access to the private courtyard garden.

Situated in the heart of Queensdown Road, the local area provides a vibrant and diverse community with an array of amenities and attractions. Within walking distance, you'll find an eclectic mix of cafes, restaurants, and shops, offering a variety of cuisines and products to cater to all tastes. The nearby green spaces, such as Hackney Downs provide ideal settings for leisurely strolls, picnics, or outdoor activities.

Transport links are excellent, with numerous bus routes serving the area, providing easy access to the surrounding neighbourhoods and beyond. The nearest train station is within close proximity, connecting you to the city centre and other parts of London in a matter of minutes. Whether you prefer the bustling streets of central London or the trendy hotspots of Hackney, this location offers the best of both worlds.
Introduction text for the mortgage calculator

Mortgage Calculator

Fill in the details below to estimate your monthly repayments:

Approximate monthly repayment:

For more information, please contact Winkworth's mortgage partner, Trinity Financial, on +44 (0)20 7267 9399 and speak to the Trinity team.

Stamp Duty Calculator

Fill in the details below to estimate your stamp duty

The above calculator above is for general interest only and should not be relied upon

6/14
Picture No. 01
Picture No. 05
Picture No. 09
Picture No. 03
Picture No. 13
Picture No. 10
Picture No. 14
Picture No. 11
Picture No. 07
Picture No. 08
Picture No. 12
Picture No. 04
Picture No. 06
Picture No. 15
Picture No. 16
Picture No. 02

Meet the Team

From our central Hackney office, our team are on hand to offer expert local knowledge. While we favour the local approach, by working closely with our national and London teams alongside a dedicated Corporate Services, marketing and PR department, we will give you an unparalleled advantage, putting your home in front of the right buyers and tenants throughout London and the UK. Whether you're looking to buy, sell, rent or let your home, we're here to help.

See all team members

Got a question about this property?

This site is protected by reCAPTCHA and the Google Privacy Policy and Terms of Service apply.

More Properties like this

Under Offer

Halidon Close, London, E9

£650,000 Leasehold

Under Offer

Shellness Road, London, E5

£600,000 Leasehold

Graham Road, London, E8

Offers in excess of £475,000 Share of Freehold

Online Valuations Aren’t Worth The Paper They’re Printed On.

When online valuations don’t give you the whole picture - try Winkworth’s expert service. Get a free property appraisal. Accurate valuations from our local property experts. No obligation to list with Winkworth. Choose a time convenient for you with our online booking system.

Fill in your details and someone will be in touch soon:

You have provisionally booked a valuation for . Please confirm your details below

We don't have date info available for this property, but if you fill in your details below, someone will be in touch to arrange a date soon

Please fill in the required fields below marked with *

This site is protected by reCAPTCHA and the Google Privacy Policy and Terms of Service apply.