Skip to main content

MyWinkworth

Sold

Picture No. 15
Picture No. 08
Picture No. 07
Picture No. 06
Picture No. 10
Picture No. 09
Picture No. 11
Picture No. 18
Picture No. 05
Picture No. 12
Picture No. 02
Picture No. 01
Picture No. 04
Picture No. 03
Picture No. 17
Picture No. 16
Picture No. 14
Picture No. 13
6/14

North Grove, London, N15

2 bedroom house in London

£625,000 Freehold

  • Bedrooms 2
  • Bathrooms 1
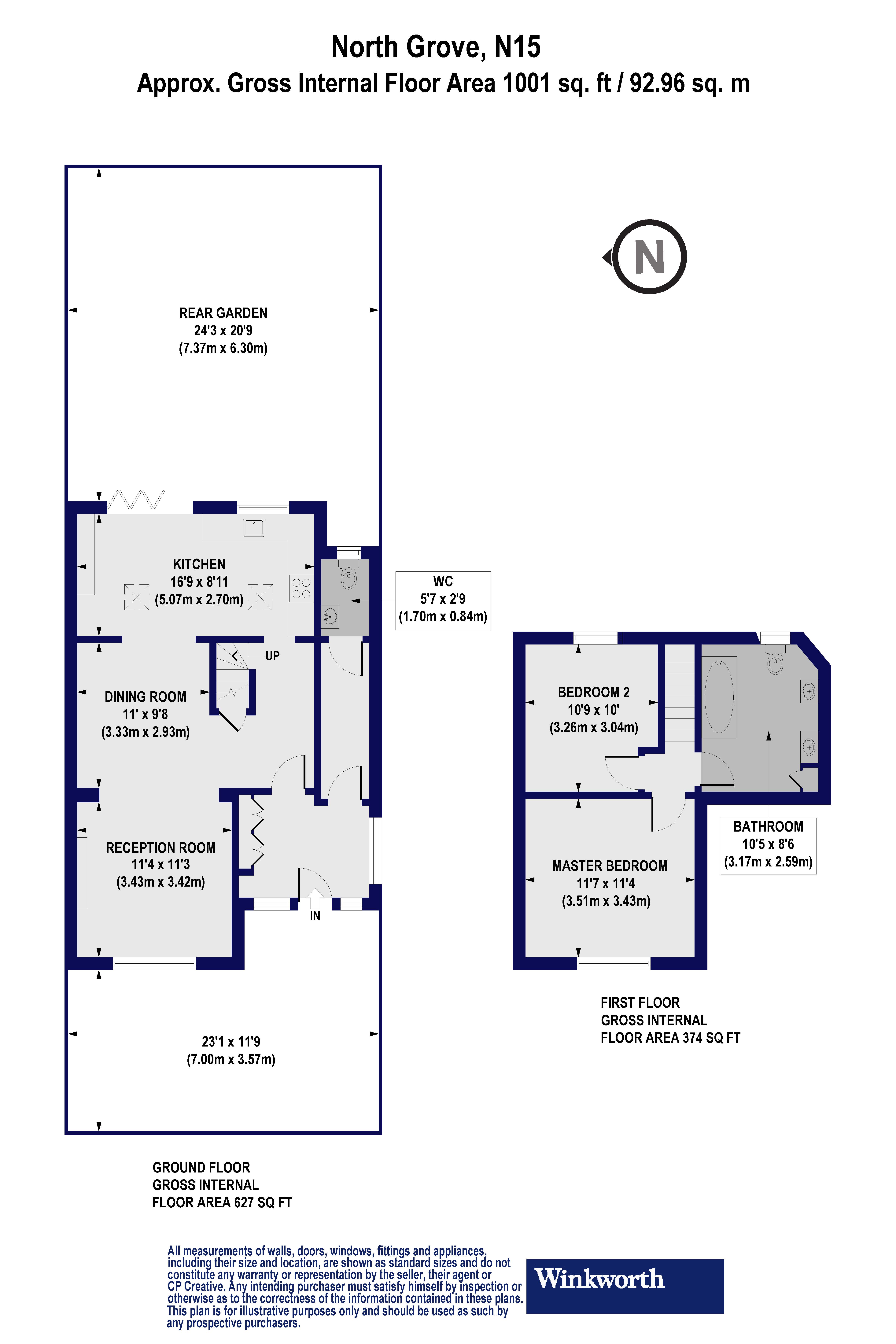
  • Dimensions 1001 sq ft
    92 sq m
  • Floorplan

PICTURES AND VIDEOS

KEY FEATURES

  • 2 Bedrooms
  • 1 Bathroom
  • Freehold
  • End of terrace
  • Private Garden
  • 1001 Sq Ft
  • Great Location
  • Large Front Garden

KEY INFORMATION

  • Tenure: Freehold

Description

Stylish two bedroom house situated close to Chestnuts Park. Spanning 1001 Sq.ft over two-floors.

Open House Sat 10th September.

Sole Agent

Stylishly renovated by the current owner to provide a tasteful and sophisticated, modern period home spanning 1001 Sq. Ft over two-floors.

As you enter this fabulous home, through its convenient porch, you will notice the stylish modern décor. To the left there is well-proportioned reception room with tall ceilings opened up to provide effortless flow through the property. At the rear you will find a spacious kitchen area, with a stylish green clad, modern kitchen opening on to private east-facing rear garden, through bifold doors.

Over the first floor there are two double bedrooms and a beautifully fitted over sized bathroom, with fittings providing homage to the original character of this Victorian property. This is truly a wonderful first time buy as this home provides a functional and social space for a young family looking to settle their roots in Harringay.

Just a 10-minute walk from the Victoria line and Overground at Seven Sisters (Zone 3), the property has quick and convenient access to central and east London and is the preferred route option for Crossrail 2.

The property is a short walk from the vibrant bars, cafes, and restaurants on Green Lanes. Also within a short walk are the leafy Downhills and Chestnuts Parks and several Ofsted 'Good' rated primary schools.

Please contact the Sales department at Winkworth Harringay office to arrange an appointment to view 020 8800 5151 - [email protected]


Follow us on Instagram @winkworthharringay

Winkworth.co.uk

Your local independently owned property agency with a network of 58 London offices.

Est 1835
Introduction text for the mortgage calculator

Mortgage Calculator

Fill in the details below to estimate your monthly repayments:

Approximate monthly repayment:

For more information, please contact Winkworth's mortgage partner, Trinity Financial, on +44 (0)20 7267 9399 and speak to the Trinity team.

Stamp Duty Calculator

Fill in the details below to estimate your stamp duty

The above calculator above is for general interest only and should not be relied upon

6/14
Picture No. 15
Picture No. 08
Picture No. 07
Picture No. 06
Picture No. 10
Picture No. 09
Picture No. 11
Picture No. 18
Picture No. 05
Picture No. 12
Picture No. 02
Picture No. 01
Picture No. 04
Picture No. 03
Picture No. 17
Picture No. 16
Picture No. 14
Picture No. 13

Meet the Team

At Winkworth Harringay Estate Agents, we have a comprehensive team of knowledgeable and personable property experts who are excited about the local area. So whether you're buying, selling, renting or letting or simply need some advice, pop into our office on Green Lanes for the experience and the local knowledge you need.

See all team members

Got a question about this property?

This site is protected by reCAPTCHA and the Google Privacy Policy and Terms of Service apply.

More Properties like this

New Instruction

Warham Road, London, N4

Guide Price £1,275,000 Freehold

Under Offer

Atterbury Road, Finsbury Park, N4

Guide Price £1,275,000 Freehold

Under Offer

Sydney Road, London, N8

Guide Price £1,150,000 Freehold

Jansons Road, London, N15

£1,100,000 Freehold

Under Offer

Hewitt Road, London, N8

Guide Price £1,100,000 Freehold

Under Offer

Lausanne Road, London, N8

Guide Price £1,050,000 Freehold

Online Valuations Aren’t Worth The Paper They’re Printed On.

When online valuations don’t give you the whole picture - try Winkworth’s expert service. Get a free property appraisal. Accurate valuations from our local property experts. No obligation to list with Winkworth. Choose a time convenient for you with our online booking system.

Fill in your details and someone will be in touch soon:

You have provisionally booked a valuation for . Please confirm your details below

We don't have date info available for this property, but if you fill in your details below, someone will be in touch to arrange a date soon

Please fill in the required fields below marked with *

This site is protected by reCAPTCHA and the Google Privacy Policy and Terms of Service apply.