Skip to main content

MyWinkworth

Sold

Picture No. 09
Picture No. 08
Picture No. 05
Picture No. 06
Picture No. 17
Picture No. 19
Picture No. 04
Picture No. 07
Picture No. 10
Picture No. 11
Picture No. 13
Picture No. 14
Picture No. 15
Picture No. 16
Picture No. 12
Picture No. 18
Picture No. 20
Picture No. 21
6/14

Myddleton Avenue, London, N4

4 bedroom house in London

£950,000 Freehold

  • Bedrooms 4
  • Bathrooms 2
  • Reception rooms 1
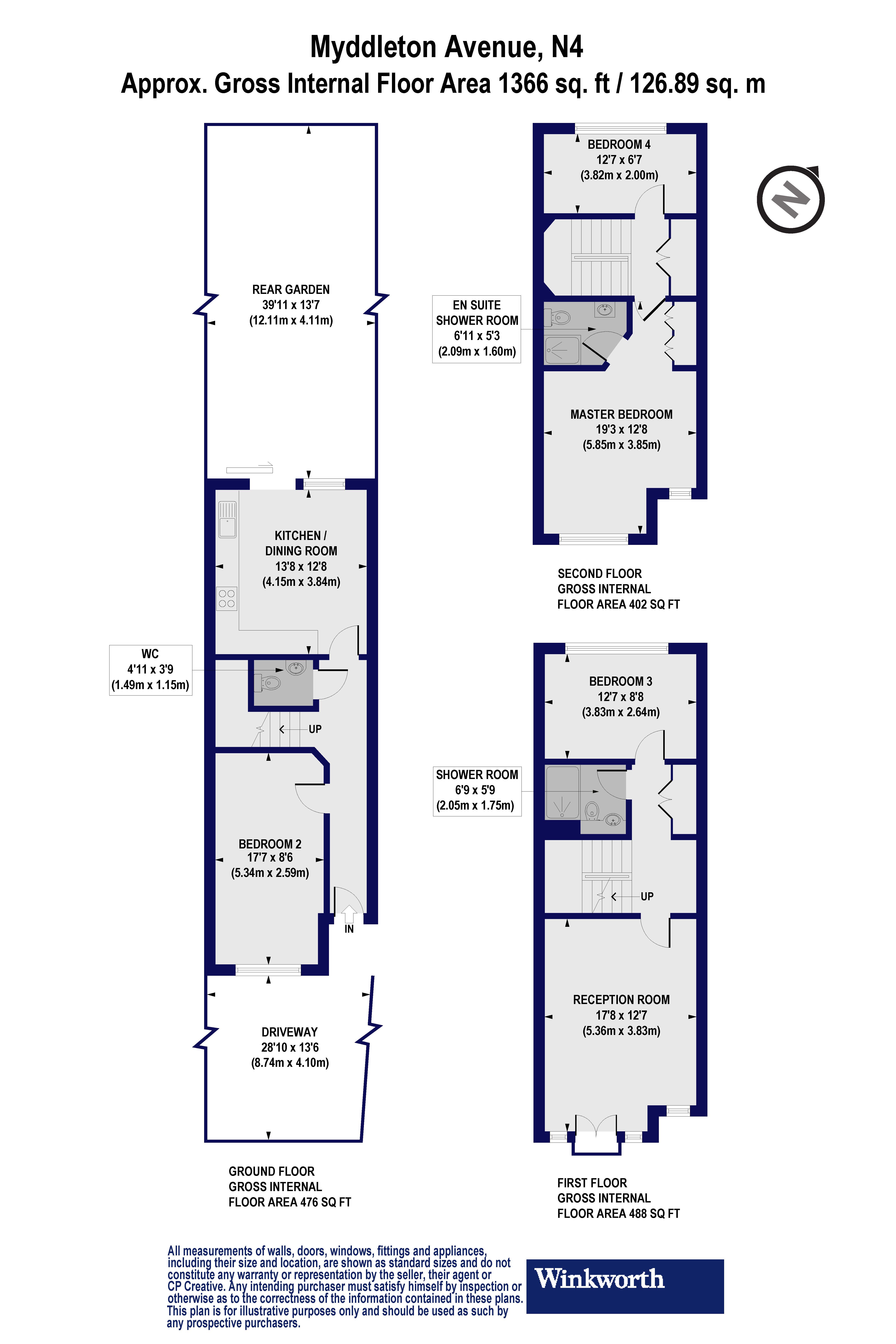
  • Floorplan

PICTURES AND VIDEOS

KEY INFORMATION

  • Tenure: Freehold

Description

A substantial, four double bedroom, two bathroom freehold house with off street parking positioned on a quiet cul-de-sac in N4. Standing in excess of 1,360 sqft, the property is set across three separate floors and offers a wealth of natural light from a north to south facing aspect. The ground floor occupies a wonderfully spacious kitchen which is large enough for a dining table, while bifolding doors open out into a sizeable, mature private garden creating the perfect entertaining space. The first floor features a well-proportioned reception room and separate shower room, not forgetting ample storage throughout. All four bedrooms are genuine doubles, the master benefitting from an ensuite on the top floor with the other three double bedrooms individually split across each floor.
This superb house is located on a fantastically quiet section of Myddleton Avenue yet offers exceptionally easy access to zone 1 via Manor House underground (Piccadilly Line) with Finsbury Park (Piccadilly, Victoria and National Rail) also a short distance away. The 141 and 341 bus routes provide further options for effortless commuting to the City and West End. Stoke Newington, Highbury and Stroud Green with their vast array of restaurants, gastro pubs and coffee shops are a short walk as are the green open spaces of Finsbury Park and Clissold Park.
Introduction text for the mortgage calculator

Mortgage Calculator

Fill in the details below to estimate your monthly repayments:

Approximate monthly repayment:

For more information, please contact Winkworth's mortgage partner, Trinity Financial, on +44 (0)20 7267 9399 and speak to the Trinity team.

Stamp Duty Calculator

Fill in the details below to estimate your stamp duty

The above calculator above is for general interest only and should not be relied upon

6/14
Picture No. 09
Picture No. 08
Picture No. 05
Picture No. 06
Picture No. 17
Picture No. 19
Picture No. 04
Picture No. 07
Picture No. 10
Picture No. 11
Picture No. 13
Picture No. 14
Picture No. 15
Picture No. 16
Picture No. 12
Picture No. 18
Picture No. 20
Picture No. 21

Meet the Team

At Winkworth Harringay Estate Agents, we have a comprehensive team of knowledgeable and personable property experts who are excited about the local area. So whether you're buying, selling, renting or letting or simply need some advice, pop into our office on Green Lanes for the experience and the local knowledge you need.

See all team members

Got a question about this property?

This site is protected by reCAPTCHA and the Google Privacy Policy and Terms of Service apply.

More Properties like this

New Instruction

Warham Road, London, N4

Guide Price £1,275,000 Freehold

Under Offer

Atterbury Road, Finsbury Park, N4

Guide Price £1,275,000 Freehold

Under Offer

Sydney Road, London, N8

Guide Price £1,150,000 Freehold

Jansons Road, London, N15

£1,100,000 Freehold

Under Offer

Hewitt Road, London, N8

Guide Price £1,100,000 Freehold

Under Offer

Lausanne Road, London, N8

Guide Price £1,050,000 Freehold

Online Valuations Aren’t Worth The Paper They’re Printed On.

When online valuations don’t give you the whole picture - try Winkworth’s expert service. Get a free property appraisal. Accurate valuations from our local property experts. No obligation to list with Winkworth. Choose a time convenient for you with our online booking system.

Fill in your details and someone will be in touch soon:

You have provisionally booked a valuation for . Please confirm your details below

We don't have date info available for this property, but if you fill in your details below, someone will be in touch to arrange a date soon

Please fill in the required fields below marked with *

This site is protected by reCAPTCHA and the Google Privacy Policy and Terms of Service apply.