Skip to main content

MyWinkworth

Sold

Picture No. 03
Picture No. 09
Picture No. 10
Picture No. 07
Picture No. 08
Picture No. 17
Picture No. 11
Picture No. 12
Picture No. 13
Picture No. 15
Picture No. 16
Picture No. 14
Picture No. 05
Picture No. 06
Picture No. 04
6/14

Musselburgh Way, Bourne, PE10

5 bedroom house in Bourne

£365,000 Freehold

  • Bedrooms 5
  • Bathrooms 3
  • Reception rooms 2
  • Floorplan

PICTURES AND VIDEOS

KEY FEATURES

  • Impressive five bedroom detached family home
  • Set over three floors
  • Easy access to the Grammar School, Tesco supermarket and the A15 road link
  • Single garage and driveway
  • Enclosed south facing garden

KEY INFORMATION

  • Tenure: Freehold
  • Council Tax Band: E
  • Local Authority: South Kesteven District Council

Description

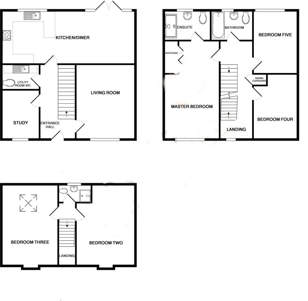
An impressive five bedroom detached family home located on the popular Elsea Park development giving easy access to the Grammar School, Tesco supermarket and the A15 road link. The property is set over three floors with accommodation comprising, lounge, kitchen/dining room, study and utility room/downstairs cloakroom. On the first floor there is a master bedroom with en-suite, two further bedrooms and family bathroom and on the top floor two double bedrooms and shower room. Outside there is a single garage and driveway to the side and to the rear a fully enclosed south facing garden. Please call 01778 392807 for more information. EPC Band B

Rooms and Accommodations

  • Entrance Hall
  • With tiled flooring, stairs leading to the first floor, fitted understairs storage, further understairs storage cupboard, radiator and door leading through to
  • Utility Room/Cloakroom
  • 2.36m x 1.63m
  • With single drainer sink with fitted work surface and cupboard below, integrated washing machine, low level WC, tiled flooring, radiator and extractor fan
  • Lounge
  • 4.6m x 3.56m
  • With UPVC double glazed window overlooking the front, radiator, power points and TV point
  • Study
  • 2.46m x 2.36m
  • With UPVC double glazed window overlooking the front, radiator, power points,
  • Kitchen/Dining Room
  • 8.05m x 3.25m
  • With superb modern fitted units comprising, one and a half bowl sink unit with cupboard below, excellent range of wall and base units, incorporating fitted work top with breakfast bar and upstands, space for range cooker with extractor fan above, integrated microwave, integrated fridge/freezer, integrated dishwasher, tiled flooring, radiator, upvc double glazed French doors onto the rear garden and further upvc double glazed window to the rear
  • First Floor Landing
  • With stairs leading to the second floor, built in airing cupboard housing hot water tank, and door leading through to
  • Bedroom one
  • 5.74m x 3.35m
  • With UPVC double glazed window overlooking the front, fitted mirror fronted wardrobes, radiator, power points and door leading through to
  • En suite
  • With a double shower cubicle with wall mounted shower low level wc, wash hand basin, tiled walls, radiator, upvc double glazed frosted window
  • Bedroom Two
  • 4.01m x 2.57m
  • With UPVC double glazed window overlooking the front, radiator, power points
  • Bedroom Three
  • 3.56m x 2.92m
  • UPVC double glazed window overlooking the rear, built in wardrobes, radiator and power points
  • Family Bathroom
  • With a panelled bath, low level wc, wash hand basin, part tiled walls, radiator and frosted window
  • Second Floor Landing
  • Bedroom Four
  • 4.8m x 3.38m
  • With UPVC double glazed window overlooking the front and Velux window to the rear, radiator and power points
  • Bedroom Five
  • 4.8m x 3.48m
  • With UPVC double glazed window to the front and Velux window to the rear, radiator and power points
  • Shower Room
  • With shower cubicle, low level wc, wash hand basin, radiator and frosted window
  • Outside
  • To the side there is a single garage with driveway in front providing off road parking for 2 vehicles. To the rear there is a paved patio leading onot a lawned south facing garden being fully enclosed by fencing with side access
Introduction text for the mortgage calculator

Mortgage Calculator

Fill in the details below to estimate your monthly repayments:

Approximate monthly repayment:

For more information, please contact Winkworth's mortgage partner, Trinity Financial, on +44 (0)20 7267 9399 and speak to the Trinity team.

Stamp Duty Calculator

Fill in the details below to estimate your stamp duty

The above calculator above is for general interest only and should not be relied upon

6/14
Picture No. 03
Picture No. 09
Picture No. 10
Picture No. 07
Picture No. 08
Picture No. 17
Picture No. 11
Picture No. 12
Picture No. 13
Picture No. 15
Picture No. 16
Picture No. 14
Picture No. 05
Picture No. 06
Picture No. 04

Meet the Team

Our team are here to support and advise our customers when they need it most. We understand that buying, selling, letting or renting can be daunting and often emotionally meaningful. We are there, when it matters, to make the journey as stress-free as possible.

See all team members

Got a question about this property?

This site is protected by reCAPTCHA and the Google Privacy Policy and Terms of Service apply.

More Properties like this

Under Offer

Swallow Hill, Thurlby, Bourne, Lincolnshire, PE10

Offers in excess of £900,000 Freehold

North Road, Gedney Hill, Spalding, Lincolnshire, PE12

£695,000 Freehold

Under Offer

Clarks Close, Morton, Bourne, Lincolnshire, PE10

£695,000 Freehold

New Instruction

Swallow Hill, Thurlby, Bourne, Lincolnshire, PE10

£685,000 Freehold

High Street, Horbling, Sleaford, Lincolnshire, NG34

£675,000 Freehold

Donington Road, Horbling, Sleaford, NG34

£570,000 Freehold

Online Valuations Aren’t Worth The Paper They’re Printed On.

When online valuations don’t give you the whole picture - try Winkworth’s expert service. Get a free property appraisal. Accurate valuations from our local property experts. No obligation to list with Winkworth. Choose a time convenient for you with our online booking system.

Fill in your details and someone will be in touch soon:

You have provisionally booked a valuation for . Please confirm your details below

We don't have date info available for this property, but if you fill in your details below, someone will be in touch to arrange a date soon

Please fill in the required fields below marked with *

This site is protected by reCAPTCHA and the Google Privacy Policy and Terms of Service apply.