Skip to main content

MyWinkworth

Sold

Picture No. 01
Picture No. 13
Picture No. 12
Picture No. 02
Picture No. 03
Picture No. 04
Picture No. 05
Picture No. 07
Picture No. 08
Picture No. 09
Picture No. 10
6/14

Harvey Road, Bournemouth, Dorset, BH5

1 bedroom flat/apartment in Bournemouth

£165,000 Leasehold

  • Bedrooms 1
  • Bathrooms 1
  • Reception rooms 1
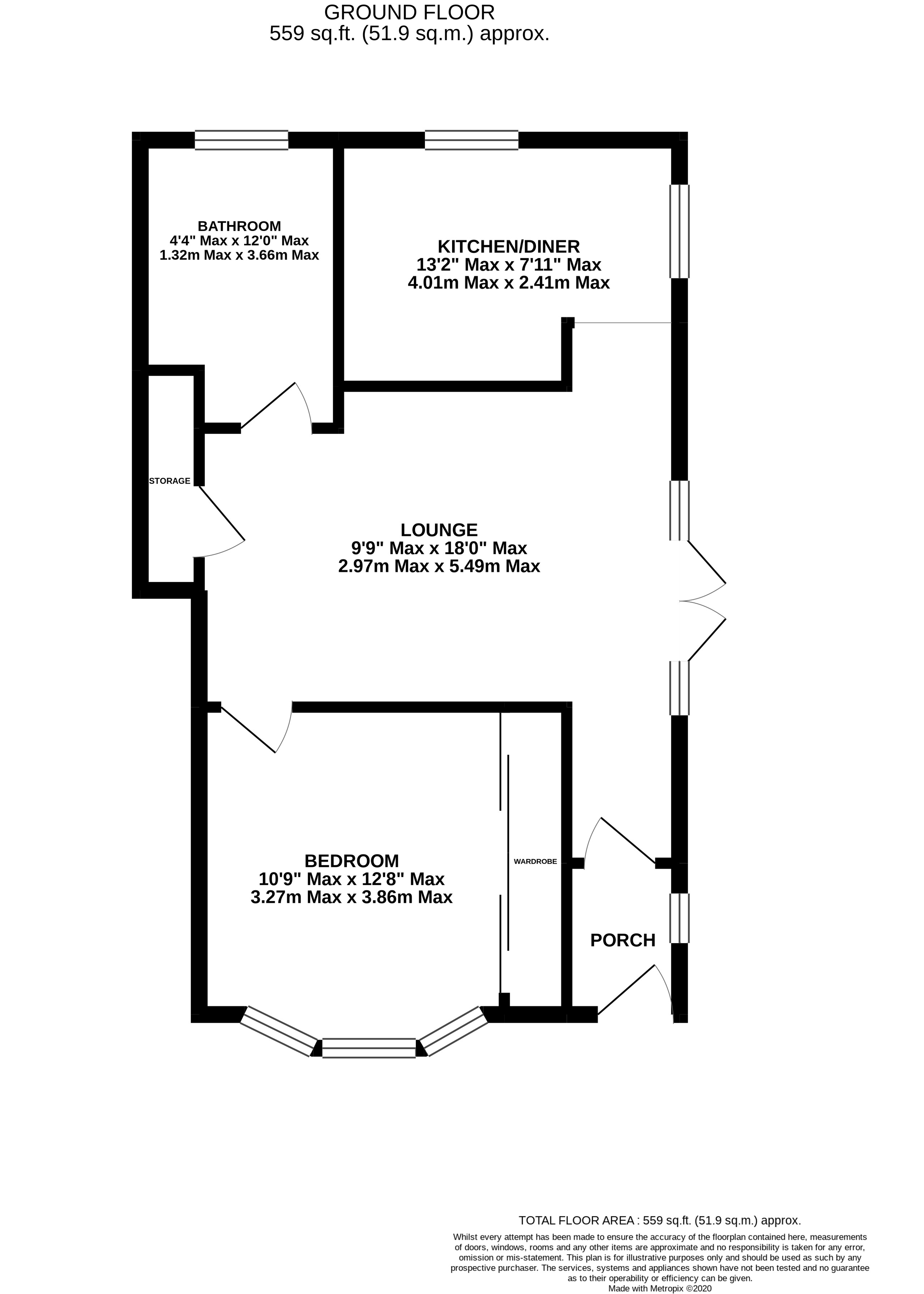
  • Floorplan

PICTURES AND VIDEOS

KEY FEATURES

  • ONE BEDROOM
  • GROUND FLOOR APARTMENT
  • PRIVATE ENTRANCE
  • PRIVATE GARDEN/ PATIO AREA
  • FRONT GARDEN
  • NO FORWARD CHAIN
  • OFF ROAD PARKING
  • CLOSE TO LOCAL SHOPS & AMENITIES
  • HIGH CEILINGS BOASTING CHARACTER

KEY INFORMATION

  • Tenure: Leasehold

Description

This one-bedroom ground floor apartment is a must view!
The property offers lots of character and charm. As you walk through the gates of the property you are welcomed by a generously sized, private, walled front garden with off-road parking.



On entering the property there is a porch area, which offers the perfect space for a cloakroom.

You are then greeted by a fantastic sized living room, which boasts grand high ceilings with French double doors leading out onto a private garden/patio area, creating a light and airy aspect. Off the living room there is an ample sized walk-in cupboard, which can be used for storage, or a small office/study area.

The living area then leads into a separate kitchen/diner which benefits from 2 large windows and a picture window. This space offers wall and base fitted units, a wall mounted combi-boiler, gas hob and electric oven, space and plumbing for a washing machine and room for a large fridge/freezer. There is also an area for a good-sized table and chairs.

The apartment has a superb sized double bedroom, which boasts high ceilings and a large bay window that allows the light to flow through. It also has the advantage of a wall to wall built in wardrobe.

Finally, the bathroom offers a full-sized bath with mixer taps and overhead shower, pedestal wash hand basin, WC and frosted glass window. There is also a small loft area for extra storage.
To the rear of the property there is a private passageway that can be used for storing bicycles, gardening tools and other equipment.
The apartment benefits from Gas Central Heating and Double Glazing throughout.
This property is ideal for first time buyers, as an investment, or a second home and is offered with a long lease and no forward chain.

From Harvey Road it is a 10-minute level walk to the cliff top and beaches and to Southbourne and Boscombe Town Centres.

Location

The property is situated in the extremely popular residential area of Southbourne which is located to the East of Bournemouth. The busy high street hosts a variety of shops ranging from local independent traders to the well-known high street names. Locally, there are superb award-winning beaches with vibrant promenades offering restaurants, bars and all year round walks with stunning views out to the Purbecks and over to Hengistbury Head Southbourne also sits in an excellent school catchment area for all age ranges. There is a main line train station at Bournemouth which provides direct links to Southampton, Southampton Airport and London Waterloo which is approximately 100 miles away. Bournemouth International airport (6 miles) offers a varied schedule of flights to a number of European destinations. There are regular bus services to Bournemouth and the surrounding areas and a train station at Pokesdown for trains to The New Forest, Southampton and London, all within close walking distance.
Introduction text for the mortgage calculator

Mortgage Calculator

Fill in the details below to estimate your monthly repayments:

Approximate monthly repayment:

For more information, please contact Winkworth's mortgage partner, Trinity Financial, on +44 (0)20 7267 9399 and speak to the Trinity team.

Stamp Duty Calculator

Fill in the details below to estimate your stamp duty

The above calculator above is for general interest only and should not be relied upon

6/14
Picture No. 01
Picture No. 13
Picture No. 12
Picture No. 02
Picture No. 03
Picture No. 04
Picture No. 05
Picture No. 07
Picture No. 08
Picture No. 09
Picture No. 10

Meet the Team

Our team at WInkworth Southbourne Estate Agents are here to support and advise our customers when they need it most. We understand that buying, selling, letting or renting can be daunting and often emotionally meaningful. We are there, when it matters, to make the journey as stress-free as possible.

See all team members

Got a question about this property?

This site is protected by reCAPTCHA and the Google Privacy Policy and Terms of Service apply.

More Properties like this

Boscombe Overcliff Drive, Bournemouth, Dorset, BH5

£725,000 Leasehold

Boscombe Overcliff Drive, Bournemouth, Dorset, BH5

Guide Price £650,000 Leasehold

St. Catherines Road, Bournemouth, Dorset, BH6

Guide Price £625,000 Leasehold

Under Offer

Marina Close, Boscombe, Bournemouth, Dorset, BH5

Guide Price £525,000 Share of Freehold

Penrith Road, Bournemouth, BH5

Guide Price £525,000 Share of Freehold

Under Offer

Penrith Road, Bournemouth, Dorset, BH5

Guide Price £475,000 Share of Freehold

Online Valuations Aren’t Worth The Paper They’re Printed On.

When online valuations don’t give you the whole picture - try Winkworth’s expert service. Get a free property appraisal. Accurate valuations from our local property experts. No obligation to list with Winkworth. Choose a time convenient for you with our online booking system.

Fill in your details and someone will be in touch soon:

You have provisionally booked a valuation for . Please confirm your details below

We don't have date info available for this property, but if you fill in your details below, someone will be in touch to arrange a date soon

Please fill in the required fields below marked with *

This site is protected by reCAPTCHA and the Google Privacy Policy and Terms of Service apply.