Skip to main content

MyWinkworth

Sold

Picture No. 09
Picture No. 01
Picture No. 02
Picture No. 03
Picture No. 04
Picture No. 05
Picture No. 06
Picture No. 07
Picture No. 08
6/14

Great Leighs, Bourne, Lincolnshire, PE10

3 bedroom house in Bourne

£220,000 Freehold

  • Bedrooms 3
  • Bathrooms 2
  • Reception rooms 1
  • Floorplan

PICTURES AND VIDEOS

KEY FEATURES

  • Superbly presented three bedroom end of terraced home Elsea Park development
  • Air conditioning
  • Driveway to the side off road parking for two cars
  • Fully enclosed lawned garden
  • EPC Rating B
  • Council Tax Band B

KEY INFORMATION

  • Tenure: Freehold
  • Council Tax Band: B
  • Local Authority: South Kesteven District Council

Description

A superbly presented and much improved three bedroom end of terraced home located on the popular Elsea Park development. The property is immaculate throughout and benefits from, entrance hall, downstairs cloakroom, kitchen/breakfast room, lounge with french doors onto the rear garden, master bedroom with en-suite, two further bedrooms and family bathroom. The property also benefits from, air conditioning, gas central heating to radiators and upvc double glazed windows. Outside there is a block paved driveway to the side providing off road parking for two cars and to the rear a fully enclosed lawned garden with side access. Please call 01778 392807 for more information.

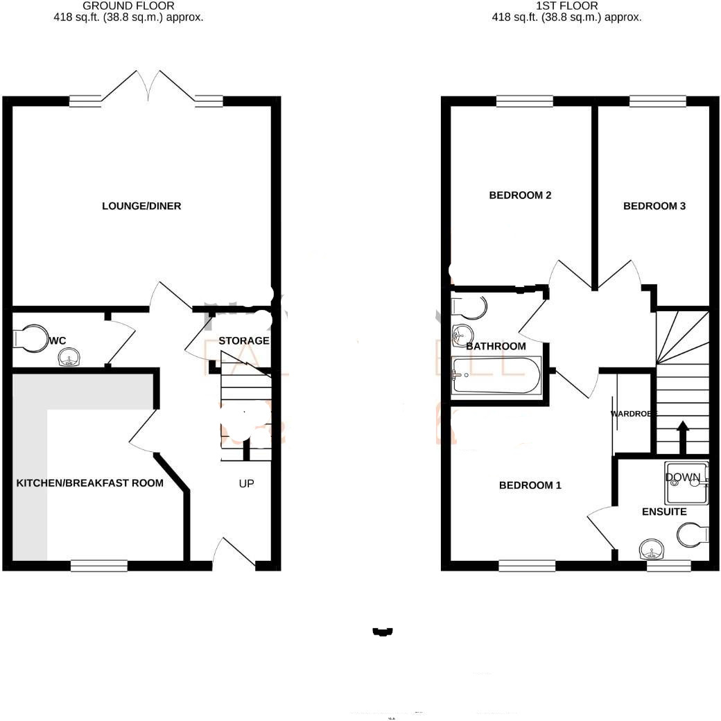
Rooms and Accommodations

  • Entrance Hall
  • With stairs leading to the first floor, radiator, power points and door to.
  • Downstairs Cloakroom
  • 1.85m x 1.04m
  • With low level wc, wash hand basin and radiator.
  • Kitchen/Breakfast Room
  • 3.4m x 3.07m
  • With modern fitted units comprising, sink with cupboard below, excellent range of wall and base units, built in oven and hob with extractor above, integrated fridge freezer, integrated washing machine, tiled flooring, upstands, radiator and upvc double glazed window to the front.
  • Lounge/Diner
  • With fitted tv display and cupboards under, radiator, power points and upvc double glazed french doors to the rear.
  • Firs Floor Landing
  • With door leading to.
  • Bedroom One
  • 3.4m x 3m
  • With upvc double glazed window to the front, air conditioning unit, built in wardrobes, radiator, power points and door leading to.
  • En Suite
  • 1.75m x 1.68m
  • With shower cubicle. low level wc, wash hand basin and radiator.
  • Bedroom Two
  • 3.28m x 8
  • With upvc double glazed window to the rear, radiator and power points.
  • Bedroom Three
  • 3.7m x 2m
  • With upvc double glazed window to the rear, radiator and power points.
  • Bathroom
  • 2.03m x 1.7m
  • With panelled bath, low level wc, wash hand basin, part tiled walls and radiator.
  • Outside
  • To the side there is a block paved driveway providing parking for two cars. The rear garden is fully enclosed by fencing with a paved patio leading to a lawned garden with further patio area to the rear and side access.
Introduction text for the mortgage calculator

Mortgage Calculator

Fill in the details below to estimate your monthly repayments:

Approximate monthly repayment:

For more information, please contact Winkworth's mortgage partner, Trinity Financial, on +44 (0)20 7267 9399 and speak to the Trinity team.

Stamp Duty Calculator

Fill in the details below to estimate your stamp duty

The above calculator above is for general interest only and should not be relied upon

6/14
Picture No. 09
Picture No. 01
Picture No. 02
Picture No. 03
Picture No. 04
Picture No. 05
Picture No. 06
Picture No. 07
Picture No. 08

Meet the Team

Our team are here to support and advise our customers when they need it most. We understand that buying, selling, letting or renting can be daunting and often emotionally meaningful. We are there, when it matters, to make the journey as stress-free as possible.

See all team members

Got a question about this property?

This site is protected by reCAPTCHA and the Google Privacy Policy and Terms of Service apply.

More Properties like this

Under Offer

Swallow Hill, Thurlby, Bourne, Lincolnshire, PE10

Offers in excess of £900,000 Freehold

North Road, Gedney Hill, Spalding, Lincolnshire, PE12

£695,000 Freehold

Under Offer

Clarks Close, Morton, Bourne, Lincolnshire, PE10

£695,000 Freehold

New Instruction

Swallow Hill, Thurlby, Bourne, Lincolnshire, PE10

£685,000 Freehold

High Street, Horbling, Sleaford, Lincolnshire, NG34

£675,000 Freehold

Saxon Way, Bourne, PE10

£550,000 Freehold

Online Valuations Aren’t Worth The Paper They’re Printed On.

When online valuations don’t give you the whole picture - try Winkworth’s expert service. Get a free property appraisal. Accurate valuations from our local property experts. No obligation to list with Winkworth. Choose a time convenient for you with our online booking system.

Fill in your details and someone will be in touch soon:

You have provisionally booked a valuation for . Please confirm your details below

We don't have date info available for this property, but if you fill in your details below, someone will be in touch to arrange a date soon

Please fill in the required fields below marked with *

This site is protected by reCAPTCHA and the Google Privacy Policy and Terms of Service apply.