Skip to main content

MyWinkworth

Sold

Front
Garden
Garden
Conservatory
Kitchen Diner
Kitchen Diner
Sitting Room
Shower Room
Bedroom
Bedroom
Garden
Garden
Rear
Front
6/14

Gravel Hill, Stoke Holy Cross, Norwich, Norfolk, NR14

3 bedroom house in Stoke Holy Cross

Guide Price £300,000 Freehold

  • Bedrooms 3
  • Bathrooms 1
  • Reception rooms 2
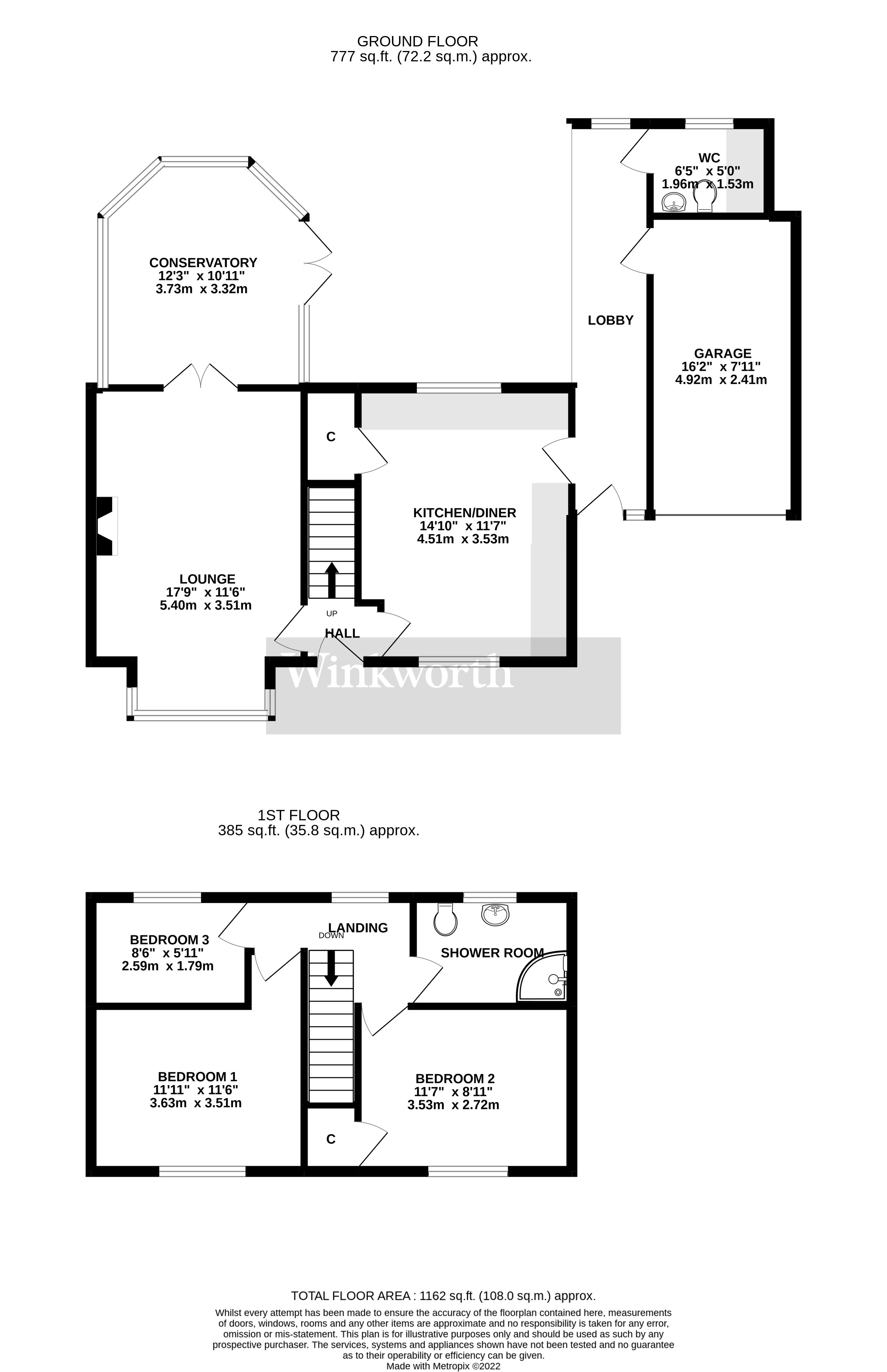
  • Floorplan

PICTURES AND VIDEOS

KEY FEATURES

  • Guide Price £300,000 - £325,000
  • No Onward Chain
  • Must See Non Over Looked Garden
  • Driveway & Garage
  • Lounge Flooded With Natural Light
  • Modern Conservatory
  • Pristine Kitchen Diner
  • Family Bathroom & Additional Ground Floor WC
  • Solar Panels
  • Easy Reach Of Norwich's City Centre & Striking Distance Of Schools & Amenities

KEY INFORMATION

  • Tenure: Freehold

Description

Occupying a prime corner plot position stands this impressive family home. Boasting a larger than average rear garden and offering flexible living space certainly makes this sizeable residence stand out for all the right reasons. On arrival you are greeted via a driveway which provides off road parking and leads to a 16ft garage equipped with power and light. The modern kitchen offers ample dining space along with a dual aspect outlook. The lounge and conservatory can seamlessly flow as one creating an unrivalled amount of living space. All three bedrooms are found off the landing along with a shower room. An external cloakroom is found off the lobby along with an independent door to the garage. The private garden is full of colour and offers various seating areas, ideal for the summer months ahead. Conveniently positioned close to a reputable village school, open green spaces and Norwich's city centre this chain free family home residence is sure to be popular! One not to miss.
Introduction text for the mortgage calculator

Mortgage Calculator

Fill in the details below to estimate your monthly repayments:

Approximate monthly repayment:

For more information, please contact Winkworth's mortgage partner, Trinity Financial, on +44 (0)20 7267 9399 and speak to the Trinity team.

Stamp Duty Calculator

Fill in the details below to estimate your stamp duty

The above calculator above is for general interest only and should not be relied upon

6/14
Front
Garden
Garden
Conservatory
Kitchen Diner
Kitchen Diner
Sitting Room
Shower Room
Bedroom
Bedroom
Garden
Garden
Rear
Front

Meet the Team

As the area's newest independent agent we bring with us 30 years of experience, and a love for what we do and the local community around us. Understanding the individual needs of our clients is paramount to who we are. Our newly built office is perfectly positioned within the Budgens complex. We have a modern and vibrant office that offers a warm welcome to our customers as well as providing the perfect setting to showcase our clients' homes. We would love to hear more about your plans to move so please pop in to the office for a coffee when passing. We look forward to meeting you.

See all team members

Got a question about this property?

This site is protected by reCAPTCHA and the Google Privacy Policy and Terms of Service apply.

More Properties like this

Main Road, Filby, Great Yarmouth, Norfolk, NR29

Offers in excess of £2,750,000 Freehold

The Court, Framingham Earl Road, Yelverton, Norwich, NR14

Guide Price £950,000 Freehold

New Instruction

Yarmouth Road, Ditchingham, Bungay, NR35

Guide Price £900,000 Freehold

Under Offer

Cranes Road, Hethel, Norwich, Norfolk, NR14

Guide Price £850,000 Freehold

Brooke Road, Seething, Norwich, Norfolk, NR15

Guide Price £800,000 Freehold

Rectory Lane, Poringland, Norwich, Norfolk, NR14

OIRO £775,000 Freehold

Online Valuations Aren’t Worth The Paper They’re Printed On.

When online valuations don’t give you the whole picture - try Winkworth’s expert service. Get a free property appraisal. Accurate valuations from our local property experts. No obligation to list with Winkworth. Choose a time convenient for you with our online booking system.

Fill in your details and someone will be in touch soon:

You have provisionally booked a valuation for . Please confirm your details below

We don't have date info available for this property, but if you fill in your details below, someone will be in touch to arrange a date soon

Please fill in the required fields below marked with *

This site is protected by reCAPTCHA and the Google Privacy Policy and Terms of Service apply.