Skip to main content

MyWinkworth

Sold

Picture No. 01
Picture No. 08
Picture No. 03
Picture No. 04
Picture No. 16
Picture No. 10
Picture No. 11
Picture No. 13
Picture No. 18
Picture No. 21
Picture No. 14
Picture No. 06
Picture No. 07
Picture No. 05
Picture No. 09
Picture No. 12
Picture No. 15
Picture No. 17
Picture No. 19
Picture No. 02
Picture No. 20
Picture No. 22
Picture No. 24
6/14

Grand Parade, Leigh-on-Sea, SS9

2 bedroom flat/apartment in Leigh-on-Sea

Offers in excess of £425,000 Leasehold

  • Bedrooms 2
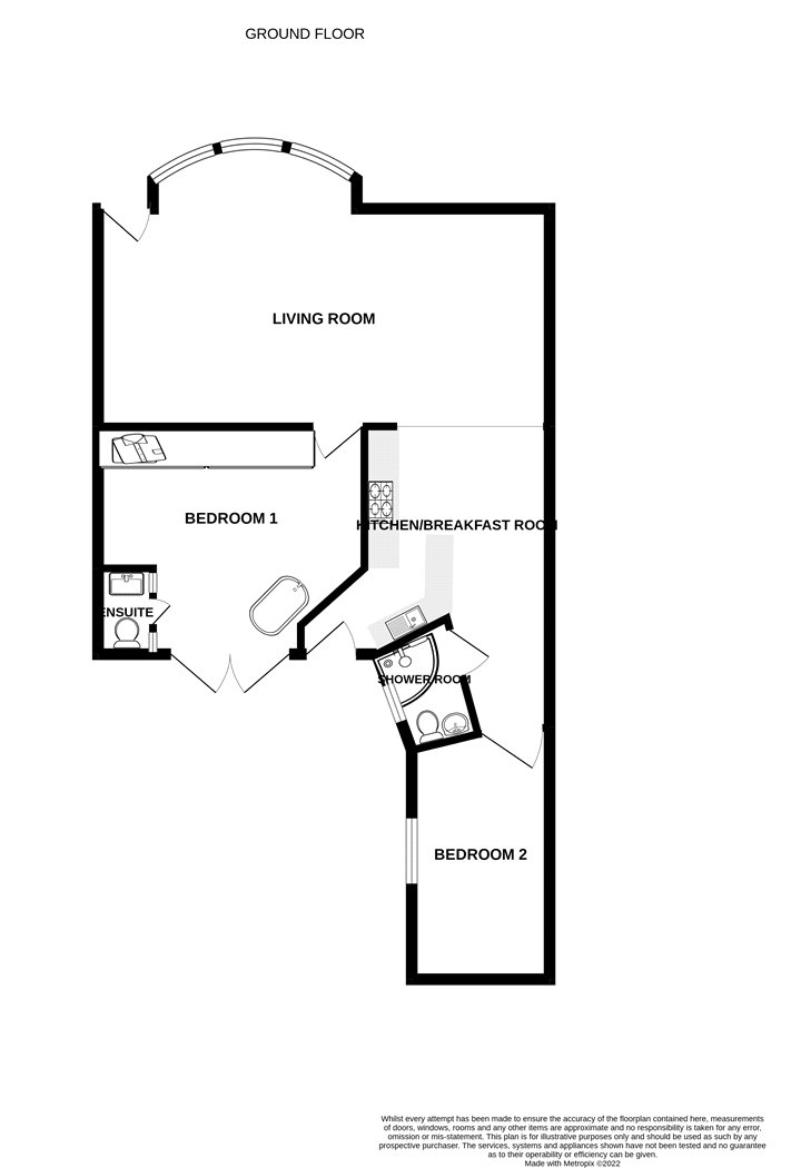
  • Floorplan

PICTURES AND VIDEOS

KEY FEATURES

  • Two Bedroom
  • Lower Ground Floor Apartment
  • Garage
  • Studio 30' x 20
  • Own Garden
  • Open Plan Lounge/Kitchen
  • En-suite
  • Shower Room
  • Home Studio

KEY INFORMATION

  • Tenure: Leasehold

Description

Winkworth are delighted to bring to the market this attractive and spacious lower ground floor apartment. The property has two good size bedrooms a large open plan lounge/kitchen, shower room and en-suite to main bedroom. To the rear is a courtyard garden, garage and a separate home studio


Situated on a prominent position within Grand Parade in Leigh-on-Sea, this seafront home is just a short stroll from all local amenities which includes the nearby seafront and mainline railway station - serving London Fenchurch Street for commuters. Also, within walking distance is Leigh's fashionable Broadway and its array of bars, cafés, restaurants and popular boutiques.


Entrance door to: -

Lounge Area: - 23’5 x 20’15 into bay
Spacious open plan living room area with raised dining area and a large bay window to front. Coving to ceiling, ornate panelling to walls and radiator.
Kitchen Area: - 17’5 x 11’23
A modern fitted kitchen comprising of range of working surfaces with base units below and matching eyelevel units above, inset sink unit with tiled splash backs, inset hob with extractor hood oven and oven to side. Breakfast bar/island, space for further kitchen appliances. Coving to ceilings with inset lighting and tiling to floor. Door to rear.
Bedroom One: - 11’8 x 9’32
Double glazed French style doors to rear opening out onto the rear court yard garden. Raised area with roll top bath. Ornate panelling to walls, coving to ceiling and radiator. Range of fitted wardrobes to one wall.
En-suite: -
Low level wc and vanity unit with wash hand basin. Ornate panelling to walls.
Bedroom Two: - 13’81 x 6’61
Double glazed windows to side, coving to ceiling and radiator
Shower Room: -
Double glazed window to side. Modern suite comprising of large shower cubical with glass screen, low level wc and wash hand basin.

Exterior: -

Private walled courtyard with gate to rear garden and home studio.

Home Studio: - 30’8 x 20’3
A large and spacious private building which would be ideal for a gym, game/cinema room or work/hobby space.

Garage and parking to rear
Introduction text for the mortgage calculator

Mortgage Calculator

Fill in the details below to estimate your monthly repayments:

Approximate monthly repayment:

For more information, please contact Winkworth's mortgage partner, Trinity Financial, on +44 (0)20 7267 9399 and speak to the Trinity team.

Stamp Duty Calculator

Fill in the details below to estimate your stamp duty

The above calculator above is for general interest only and should not be relied upon

6/14
Picture No. 01
Picture No. 08
Picture No. 03
Picture No. 04
Picture No. 16
Picture No. 10
Picture No. 11
Picture No. 13
Picture No. 18
Picture No. 21
Picture No. 14
Picture No. 06
Picture No. 07
Picture No. 05
Picture No. 09
Picture No. 12
Picture No. 15
Picture No. 17
Picture No. 19
Picture No. 02
Picture No. 20
Picture No. 22
Picture No. 24

Meet the Team

Our team at Winkworth Leigh-on-Sea Estate Agents are here to support and advise our customers when they need it most. We understand that buying, selling, letting or renting can be daunting and often emotionally meaningful. We are there, when it matters, to make the journey as stress-free as possible.

See all team members

Got a question about this property?

This site is protected by reCAPTCHA and the Google Privacy Policy and Terms of Service apply.

More Properties like this

Video Tour

Grand Parade, Leigh-on-Sea, Essex, SS9

£1,750,000 Freehold

Video Tour

Grand Parade, Leigh-on-Sea, Essex, SS9

£1,650,000 Freehold

Video Tour

Grand Parade, Leigh-on-Sea, Essex, SS9

£1,350,000 Freehold

Video Tour

Grand Parade, Leigh-on-Sea, Essex, SS9

£1,350,000 Freehold

Video Tour

Broadway, Leigh-on-Sea, Essex, SS9

£550,000 Leasehold

London Road, Leigh On Sea, SS9

Guide Price £525,000 Share of Freehold

Online Valuations Aren’t Worth The Paper They’re Printed On.

When online valuations don’t give you the whole picture - try Winkworth’s expert service. Get a free property appraisal. Accurate valuations from our local property experts. No obligation to list with Winkworth. Choose a time convenient for you with our online booking system.

Fill in your details and someone will be in touch soon:

You have provisionally booked a valuation for . Please confirm your details below

We don't have date info available for this property, but if you fill in your details below, someone will be in touch to arrange a date soon

Please fill in the required fields below marked with *

This site is protected by reCAPTCHA and the Google Privacy Policy and Terms of Service apply.