Skip to main content

MyWinkworth

Sold

Picture No. 24
Picture No. 01
Picture No. 15
Picture No. 13
Picture No. 04
Picture No. 12
Picture No. 02
Picture No. 07
Picture No. 03
Picture No. 10
Picture No. 17
Picture No. 08
Picture No. 09
Picture No. 11
Picture No. 16
Picture No. 18
Picture No. 05
Picture No. 06
Picture No. 14
Picture No. 25
6/14

Gloucester Road, Bournemouth, BH7

3 bedroom house in Bournemouth

Guide Price £375,000 Freehold

  • Bedrooms 3
  • Bathrooms 1
  • Reception rooms 2
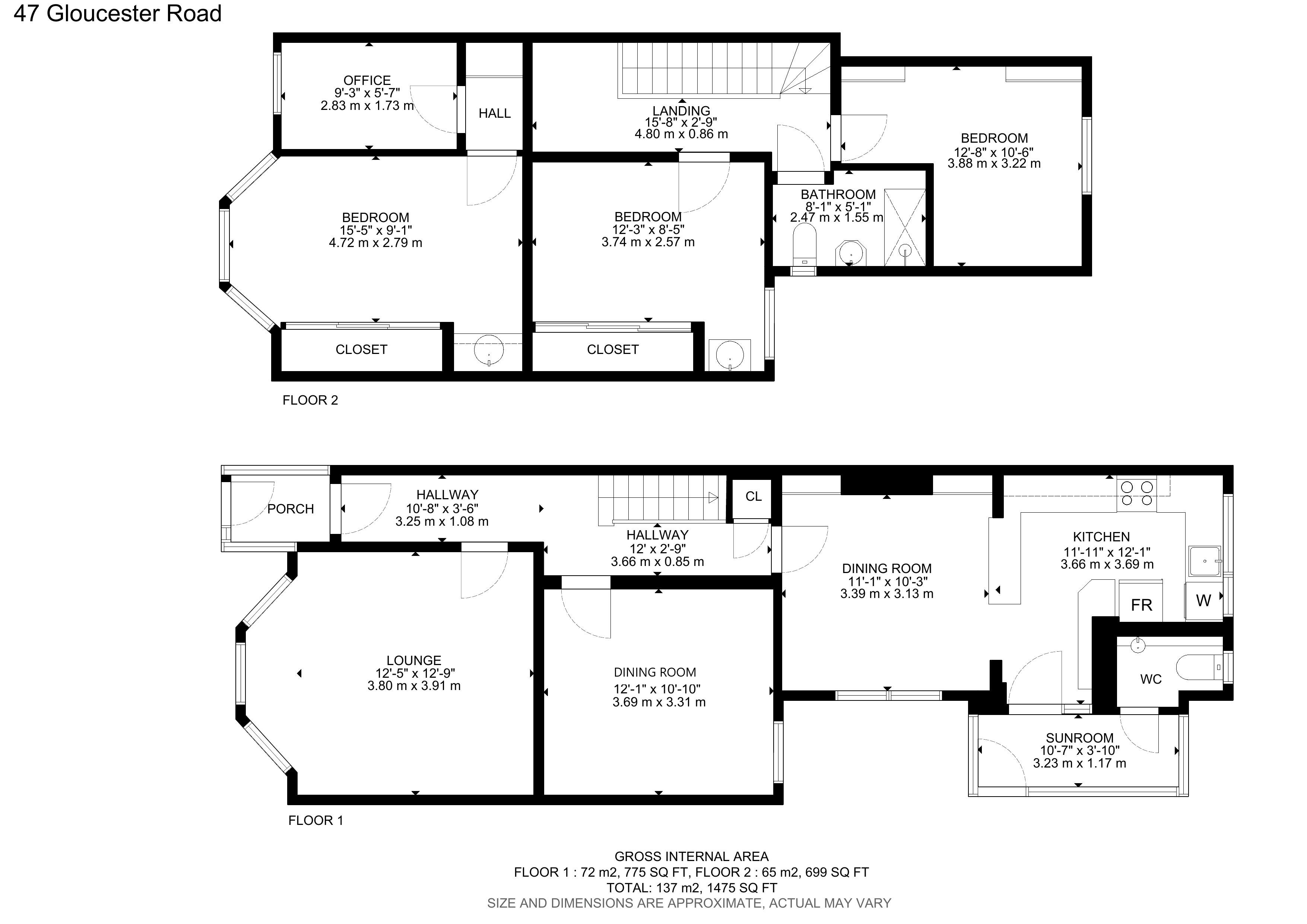
  • Floorplan

PICTURES AND VIDEOS

KEY FEATURES

  • Marketed solely by Winkworth Southbourne
  • Three / Four Bedrooms
  • Shower Room
  • Two Reception Rooms
  • Large Kitchen / Dining Room
  • South-west Facing Rear Garden
  • Garage
  • Downstairs WC
  • Utility Room
  • Corner Plot

KEY INFORMATION

  • Tenure: Freehold
  • Council Tax Band: C

Description

GUIDE PRICE - £375,000 - £400,000

Winkworth Southbourne are delighted to present, this spacious three bedroom, semi-detached family home situated in a popular residential location, within walking distance of Pokesdown high street and Kings Park playing fields and recreation area.

This bay fronted home has heaps of potential to truly create a wonderful family home.
With high ceilings throughout, the ground floor of the property comprises of an inviting entrance hallway, a spacious lounge with a large bay window, a separate dining room / second reception room and a spacious kitchen / dining room with ample storage and worktop space. A doorway leads to an outhouse area with a separate downstairs WC and access to the rear garden.
On the first floor, you will find three double bedrooms, the largest to the front has fitted wardrobes and a large bay window, a second generous double bedroom also benefits form fitted wardrobes and a third to the rear of the property, with large storage cupboards. A fourth bedroom to the front is a single room currently utilised a s a home office. The family shower room comprises of a walk in shower, WC and hand-wash basin.
Externally this property benefits from a low maintenance, south-west facing, rear garden, mainly laid with lawn and surrounded by an array of mature shrubbery. A detached garage is located to the far end with access from the road adjacent.

Location

Pokesdown is a suburb of Bournemouth and neighbours both Boscombe and Southbourne. Pokesdown High Street offers a varied shopping experience with a number of Antiques shops, Vintage emporiums, Bakery’s, and cafes. The area benefits from being near several local attractions including the award-winning blue flag sandy beaches with a level walk promenade extending from Hengistbury Head through to Sandbanks.
A local bus service provides links to Bournemouth and Poole with a different shopping experience together with a number of restaurants and bars providing a vibrant nightlife. A local train station provides direct links to Southampton, Southampton Airport and London which is approximately 100 miles away.
Bournemouth International airport (6 miles) offers a varied schedule of flights to a number of European destinations.

DISCLAIMER:
Winkworth wishes to inform prospective buyers that these particulars are a guide and act as information only. All our details are given in good faith and believed to be correct at the time of issue but they don't form part of an offer or contract. No Winkworth employee has authority to make or give any representation or warranty in relation to this property. All fixtures and fittings, whether fitted or not are deemed removable by the vendor unless stated otherwise and room sizes are measured between internal wall surfaces, including furnishings.
Introduction text for the mortgage calculator

Mortgage Calculator

Fill in the details below to estimate your monthly repayments:

Approximate monthly repayment:

For more information, please contact Winkworth's mortgage partner, Trinity Financial, on +44 (0)20 7267 9399 and speak to the Trinity team.

Stamp Duty Calculator

Fill in the details below to estimate your stamp duty

The above calculator above is for general interest only and should not be relied upon

6/14
Picture No. 24
Picture No. 01
Picture No. 15
Picture No. 13
Picture No. 04
Picture No. 12
Picture No. 02
Picture No. 07
Picture No. 03
Picture No. 10
Picture No. 17
Picture No. 08
Picture No. 09
Picture No. 11
Picture No. 16
Picture No. 18
Picture No. 05
Picture No. 06
Picture No. 14
Picture No. 25

Meet the Team

Our team at WInkworth Southbourne Estate Agents are here to support and advise our customers when they need it most. We understand that buying, selling, letting or renting can be daunting and often emotionally meaningful. We are there, when it matters, to make the journey as stress-free as possible.

See all team members

Got a question about this property?

This site is protected by reCAPTCHA and the Google Privacy Policy and Terms of Service apply.

More Properties like this

Under Offer

Percy Road, Bournemouth, Dorset, BH5

£1,750,000 Freehold

Boscombe Cliff Road, Bournemouth, Dorset, BH5

Guide Price £1,500,000 Freehold

Under Offer

Carbery Avenue, Bournemouth, BH6

£900,000 Freehold

Beaufort Road, Bournemouth, Dorset, BH6

Guide Price £850,000 Freehold

Heatherlea Road, Bournemouth, Dorset, BH6

Guide Price £800,000 Freehold

Guildhill Road, Bournemouth, BH6

Guide Price £800,000 Freehold

Online Valuations Aren’t Worth The Paper They’re Printed On.

When online valuations don’t give you the whole picture - try Winkworth’s expert service. Get a free property appraisal. Accurate valuations from our local property experts. No obligation to list with Winkworth. Choose a time convenient for you with our online booking system.

Fill in your details and someone will be in touch soon:

You have provisionally booked a valuation for . Please confirm your details below

We don't have date info available for this property, but if you fill in your details below, someone will be in touch to arrange a date soon

Please fill in the required fields below marked with *

This site is protected by reCAPTCHA and the Google Privacy Policy and Terms of Service apply.