Skip to main content

MyWinkworth

Sold

Picture No. 03
Picture No. 13
Picture No. 11
Picture No. 12
Picture No. 06
Picture No. 04
Picture No. 07
Picture No. 02
Picture No. 05
Picture No. 08
Picture No. 09
Picture No. 10
6/14

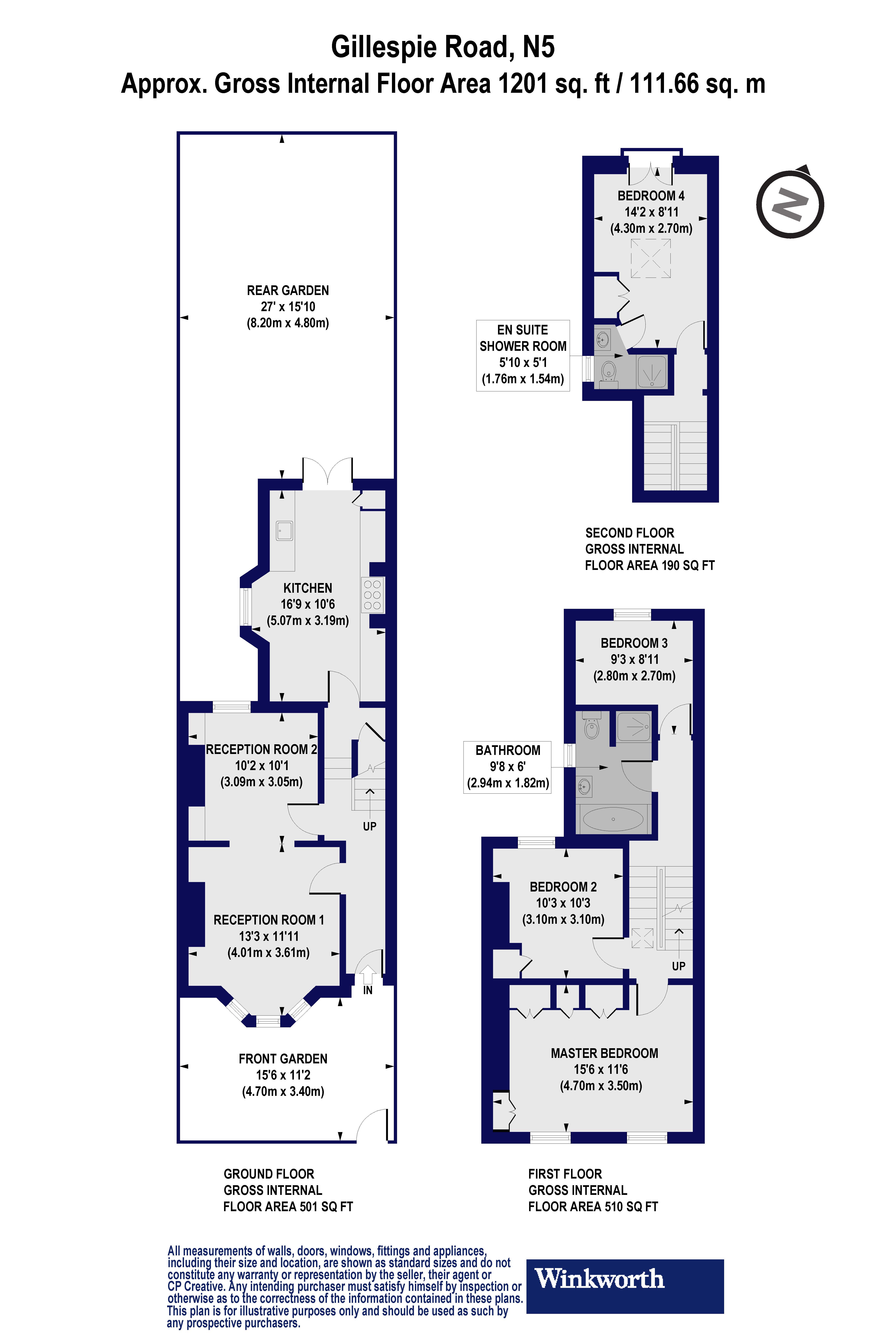
Gillespie Road, London, N5

4 bedroom house in London

£1,300,000 Freehold

  • Bedrooms 4
  • Bathrooms 2
  • Reception rooms 2
  • Floorplan

PICTURES AND VIDEOS

KEY FEATURES

  • New bathroom & shower room in 2018
  • New roof in 2020
  • New combi boiler plus Nest electronic thermostat fitted in 2022
  • Virgin fibre broadband connected
  • Working Banham alarm, which has been maintained annually
  • Resident permit parking available

KEY INFORMATION

  • Tenure: Freehold
  • Council Tax Band: E
  • Local Authority: Islington Council

Description

This stunning four-bedroom freehold house on a popular road in Highbury, N5, exceeds 1,200 sqft and is presented in excellent condition. The reception room features fireplaces and coving, and the kitchen is positioned to accommodate a generous dining table. Subject to planning permission, the side return offers additional space which could be developed for any growing family, whilst the landscaped rear garden includes decking and low-maintenance artificial turf. Upstairs there are four good sized bedrooms, with the master stretching the full width of the house, and a fourth double bedroom with its own private en-suite in the raised pod extension. The property also includes a modern family bathroom and useful cellar.

The house falls within catchment for Gillespie School as well as being within reach of a number of other brilliant local primary schools. The property is perfectly positioned for an array of local amenities including independent shops, restaurants and coffee shops as well as being in easy reach of three local parks and Gillespie Nature Reserve. Upper Street is only a short distance away and transport links are some of the best around with Arsenal station providing the Piccadilly line and Finsbury Park offering overground services (including the Thameslink network serving the City and Gatwick Airport) alongside direct links to Moorgate as well as underground services on the Victoria line. Numerous bus routes offer effortless transport to the City and West End whilst international links are facilitated from St Pancras.
Introduction text for the mortgage calculator

Mortgage Calculator

Fill in the details below to estimate your monthly repayments:

Approximate monthly repayment:

For more information, please contact Winkworth's mortgage partner, Trinity Financial, on +44 (0)20 7267 9399 and speak to the Trinity team.

Stamp Duty Calculator

Fill in the details below to estimate your stamp duty

The above calculator above is for general interest only and should not be relied upon

6/14
Picture No. 03
Picture No. 13
Picture No. 11
Picture No. 12
Picture No. 06
Picture No. 04
Picture No. 07
Picture No. 02
Picture No. 05
Picture No. 08
Picture No. 09
Picture No. 10

Meet the Team

From our office on Highbury Park, we pride ourselves on our unrivalled local knowledge. Many of the team here at Winkworth Highbury Estate Agents live locally and whether it's sales, lettings or property management, we're always striving to provide an unparalleled service and tailor it to your exacting needs.

See all team members

Got a question about this property?

This site is protected by reCAPTCHA and the Google Privacy Policy and Terms of Service apply.

More Properties like this

Video Tour

Wilberforce Road, London, N4

£1,990,000 Freehold

Under Offer

Romilly Road, London, N4

£1,850,000 Freehold

Ambler Road, London, N4

Offers in excess of £1,800,000 Freehold

Under Offer

Herrick Road, London, N5

£1,715,000 Freehold

Under Offer

Plimsoll Road, London, N5

Offers in excess of £1,600,000 Freehold

Ambler Road, London, N4

£1,550,000 Freehold

Online Valuations Aren’t Worth The Paper They’re Printed On.

When online valuations don’t give you the whole picture - try Winkworth’s expert service. Get a free property appraisal. Accurate valuations from our local property experts. No obligation to list with Winkworth. Choose a time convenient for you with our online booking system.

Fill in your details and someone will be in touch soon:

You have provisionally booked a valuation for . Please confirm your details below

We don't have date info available for this property, but if you fill in your details below, someone will be in touch to arrange a date soon

Please fill in the required fields below marked with *

This site is protected by reCAPTCHA and the Google Privacy Policy and Terms of Service apply.