Skip to main content

MyWinkworth

Sold

Picture No. 06
Picture No. 11
Picture No. 04
Picture No. 13
Picture No. 09
Picture No. 15
Picture No. 16
Picture No. 14
Picture No. 10
Picture No. 08
6/14

Elder Close, Winchester, Hampshire, SO22

3 bedroom house in Winchester

Guide Price £360,000 Freehold

  • Bedrooms 3
  • Bathrooms 1
  • Reception rooms 1
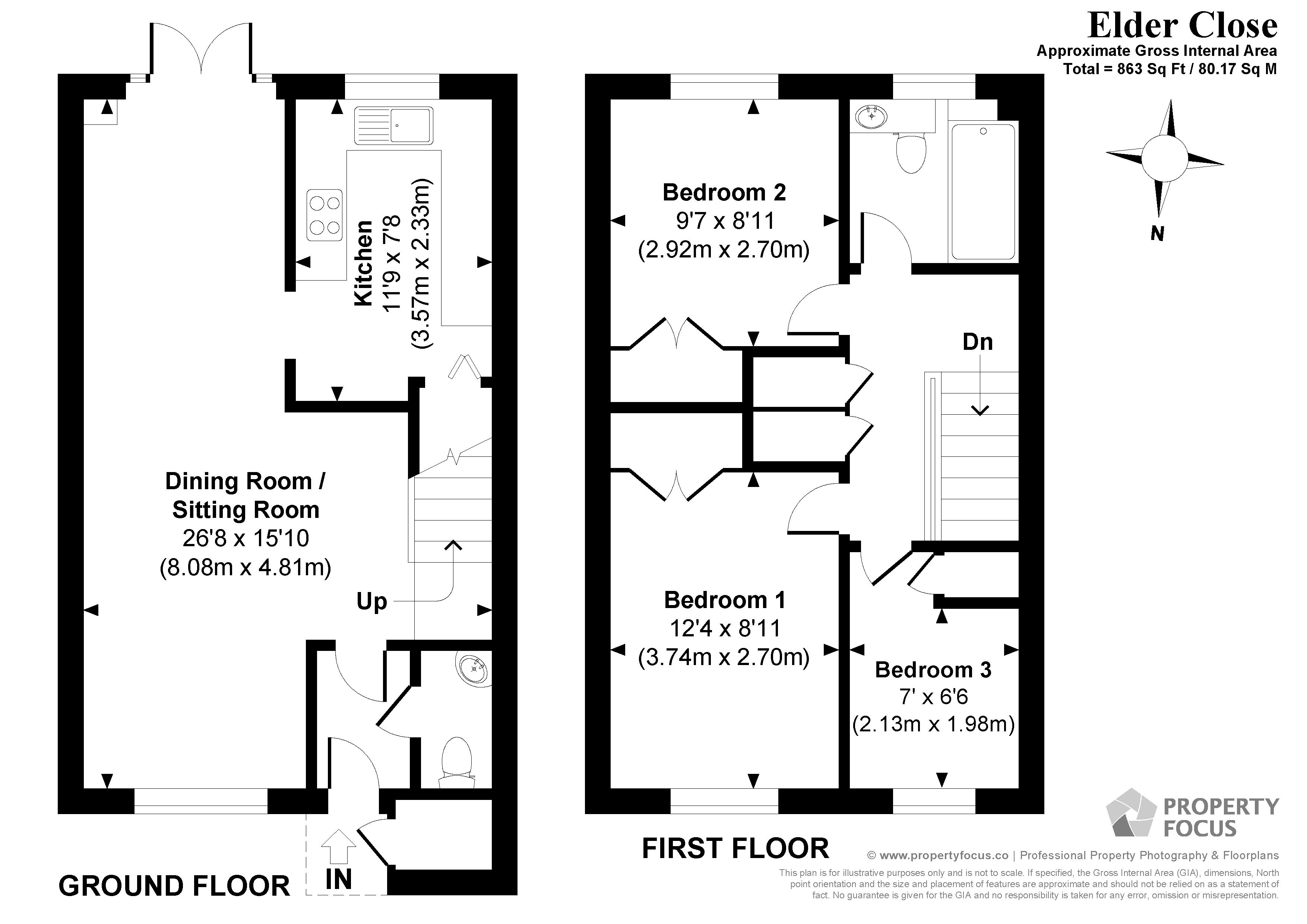
  • Floorplan

PICTURES AND VIDEOS

KEY FEATURES

  • No Forward Chain
  • Three Bedrooms
  • Open Plan Sitting/Dining Room
  • Bathroom
  • Downstairs WC
  • Kitchen
  • Enclosed Garden
  • Garage in Nearby Block
  • Close to Local Amenities
  • Catchment Area for Oliver's Battery Primary and Kings Secondary Schools

KEY INFORMATION

  • Tenure: Freehold
  • Council Tax Band: C
  • Local Authority: Winchester City Council

Description

* No Forward Chain * In Need of Modernisation * Three Bedrooms * Open Plan Sitting/Dining Room * Bathroom * Downstairs WC * Kitchen * Enclosed Garden * Garage in Nearby Block * Catchment Area for Oliver's Battery Primary and Kings Secondary Schools *

Offered with no onward chain, this three-bedroom terraced house is situated in the popular Badger Farm area, close to local amenities and in the catchment for Kings' School. The property could benefit from some updating, providing an ideal opportunity to create the perfect family home.

The house is entered via an outer, covered porch, giving access to a bin store to the right. From here the front door leads through to the entrance hall and onwards to the generous open-plan sitting/dining room. This double-aspect room is incredibly light with a large window at one end and French doors onto the garden at the other. The kitchen is well-appointed with units providing ample storage and plenty of space for appliances. A downstairs WC completes the accommodation on this level.

Stairs rise to the first floor where the landing gives access to two double bedrooms and a further single bedroom, all of which benefit from built-in storage. All bedrooms are served by the family bathroom with bath and shower over and there is further storage along the landing.

Outside to the front of the property is an open plan garden. The rear garden is mainly laid to lawn with a decked area immediately adjacent to the property and a shingled path leading to a gate, giving rear access to the property. The garage is located in a nearby block and there is on-street parking on Elder Close.

Location

Elder Close is conveniently located in the popular Badger Farm area of Winchester with easy access to the M3. Sainsbury's superstore is close by and there are excellent bus services into the centre of Winchester with its railway station (links to London Waterloo in approx. 55 minutes), high street shops, boutiques, library, coffee shops, public houses, restaurants, theatre, cinema, museums and, of course, the City's historic cathedral. In the catchment for Oliver’s Battery primary school and Kings' secondary school.
Introduction text for the mortgage calculator

Mortgage Calculator

Fill in the details below to estimate your monthly repayments:

Approximate monthly repayment:

For more information, please contact Winkworth's mortgage partner, Trinity Financial, on +44 (0)20 7267 9399 and speak to the Trinity team.

Stamp Duty Calculator

Fill in the details below to estimate your stamp duty

The above calculator above is for general interest only and should not be relied upon

6/14
Picture No. 06
Picture No. 11
Picture No. 04
Picture No. 13
Picture No. 09
Picture No. 15
Picture No. 16
Picture No. 14
Picture No. 10
Picture No. 08

Meet the Team

Our team at Winkworth Winchester Estate Agents are here to support and advise our customers when they need it most. We understand that buying, selling, letting or renting can be daunting and often emotionally meaningful. We are there, when it matters, to make the journey as stress-free as possible.

See all team members

Got a question about this property?

This site is protected by reCAPTCHA and the Google Privacy Policy and Terms of Service apply.

More Properties like this

Under Offer

Blue Ball Hill, Winchester, Hampshire, SO23

Guide Price £1,995,000 Freehold

Under Offer

Field Way, Compton, Winchester, Hampshire, SO21

Guide Price £1,750,000 Freehold

Under Offer

Stockers Avenue, Winchester, Hampshire, SO22

Guide Price £1,395,000 Freehold

Under Offer

Harestock Road, Winchester, Hampshire, SO22

Guide Price £1,385,000

Under Offer

Kynegils Road, Winchester, Hampshire, SO22

Guide Price £1,350,000 Freehold

The Avenue, Twyford, Winchester, Hampshire, SO21

Guide Price £1,350,000 Freehold

Online Valuations Aren’t Worth The Paper They’re Printed On.

When online valuations don’t give you the whole picture - try Winkworth’s expert service. Get a free property appraisal. Accurate valuations from our local property experts. No obligation to list with Winkworth. Choose a time convenient for you with our online booking system.

Fill in your details and someone will be in touch soon:

You have provisionally booked a valuation for . Please confirm your details below

We don't have date info available for this property, but if you fill in your details below, someone will be in touch to arrange a date soon

Please fill in the required fields below marked with *

This site is protected by reCAPTCHA and the Google Privacy Policy and Terms of Service apply.