Skip to main content

MyWinkworth

Sold

Picture No. 23
Picture No. 22
Picture No. 07
Picture No. 08
Picture No. 09
Picture No. 10
Picture No. 13
Picture No. 12
Picture No. 11
Picture No. 26
Picture No. 14
Picture No. 15
Picture No. 16
Picture No. 17
Picture No. 18
Picture No. 19
Picture No. 20
Picture No. 21
Picture No. 25
Picture No. 24
6/14

Duckett Road, London, N4

4 bedroom house

Guide Price £1,000,000 Freehold

  • Bedrooms 4
  • Bathrooms 2
  • Reception rooms 2
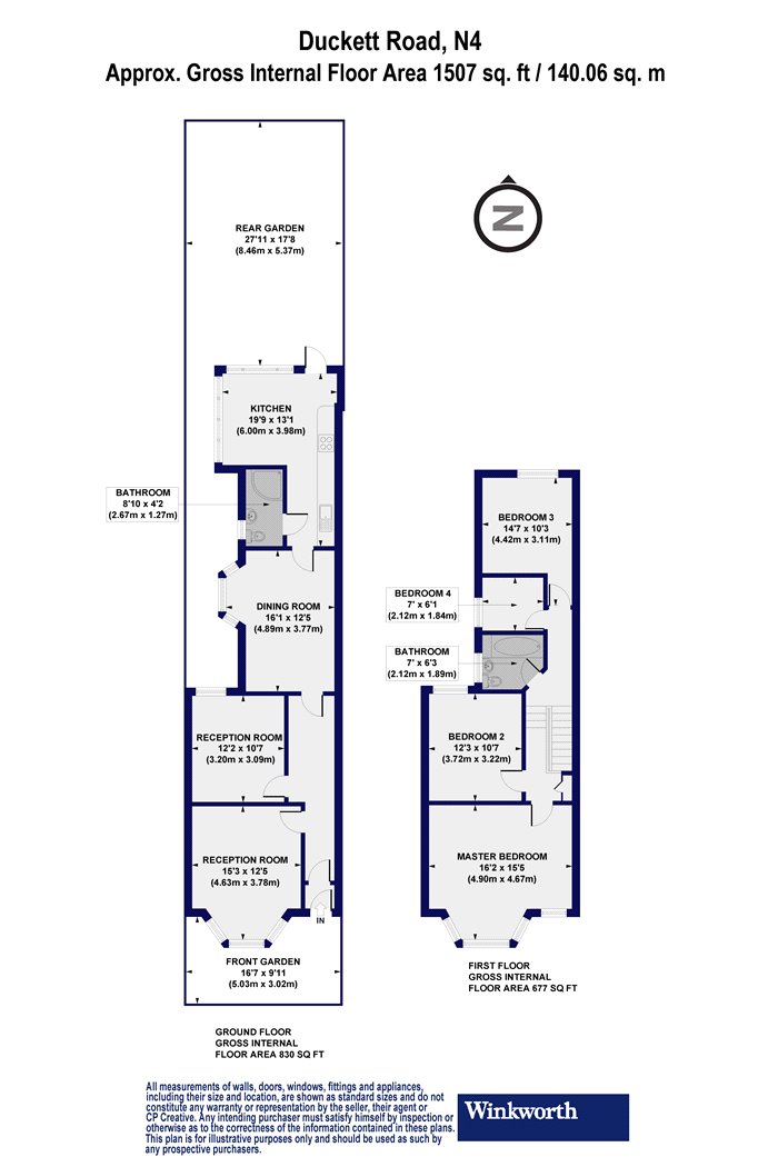
  • Floorplan

PICTURES AND VIDEOS

KEY FEATURES

  • Three / Four Bedrooms
  • Two Reception Rooms
  • Dining Room
  • Modern Kitchen
  • Guest Bathroom ( Ground Floor)
  • Family Bathroom ( First Floor)
  • Private Garden
  • Close To Transport Links and Parks
  • Close To Green Lanes

KEY INFORMATION

  • Tenure: Freehold

Description

A well presented Three / Four bedroom Victorian house located on The Harringay Ladder.

Sole Agent

This well-proportioned home occupies 1,507sq ft (approx.) of flexible living space and boasts high ceilings throughout as well as a landscaped rear garden.

Accommodation comprises: two reception rooms, large dining room and a generous fitted kitchen which opens up on to the private garden, the ground floor also includes a guest bathroom.
The first floor occupies three double bedrooms and an office room which could be used as a bedroom if required.
The house offers scope to extend further by way of adding a side return to the kitchen on the ground floor. (subject to all the usual consents)

Well located on Duckett Road, a sought after Harringay Ladder street within close access to a range of local amenities and facilities along Green Lanes and within easy reach of both Stroud Green Road and Crouch End Broadway.

Local transport links includes Turnpike Lane Underground Station (Piccadilly Line Zone 3), Manor House Underground Station (Piccadilly Line Zone 2), Harringay Rail Station (to Kings Cross or Moorgate in less than 20 minutes), London Overground from Harringay Green Lanes.

Awaiting EPC

Please contact the Sales department at Winkworth Harringay office to arrange an appointment to view 020 8800 5151 - [email protected]

Winkworth.co.uk

Your local independently owned property agency with a network of 60 London offices.

Follow us on Instagram - @winkworthharringay

Est 1835
Introduction text for the mortgage calculator

Mortgage Calculator

Fill in the details below to estimate your monthly repayments:

Approximate monthly repayment:

For more information, please contact Winkworth's mortgage partner, Trinity Financial, on +44 (0)20 7267 9399 and speak to the Trinity team.

Stamp Duty Calculator

Fill in the details below to estimate your stamp duty

The above calculator above is for general interest only and should not be relied upon

6/14
Picture No. 23
Picture No. 22
Picture No. 07
Picture No. 08
Picture No. 09
Picture No. 10
Picture No. 13
Picture No. 12
Picture No. 11
Picture No. 26
Picture No. 14
Picture No. 15
Picture No. 16
Picture No. 17
Picture No. 18
Picture No. 19
Picture No. 20
Picture No. 21
Picture No. 25
Picture No. 24

Meet the Team

At Winkworth Harringay Estate Agents, we have a comprehensive team of knowledgeable and personable property experts who are excited about the local area. So whether you're buying, selling, renting or letting or simply need some advice, pop into our office on Green Lanes for the experience and the local knowledge you need.

See all team members

Got a question about this property?

This site is protected by reCAPTCHA and the Google Privacy Policy and Terms of Service apply.

More Properties like this

New Instruction

Warham Road, London, N4

Guide Price £1,275,000 Freehold

Under Offer

Atterbury Road, Finsbury Park, N4

Guide Price £1,275,000 Freehold

Under Offer

Sydney Road, London, N8

Guide Price £1,150,000 Freehold

Jansons Road, London, N15

£1,100,000 Freehold

Under Offer

Hewitt Road, London, N8

Guide Price £1,100,000 Freehold

Under Offer

Lausanne Road, London, N8

Guide Price £1,050,000 Freehold

Online Valuations Aren’t Worth The Paper They’re Printed On.

When online valuations don’t give you the whole picture - try Winkworth’s expert service. Get a free property appraisal. Accurate valuations from our local property experts. No obligation to list with Winkworth. Choose a time convenient for you with our online booking system.

Fill in your details and someone will be in touch soon:

You have provisionally booked a valuation for . Please confirm your details below

We don't have date info available for this property, but if you fill in your details below, someone will be in touch to arrange a date soon

Please fill in the required fields below marked with *

This site is protected by reCAPTCHA and the Google Privacy Policy and Terms of Service apply.