Skip to main content

MyWinkworth

Sold

Picture No. 02
Picture No. 17
Picture No. 18
Picture No. 24
Picture No. 23
Picture No. 16
Picture No. 22
Picture No. 19
Picture No. 20
Picture No. 21
Picture No. 15
Picture No. 03
6/14

Drayton Park, Islington, London, N5

2 bedroom flat/apartment in Islington

£390,000 Leasehold

  • Bedrooms 2
  • Bathrooms 1
  • Reception rooms 1
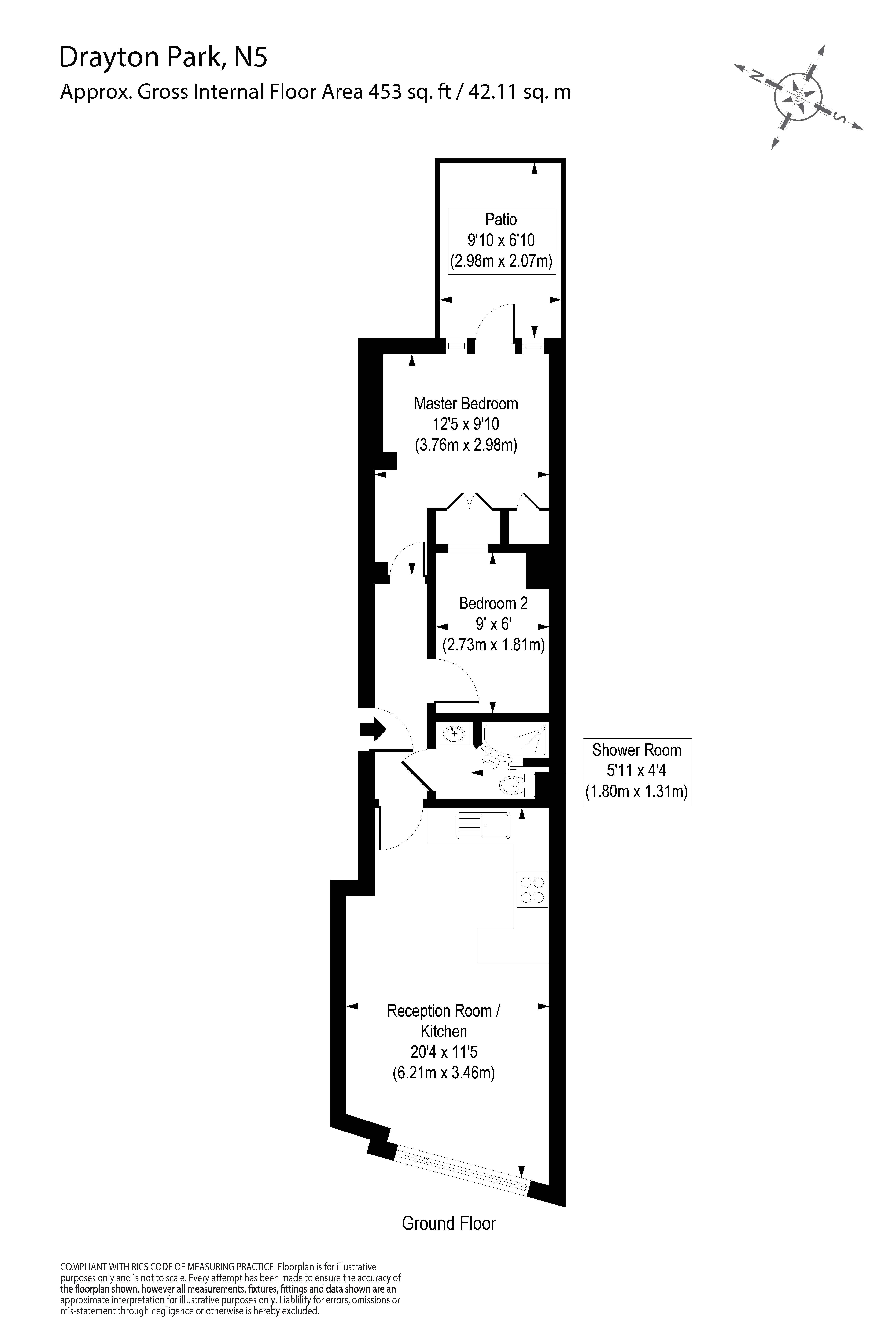
  • Floorplan

PICTURES AND VIDEOS

KEY INFORMATION

  • Tenure: Leasehold
  • Lease Length: 121 yrs left
  • Service charge: £1800.00 per annum
  • Council Tax Band: D
  • Local Authority: Islington Council

Description

This beautifully refurbished one and a half bedroom flat is set on the ground floor of a handsome Victorian conversion with private patio garden. An open plan living room and kitchen provides a wonderfully social entertaining space with the contemporary kitchen offering integrated appliances and ample storage with stone worktops and sleek soft grey cabinets.
The master bedroom is located to the rear of the property and from here provides direct access to a private rear garden whilst a second single bedroom is located off the hallway. A modern shower room has been tiled throughout and boasts oversize shower and contemporary fittings.
The flat is perfectly situated for an array of local amenities including independent shops, restaurants and coffee shops at Highbury Barn as well as being in easy reach of three local parks and Gillespie Nature Reserve. Upper Street is only a short distance away and transport links are some of the best around with Arsenal station providing the Piccadilly line and Finsbury Park offering overground services (including the Thameslink network serving the City and Gatwick Airport) alongside direct links to Moorgate as well as underground services on the Victoria line. Numerous bus routes offer effortless transport to the City and West End whilst international links are facilitated from St Pancras.
Introduction text for the mortgage calculator

Mortgage Calculator

Fill in the details below to estimate your monthly repayments:

Approximate monthly repayment:

For more information, please contact Winkworth's mortgage partner, Trinity Financial, on +44 (0)20 7267 9399 and speak to the Trinity team.

Stamp Duty Calculator

Fill in the details below to estimate your stamp duty

The above calculator above is for general interest only and should not be relied upon

6/14
Picture No. 02
Picture No. 17
Picture No. 18
Picture No. 24
Picture No. 23
Picture No. 16
Picture No. 22
Picture No. 19
Picture No. 20
Picture No. 21
Picture No. 15
Picture No. 03

Meet the Team

From our office on Highbury Park, we pride ourselves on our unrivalled local knowledge. Many of the team here at Winkworth Highbury Estate Agents live locally and whether it's sales, lettings or property management, we're always striving to provide an unparalleled service and tailor it to your exacting needs.

See all team members

Got a question about this property?

This site is protected by reCAPTCHA and the Google Privacy Policy and Terms of Service apply.

More Properties like this

Under Offer

Petherton Road, London, N5

£1,000,000 Leasehold

Under Offer

Finsbury Park Road, London, N4

£950,000 Leasehold

Under Offer

Highbury Hill, London, N5

£950,000 Share of Freehold

Under Offer

Poets Road, London, N5

Offers in excess of £850,000 Leasehold

Highbury Park, London, N5

Guide Price £850,000 Share of Freehold

Under Offer

Petherton Road, London, N5

£799,995 Share of Freehold

Online Valuations Aren’t Worth The Paper They’re Printed On.

When online valuations don’t give you the whole picture - try Winkworth’s expert service. Get a free property appraisal. Accurate valuations from our local property experts. No obligation to list with Winkworth. Choose a time convenient for you with our online booking system.

Fill in your details and someone will be in touch soon:

You have provisionally booked a valuation for . Please confirm your details below

We don't have date info available for this property, but if you fill in your details below, someone will be in touch to arrange a date soon

Please fill in the required fields below marked with *

This site is protected by reCAPTCHA and the Google Privacy Policy and Terms of Service apply.