Skip to main content

MyWinkworth

Sold

Picture No. 01
Picture No. 06
Picture No. 08
Picture No. 11
Picture No. 02
Picture No. 13
Picture No. 03
Picture No. 10
Picture No. 05
Picture No. 09
Picture No. 12
Picture No. 07
Picture No. 04
6/14

Dafforne Road, London, SW17

2 bedroom flat/apartment in London

£900,000 Share of Freehold

  • Bedrooms 2
  • Reception rooms 1
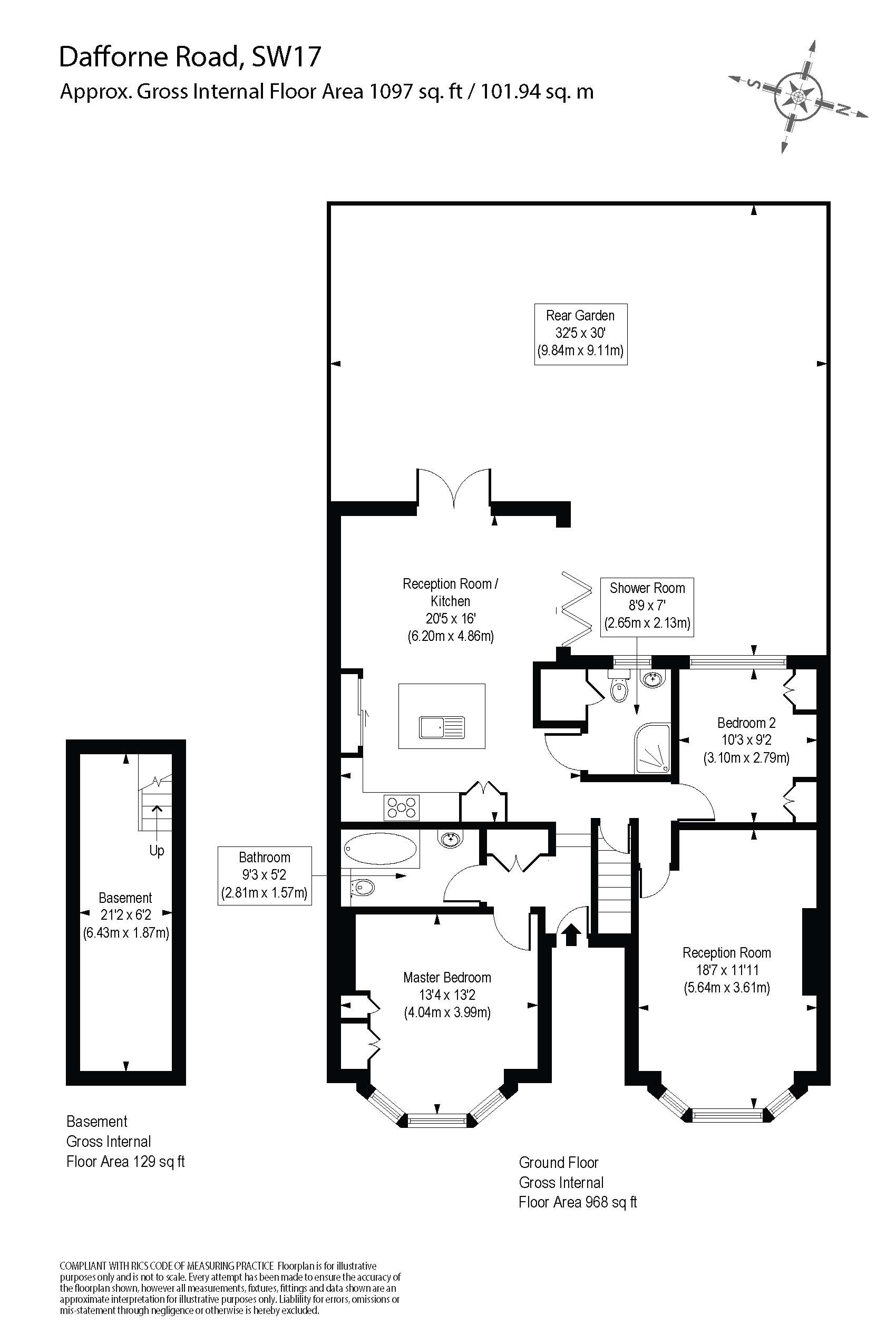
  • Floorplan

PICTURES AND VIDEOS

KEY INFORMATION

  • Tenure: Share of Freehold

Description

An exceptional double fronted two/three bedroom flat arranged over the ground floor of this handsome Edwardian house, benefitting from a uniquely large South facing garden.
This exceptional flat offers wonderful proportions throughout. To the front of the flat there is a fabulous reception room with an open, working fireplace and a master bedroom with an en-suite bathroom and built in wardrobes.
To the rear of the property is the second bedroom with built in wardrobes, a bathroom suite including a laundry area and the fabulous extended kitchen/diner boasting a unique island, hard wood flooring and bi-folding doors leading onto the exceptional south facing garden. This property also benefits from a large cellar with power. The property was fully renovated in 2019.
This property can be comfortably used as a three bedroom flat and has previously been used in this way by the current owners.
This wonderful property is located on Dafforne Road which is a quiet residential street less than two minutes walk to Tooting Bec tube station. It is well placed for the local amenities, shops and restaurants, there are also a number of good schools in the area. The green open spaces of Tooting Common can also be found close by. Residential parking permits can be purchased annually.
Introduction text for the mortgage calculator

Mortgage Calculator

Fill in the details below to estimate your monthly repayments:

Approximate monthly repayment:

For more information, please contact Winkworth's mortgage partner, Trinity Financial, on +44 (0)20 7267 9399 and speak to the Trinity team.

Stamp Duty Calculator

Fill in the details below to estimate your stamp duty

The above calculator above is for general interest only and should not be relied upon

6/14
Picture No. 01
Picture No. 06
Picture No. 08
Picture No. 11
Picture No. 02
Picture No. 13
Picture No. 03
Picture No. 10
Picture No. 05
Picture No. 09
Picture No. 12
Picture No. 07
Picture No. 04

Meet the Team

Our team at Winkworth Tooting Estate Agents are here to support and advise our customers when they need it most. We understand that buying, selling, letting or renting can be daunting and often emotionally meaningful. We are there, when it matters, to make the journey as stress-free as possible.

See all team members

Got a question about this property?

This site is protected by reCAPTCHA and the Google Privacy Policy and Terms of Service apply.

More Properties like this

Garratt Lane, Tooting, London, SW17

£795,000 Leasehold

Under Offer

Wheatlands Road, London, SW17

£725,000 Share of Freehold

Garratt Lane, Tooting, London, SW17

Offers in excess of £699,950 Leasehold

Garratt Terrace, London, SW17

Offers in excess of £655,000 Leasehold

Boundaries Road, London, SW12

£650,000 Leasehold

Garratt Lane, Tooting, London, SW17

Offers in excess of £650,000 Leasehold

Online Valuations Aren’t Worth The Paper They’re Printed On.

When online valuations don’t give you the whole picture - try Winkworth’s expert service. Get a free property appraisal. Accurate valuations from our local property experts. No obligation to list with Winkworth. Choose a time convenient for you with our online booking system.

Fill in your details and someone will be in touch soon:

You have provisionally booked a valuation for . Please confirm your details below

We don't have date info available for this property, but if you fill in your details below, someone will be in touch to arrange a date soon

Please fill in the required fields below marked with *

This site is protected by reCAPTCHA and the Google Privacy Policy and Terms of Service apply.