Skip to main content

MyWinkworth

Sold

Front
Garden
Garden
Outlook
Kitchen Diner
Lounge
Lounge
Bathroom
Bedroom
Bedroom
Front
Outlook
6/14

Church Close, Chedgrave, Norwich, NR14

3 bedroom house in Chedgrave

Guide Price £300,000 Freehold

  • Bedrooms 3
  • Bathrooms 1
  • Reception rooms 1
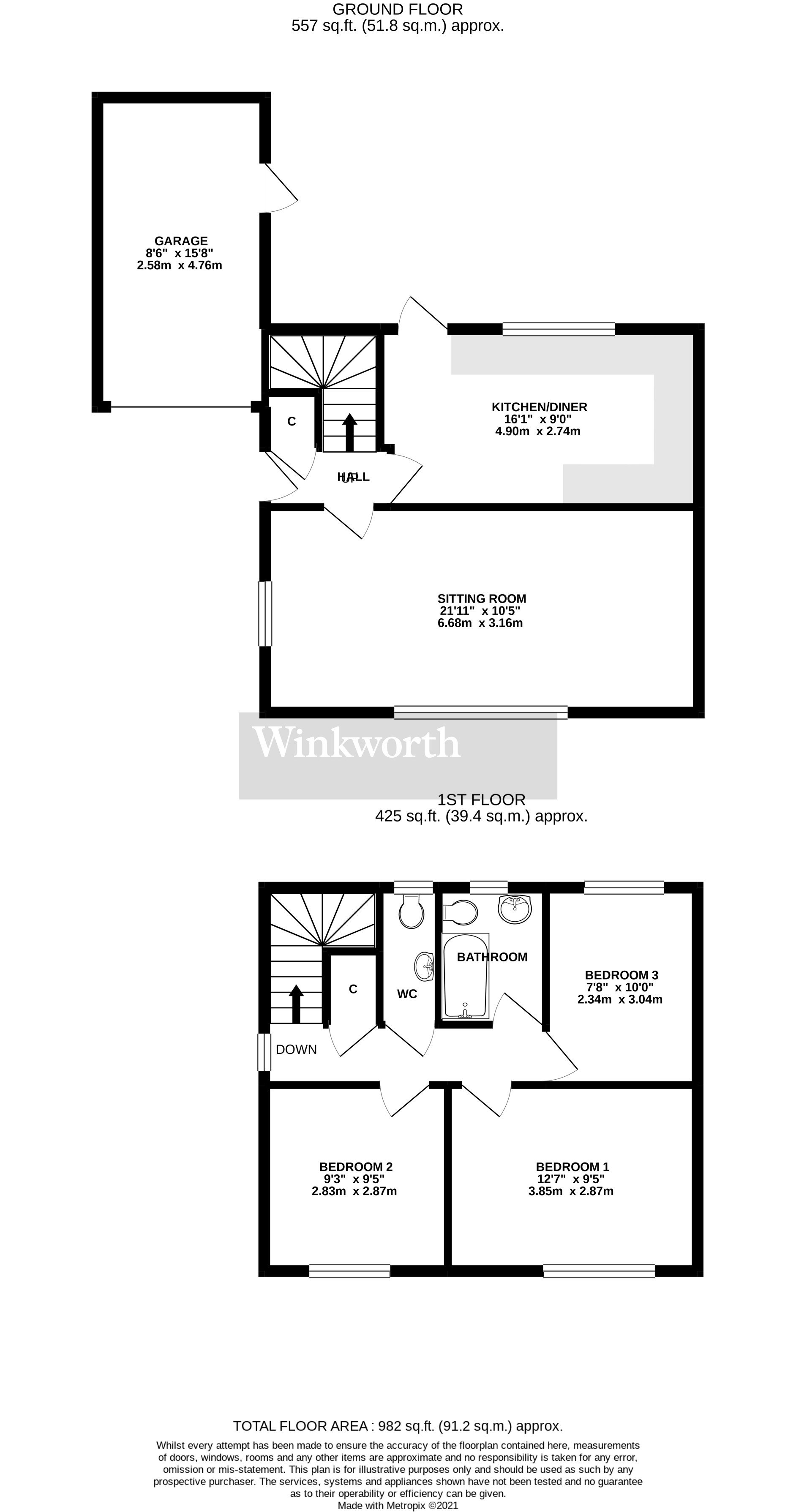
  • Floorplan

PICTURES AND VIDEOS

KEY FEATURES

  • Guide Price £300,000 - £325,000
  • Must See Expansive Garden
  • Attractive Outlook
  • Sizeable Lounge Flooded With Natural Light
  • Modern Kitchen Diner
  • Stylish Bathroom & Additional Cloakroom
  • Large Driveway & Garage
  • Expansion Possibilities
  • Prime Non Estate Location
  • Striking Distance Of Local Amenities & Schools

KEY INFORMATION

  • Tenure: Freehold

Description

Occupying a prime corner plot position which overlooks an attractive green stands this striking detached residence. The expansive wrap around garden offers expansion possibilities (stp) and is sure to make this property popular with expanding families and those who love the outdoors. On arrival to this home, you will discover a large driveway which provides off road parking which leads to a garage equipped with power and light. The sitting room is a superb size and enjoys an attractive outlook. The kitchen is in great condition and offers ample dining space along with views over the large garden. The three-piece bathroom suite and additional cloakroom are both found off the landing along with three well-proportioned bedrooms. The focal point of this home is the garden, its size and privacy will not be beaten. The non-estate location and quiet cul-de-sac is sure to mean viewing early will be essential to avoid disappointment.

Chedgrave offers a tranquil escape from busy everyday life, the renowned River Chet is positioned nearby, and scenic countryside walks are on your doorstep. The neighbouring market town of Loddon is within easy walking distance and offers a vast number of amenities along with local reputable schools. Norwich's City Centre is within easy reach along with Beccles Town Centre.
Introduction text for the mortgage calculator

Mortgage Calculator

Fill in the details below to estimate your monthly repayments:

Approximate monthly repayment:

For more information, please contact Winkworth's mortgage partner, Trinity Financial, on +44 (0)20 7267 9399 and speak to the Trinity team.

Stamp Duty Calculator

Fill in the details below to estimate your stamp duty

The above calculator above is for general interest only and should not be relied upon

6/14
Front
Garden
Garden
Outlook
Kitchen Diner
Lounge
Lounge
Bathroom
Bedroom
Bedroom
Front
Outlook

Meet the Team

As the area's newest independent agent we bring with us 30 years of experience, and a love for what we do and the local community around us. Understanding the individual needs of our clients is paramount to who we are. Our newly built office is perfectly positioned within the Budgens complex. We have a modern and vibrant office that offers a warm welcome to our customers as well as providing the perfect setting to showcase our clients' homes. We would love to hear more about your plans to move so please pop in to the office for a coffee when passing. We look forward to meeting you.

See all team members

Got a question about this property?

This site is protected by reCAPTCHA and the Google Privacy Policy and Terms of Service apply.

More Properties like this

Main Road, Filby, Great Yarmouth, Norfolk, NR29

Offers in excess of £2,750,000 Freehold

The Court, Framingham Earl Road, Yelverton, Norwich, NR14

Guide Price £950,000 Freehold

New Instruction

Yarmouth Road, Ditchingham, Bungay, NR35

Guide Price £900,000 Freehold

Under Offer

Cranes Road, Hethel, Norwich, Norfolk, NR14

Guide Price £850,000 Freehold

Brooke Road, Seething, Norwich, Norfolk, NR15

Guide Price £800,000 Freehold

Rectory Lane, Poringland, Norwich, Norfolk, NR14

OIRO £775,000 Freehold

Online Valuations Aren’t Worth The Paper They’re Printed On.

When online valuations don’t give you the whole picture - try Winkworth’s expert service. Get a free property appraisal. Accurate valuations from our local property experts. No obligation to list with Winkworth. Choose a time convenient for you with our online booking system.

Fill in your details and someone will be in touch soon:

You have provisionally booked a valuation for . Please confirm your details below

We don't have date info available for this property, but if you fill in your details below, someone will be in touch to arrange a date soon

Please fill in the required fields below marked with *

This site is protected by reCAPTCHA and the Google Privacy Policy and Terms of Service apply.